В вашей корзине ещё нет товаров.
| Цена за 1м3, руб | 29 864 с НДС* |
|
|||||||||
| Количество в квадратом метре, шт | 0,19 | ||||||||
| Нормы погрузки на авто | СПЕЦАВТО | ||||||||
| Нормы погрузки ЖД | СПЕЦВАГОН | ||||||||
| Ссылка на стандарт | https://disk.yandex.ru/d/OElkWRw5bQ6slQ | ||||||||
| Расход стали, кг | 808 |
| Расход стали на 1м3 бетона, кг | 154,20 |
| Класс прочности | В35 |
| Марка бетона | М450 |
| Морозостойкость | F300-F500 |
| Водонепроницаемость | W12-W14 |
| Марка бетона по EN 206-1 | C30/37 |
| Геометрический объем | 8,024 |
| Объем бетона | 5,24 |
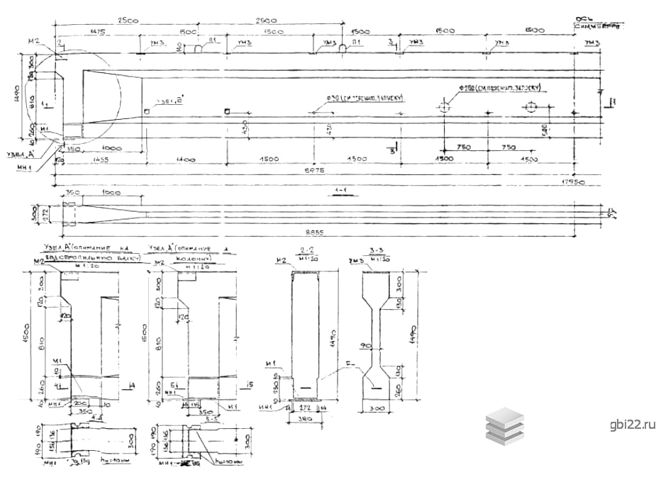
Фермы СБЭ 18-1 В2 – это прочные железобетонные каркасные конструкции, предназначенные для перекрытия крупных пролетов в жилых, промышленных зданиях и инженерных сооружениях. Их применяют при строительстве мостов, складов, производственных цехов и других объектов, требующих высокой несущей способности. Конструкция включает верхний и нижний пояса, соединенные решеткой из стоек и раскосов, что обеспечивает устойчивость к изгибающим нагрузкам.
Обозначение изделия содержит ключевые параметры:
Дополнительно маркировка может включать данные о стойкости к агрессивным средам, сейсмическим нагрузкам или наличии закладных деталей.
Конструкции производятся из тяжелого бетона классов В35-В350 с модифицирующими добавками для повышения морозостойкости. Армирование выполняется:
Фермы востребованы при возведении:
Изделия перевозят в вертикальном положении на специализированном транспорте с эластичными прокладками. Хранение допускается только в стеллажах-кассетах с деревянными подкладками (от 40 мм толщиной). Строго запрещено сбрасывание конструкций.
| Стандарт | альбом |
| Номер стандарта | ИЖ 26-79 |
| Статус | не действует |
| Год выпущенного стандарта | 1979 |
| Название стандарта | Стропильные балки СБЗ-18-182, СБЗ-18-282. |
| Название | Длина, мм | Ширина, мм | Высота, мм | Вес, кг | Номер стандарта | Цена | |
|---|---|---|---|---|---|---|---|
| 11960 | 280 | 890 | 4500 | 903-2-30.90 |
24 617 руб. |
||
| 11960 | 280 | 890 | 4500 | 903-2-30.90 |
24 235 руб. |
||
| 11960 | 280 | 890 | 4500 | 903-2-30.90 |
23 470 руб. |
||
| 9850 | 2420 | 600 | 29800 | 3.501.1-146 |
411 311 руб. |
||
| 9850 | 2420 | 600 | 29800 | 3.501.1-146 |
444 315 руб. |
||
| 9850 | 2420 | 600 | 29800 | 3.501.1-146 |
410 126 руб. |
||
| 9850 | 2420 | 600 | 29800 | 3.501.1-146 |
443 130 руб. |
||
| 9850 | 2420 | 600 | 29800 | 3.501.1-146 |
411 311 руб. |
||
| 9850 | 2420 | 600 | 29800 | 3.501.1-146 |
444 315 руб. |
||
| 9850 | 2420 | 600 | 29800 | 3.501.1-146 |
410 126 руб. |
||
| 9850 | 2420 | 600 | 29800 | 3.501.1-146 |
443 130 руб. |
||
| 9850 | 2420 | 600 | 29800 | 3.501.1-146 |
410 126 руб. |
||
| 9850 | 2420 | 600 | 29800 | 3.501.1-146 |
443 130 руб. |
||
| 9850 | 2420 | 600 | 29800 | 3.501.1-146 |
411 311 руб. |
||
| 9850 | 2420 | 600 | 29800 | 3.501.1-146 |
444 315 руб. |
||
| 9850 | 2420 | 600 | 29800 | 3.501.1-146 |
410 126 руб. |
||
| 9850 | 2420 | 600 | 29800 | 3.501.1-146 |
443 130 руб. |
||
| 9850 | 2420 | 600 | 29800 | 3.501.1-146 |
410 126 руб. |
||
| 9850 | 2420 | 600 | 29800 | 3.501.1-146 |
443 130 руб. |
||
| 9850 | 2420 | 600 | 29800 | 3.501.1-146 |
410 126 руб. |
||
| 9850 | 2420 | 600 | 29800 | 3.501.1-146 |
443 130 руб. |
||
| 9300 | 2420 | 600 | 28300 | 3.501.1-146 |
372 281 руб. |
||
| 9300 | 2420 | 600 | 28300 | 3.501.1-146 |
389 687 руб. |
||
| 9300 | 2420 | 600 | 28300 | 3.501.1-146 |
371 155 руб. |
||
| 9300 | 2420 | 600 | 28300 | 3.501.1-146 |
388 561 руб. |
||
| 9300 | 2420 | 600 | 28300 | 3.501.1-146 |
372 281 руб. |
||
| 9300 | 2420 | 600 | 28300 | 3.501.1-146 |
389 687 руб. |
||
| 9300 | 2420 | 600 | 28300 | 3.501.1-146 |
371 155 руб. |
||
| 9300 | 2420 | 600 | 28300 | 3.501.1-146 |
388 561 руб. |
||
| 9300 | 2420 | 600 | 28300 | 3.501.1-146 |
371 155 руб. |
||
| 9300 | 2420 | 600 | 28300 | 3.501.1-146 |
388 561 руб. |
||
| 9300 | 2420 | 600 | 28300 | 3.501.1-146 |
372 281 руб. |
||
| 9300 | 2420 | 600 | 28300 | 3.501.1-146 |
389 687 руб. |
||
| 9300 | 2420 | 600 | 28300 | 3.501.1-146 |
371 155 руб. |
||
| 9300 | 2420 | 600 | 28300 | 3.501.1-146 |
388 561 руб. |
||
| 9300 | 2420 | 600 | 28300 | 3.501.1-146 |
371 155 руб. |
||
| 9300 | 2420 | 600 | 28300 | 3.501.1-146 |
388 561 руб. |
||
| 9300 | 2420 | 600 | 28300 | 3.501.1-146 |
371 155 руб. |
||
| 9300 | 2420 | 600 | 28300 | 3.501.1-146 |
388 561 руб. |
||
| 7700 | 2420 | 550 | 22300 | 3.501.1-146 |
278 119 руб. |
||
| 7700 | 2420 | 550 | 22300 | 3.501.1-146 |
288 601 руб. |
||
| 7700 | 2420 | 550 | 22300 | 3.501.1-146 |
277 232 руб. |
||
| 7700 | 2420 | 550 | 22300 | 3.501.1-146 |
287 715 руб. |
||
| 7700 | 2420 | 550 | 22300 | 3.501.1-146 |
278 119 руб. |
||
| 7700 | 2420 | 550 | 22300 | 3.501.1-146 |
288 601 руб. |
||
| 7700 | 2420 | 550 | 22300 | 3.501.1-146 |
277 232 руб. |
||
| 7700 | 2420 | 550 | 22300 | 3.501.1-146 |
287 715 руб. |
||
| 7700 | 2420 | 550 | 22300 | 3.501.1-146 |
277 232 руб. |
||
| 7700 | 2420 | 550 | 22300 | 3.501.1-146 |
287 715 руб. |
||
| 7700 | 2420 | 550 | 22300 | 3.501.1-146 |
278 119 руб. |
| Название | Длина, мм | Ширина, мм | Высота, мм | Вес, кг | Номер стандарта | Цена | |
|---|---|---|---|---|---|---|---|
| 17950 | 300 | 1490 | 13100 | ИЖ 26-79 |
172 960 руб. |
ТД "Еврастрой" предлагает купить Балки стропильные СБЭ 18-1 В2 по выгодной цене. Наша компания осуществляет доставку продукции по всей территории России и странам СНГ.
В каталоге представлено около 170 тыс. позиций.
По наличию и ценам Мы можем проконсультировать Вас по телефону +7 (343) 300-90-87 или можете отправить запрос на почтовый ящик gbi@gbi22.ru.
Оплатить продукцию можно в рассрочку, для обсуждения вопросов оплаты так же можно обратиться к нашим менеджерам.
Продажа ЖБИ изделий производится с заводов в таких городах как:
Наши менеджеры помогут Вам подобрать оптимальное решения для ваших задач, сориентируют по наличию и ценам, расскажут про оптимальные варианты доставки и оплаты. Звоните +7 (343) 300-90-87
