В вашей корзине ещё нет товаров.
| Цена за 1м3, руб | 20 784 с НДС* |
|
|||||||||
| Количество в квадратом метре, шт | 0,24 | ||||||||
| Нормы погрузки на авто | 4 | ||||||||
| Нормы погрузки ЖД | 15 | ||||||||
| Ссылка на стандарт | https://disk.yandex.ru/d/6lKgw-IHmksW_w | ||||||||
| Расход стали, кг | 137,22 |
| Расход стали на 1м3 бетона, кг | 77,97 |
| Класс прочности | В22,5 |
| Марка бетона | М300 |
| Морозостойкость | F150-F300 |
| Водонепроницаемость | W6-W8 |
| Марка бетона по EN 206-1 | C18/22 |
| Геометрический объем | 2,443 |
| Объем бетона | 1,76 |
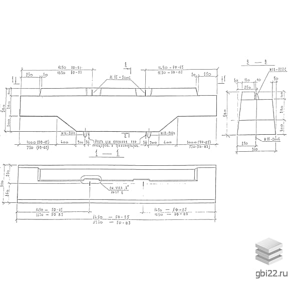
БФ 83 – это железобетонное изделие с тавровым сечением, где верхняя часть (полка) служит опорной площадкой, а нижняя сторона выполнена в виде усеченного конуса или трапеции. Основное назначение – монтаж несущих стен и перегородок в промышленных зданиях из блоков или кирпича. Конструкция обеспечивает равномерное распределение нагрузки на фундамент, а также используется при обустройстве подвалов и межэтажных перекрытий. В панельном строительстве применение БФ 83 продлевает срок службы конструкций и упрощает прокладку инженерных коммуникаций.
После изготовления изделие маркируется согласно стандартам:
Дополнительно на поверхность наносятся:
Балки серии БФ отличаются повышенной прочностью и устойчивостью к статическим нагрузкам, включая скручивающие моменты. Ключевой параметр при выборе – размер сечения, определяющий несущую способность стены или опоры.
Изготовление осуществляется методом вибролитья:
Готовая продукция отпускается при достижении 70% проектной прочности. Правила складирования:
| Стандарт | альбом |
| Номер стандарта | РС 1251-93 |
| Статус | не определен |
| Год выпущенного стандарта | 1993 |
| Название стандарта | Фундаментные балки каркасных зданий. |
| Название | Длина, мм | Ширина, мм | Высота, мм | Вес, кг | Номер стандарта | Цена | |
|---|---|---|---|---|---|---|---|
| 3880 | 300 | 450 | 1410 | 1.110.1-1п |
12 976 руб. |
||
| 2850 | 400 | 300 | 860 | 27Н-83 |
6 449 руб. |
||
| 2850 | 400 | 300 | 860 | 27Н-83 |
6 449 руб. |
||
| 2850 | 400 | 300 | 860 | 27Н-83 |
5 806 руб. |
||
| 2850 | 400 | 300 | 860 | 27Н-83 |
5 806 руб. |
||
| 11960 | 400 | 600 | 5700 | КЭ 01-53 |
59 319 руб. |
||
| 11960 | 300 | 400 | 3200 | КЭ 01-53 |
23 242 руб. |
||
| 10200 | 400 | 600 | 4900 | КЭ 01-53 |
46 148 руб. |
||
| 10700 | 400 | 600 | 5100 | КЭ 01-53 |
48 075 руб. |
||
| 10200 | 300 | 400 | 2800 | КЭ 01-53 |
19 398 руб. |
||
| 10700 | 300 | 400 | 2900 | КЭ 01-53 |
20 085 руб. |
||
| 4450 | 520 | 400 | 1420 | КЭ 01-23 |
13 272 руб. |
||
| 4950 | 520 | 400 | 1600 | КЭ 01-23 |
14 799 руб. |
||
| 4450 | 520 | 400 | 1420 | КЭ 01-23 |
11 084 руб. |
||
| 4950 | 520 | 400 | 1600 | КЭ 01-23 |
12 380 руб. |
||
| 4450 | 520 | 400 | 1420 | КЭ 01-23 |
10 162 руб. |
||
| 4950 | 520 | 400 | 1600 | КЭ 01-23 |
11 343 руб. |
||
| 4450 | 400 | 400 | 1130 | КЭ 01-23 |
9 622 руб. |
||
| 4950 | 400 | 400 | 1250 | КЭ 01-23 |
10 640 руб. |
||
| 4450 | 400 | 400 | 1130 | КЭ 01-23 |
8 701 руб. |
||
| 4950 | 400 | 400 | 1250 | КЭ 01-23 |
9 603 руб. |
||
| 4450 | 400 | 400 | 1130 | КЭ 01-23 |
8 240 руб. |
||
| 4950 | 400 | 400 | 1250 | КЭ 01-23 |
9 143 руб. |
||
| 4450 | 300 | 400 | 1030 | КЭ 01-23 |
7 546 руб. |
||
| 4950 | 300 | 400 | 1180 | КЭ 01-23 |
8 587 руб. |
||
| 4450 | 300 | 400 | 1030 | КЭ 01-23 |
7 085 руб. |
||
| 4950 | 300 | 400 | 1180 | КЭ 01-23 |
8 011 руб. |
||
| 5950 | 300 | 450 | 1740 | КЭ 01-15 |
11 647 руб. |
||
| 5950 | 400 | 450 | 2440 | КЭ 01-15 |
21 002 руб. |
||
| 5950 | 400 | 450 | 2440 | КЭ 01-15 |
17 431 руб. |
||
| 5950 | 300 | 450 | 1675 | КЭ 01-15 |
17 566 руб. |
||
| 5950 | 300 | 450 | 1740 | КЭ 01-15 |
14 643 руб. |
||
| 5050 | 300 | 450 | 1480 | КЭ 01-15 |
20 004 руб. |
||
| 5950 | 400 | 450 | 2300 | КЭ 01-15 |
23 578 руб. |
||
| 5050 | 300 | 450 | 1480 | КЭ 01-15 |
10 674 руб. |
||
| 5050 | 400 | 450 | 2080 | КЭ 01-15 |
22 837 руб. |
||
| 5050 | 400 | 450 | 2080 | КЭ 01-15 |
14 889 руб. |
||
| 5350 | 300 | 450 | 1560 | КЭ 01-15 |
19 345 руб. |
||
| 5350 | 300 | 450 | 1560 | КЭ 01-15 |
10 130 руб. |
||
| 5350 | 400 | 450 | 2180 | КЭ 01-15 |
28 147 руб. |
||
| 5350 | 400 | 450 | 2180 | КЭ 01-15 |
14 785 руб. |
||
| 5350 | 400 | 450 | 2180 | КЭ 01-15 |
23 309 руб. |
||
| 5350 | 300 | 450 | 1560 | КЭ 01-15 |
11 282 руб. |
||
| 5350 | 400 | 450 | 2180 | КЭ 01-15 |
31 833 руб. |
||
| 5950 | 400 | 450 | 2440 | КЭ 01-15 |
19 735 руб. |
||
| 5350 | 400 | 450 | 2180 | КЭ 01-15 |
16 282 руб. |
||
| 5350 | 300 | 450 | 1560 | КЭ 01-15 |
14 959 руб. |
||
| 5350 | 300 | 450 | 1560 | КЭ 01-15 |
10 006 руб. |
||
| 5350 | 400 | 450 | 2180 | КЭ 01-15 |
20 947 руб. |
||
| 5350 | 300 | 450 | 1560 | КЭ 01-15 |
15 765 руб. |
| Название | Длина, мм | Ширина, мм | Высота, мм | Вес, кг | Номер стандарта | Цена | |
|---|---|---|---|---|---|---|---|
| 6460 | 510 | 580 | 3200 | РС 1251-93 |
23 744 руб. |
||
| 5960 | 470 | 380 | 2100 | РС 1251-93 |
17 847 руб. |
||
| 5260 | 470 | 380 | 1800 | РС 1251-93 |
15 055 руб. |
||
| 4660 | 470 | 380 | 1600 | РС 1251-93 |
12 035 руб. |
||
| 3460 | 470 | 380 | 1200 | РС 1251-93 |
7 740 руб. |
||
| 2860 | 470 | 380 | 1000 | РС 1251-93 |
6 598 руб. |
||
| 2260 | 470 | 380 | 800 | РС 1251-93 |
4 927 руб. |
||
| 1660 | 470 | 380 | 600 | РС 1251-93 |
3 690 руб. |
ТД "Еврастрой" предлагает купить Балки фундаментные БФ 83 по выгодной цене. Наша компания осуществляет доставку продукции по всей территории России и странам СНГ.
В каталоге представлено около 170 тыс. позиций.
По наличию и ценам Мы можем проконсультировать Вас по телефону +7 (343) 300-90-87 или можете отправить запрос на почтовый ящик gbi@gbi22.ru.
Оплатить продукцию можно в рассрочку, для обсуждения вопросов оплаты так же можно обратиться к нашим менеджерам.
Продажа ЖБИ изделий производится с заводов в таких городах как:
Наши менеджеры помогут Вам подобрать оптимальное решения для ваших задач, сориентируют по наличию и ценам, расскажут про оптимальные варианты доставки и оплаты. Звоните +7 (343) 300-90-87
