В вашей корзине ещё нет товаров.
| Цена за 1м3, руб | 40 476 с НДС* |
|
|||||||||
| Количество в квадратом метре, шт | 0,05 | ||||||||
| Нормы погрузки на авто | СПЕЦАВТО | ||||||||
| Нормы погрузки ЖД | СПЕЦВАГОН | ||||||||
| Ссылка на стандарт | https://disk.yandex.ru/d/Vv3fJM7wSjA-MA | ||||||||
| Расход стали, кг | 1399 |
| Расход стали на 1м3 бетона, кг | 248,05 |
| Класс прочности | В25 |
| Марка бетона | М350 |
| Морозостойкость | F200-F300 |
| Водонепроницаемость | W8-W10 |
| Марка бетона по EN 206-1 | C20/25 |
| Геометрический объем | 16,999 |
| Объем бетона | 5,64 |
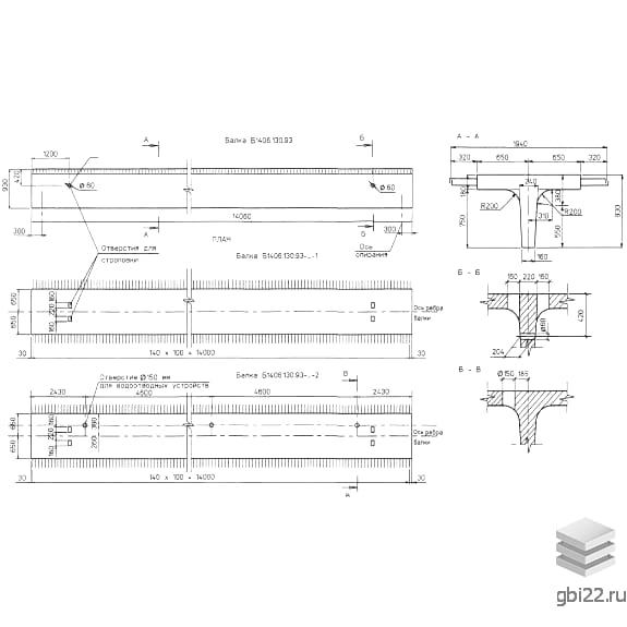
Балки пролетного строения Б 1406-130-93 Т25АIIIв-1 – это конструктивные элементы, предназначенные для выполнения ремонтных работ на мосту через реку Клязмь в г. Ногинске. Для использования этих изделий в строительстве других объектов требуется предварительное согласование.
Каждое изделие имеет условное обозначение, состоящее из буквенно-числовых групп, каждая из которых несет определенную информацию. Рассмотрим расшифровку маркировки элемента Б 1406-130-93 Т25АIIIв-1 (ИНВ 42015м):
1. Б – буквенное обозначение балки;
2. 1406 – длина (см);
3. 130 – ширина верхней части (см);
4. 93 – высота (см);
5. 25AIII – диаметр и класс арматурной стали;
6. B – арматура в вязаных каркасах;
7. 1 – наличие закладных деталей или отверстий в плите проезжей части.
Изготовление балок пролетных строений осуществляется в заводских условиях или на полигонах сборного железобетона. Для производства используются только сертифицированные материалы с подтверждающими сертификатами. Формование изделий происходит с применением опалубочных форм, которые перед использованием очищаются от остатков бетона и обрабатываются масляной основой для облегчения распалубирования.
Длина: 14060 мм
Ширина: 1300 мм
Высота: 930 мм
Вес: 14100 кг
Марка бетона: М350
Бетонирование выполняется тяжелым конструктивным бетоном марки по прочности на сжатие В25 по ГОСТ 26633-91. Армирование осуществляется в виде вязаных каркасов из стальных стержней диаметром 25 мм класса AIII. На всех этапах производства обеспечивается технологический контроль, соблюдаются правила техники безопасности и производственной санитарии.
Извлечение балок из формы допускается только после достижения бетоном необходимой прочности. Перед отправкой готовой продукции к заказчику, элементы проверяются на качество отделом технического контроля завода-производителя. Если изделия соответствуют запроектированным габаритам, имеют ровную бетонную поверхность без сколов и трещин, а геометрические параметры не нарушены, они получают паспорт качества.
Готовые балки пролетного строения хранятся на складе или специально подготовленной площадке. Конструкции складируются и транспортируются в рабочем положении, чтобы маркировочные знаки были видны. При хранении и транспортировке необходимо избегать действий, которые могут повредить целостность элемента. Подъем и монтаж осуществляются с использованием специальной техники, свободное падение балок и перемещение волоком не допускаются.
| Стандарт | ИНВ |
| Номер стандарта | 42015м |
| Статус | не определен |
| Год выпущенного стандарта | 1997 |
| Название стандарта | Пролетные строения без диафрагм длиной 12 , 15 и 18 м из железобетонных балок таврового сечения с ненапрягаемой арматурой для автодорожных мостов. |
| Название | Длина, мм | Ширина, мм | Высота, мм | Вес, кг | Номер стандарта | Цена | |
|---|---|---|---|---|---|---|---|
| 18000 | 1300 | 1080 | 19400 | 5851-008-01388383-2002 |
336 113 руб. |
||
| 15000 | 1300 | 930 | 15100 | 5851-008-01388383-2002 |
267 144 руб. |
||
| 12000 | 1300 | 930 | 12100 | 5851-008-01388383-2002 |
198 605 руб. |
||
| 33000 | 1800 | 1500 | 56300 | 3.503-12 |
по запросу |
||
| 33000 | 1800 | 1700 | 59000 | 3.503-12 |
по запросу |
||
| 24000 | 1800 | 1200 | 36800 | 3.503-12 |
по запросу |
||
| 24000 | 1400 | 1200 | 33200 | 3.503-12 |
по запросу |
||
| 24000 | 1800 | 1200 | 36800 | 3.503-12 |
по запросу |
||
| 21000 | 1400 | 1200 | 29100 | 3.503-12 |
по запросу |
||
| 21000 | 1800 | 1200 | 33300 | 3.503-12 |
по запросу |
||
| 21000 | 1400 | 1200 | 29100 | 3.503-12 |
по запросу |
||
| 21000 | 1800 | 1200 | 33300 | 3.503-12 |
по запросу |
||
| 18000 | 1400 | 1200 | 25100 | 3.503-12 |
по запросу |
||
| 18000 | 1800 | 1200 | 27800 | 3.503-12 |
по запросу |
||
| 18000 | 1400 | 1200 | 25100 | 3.503-12 |
по запросу |
||
| 18000 | 1800 | 1200 | 27800 | 3.503-12 |
по запросу |
||
| 15000 | 1400 | 900 | 18100 | 3.503-12 |
по запросу |
||
| 15000 | 1800 | 900 | 20300 | 3.503-12 |
по запросу |
||
| 15000 | 1400 | 900 | 18100 | 3.503-12 |
по запросу |
||
| 15000 | 1800 | 900 | 20300 | 3.503-12 |
по запросу |
||
| 12000 | 1400 | 900 | 16100 | 3.503-12 |
по запросу |
||
| 12000 | 1800 | 900 | 16400 | 3.503-12 |
по запросу |
||
| 12000 | 1400 | 900 | 16100 | 3.503-12 |
по запросу |
||
| 12000 | 1800 | 900 | 16400 | 3.503-12 |
по запросу |
||
| 33000 | 1940 | 1500 | 57900 | 3.503-12 |
по запросу |
||
| 33000 | 1940 | 1700 | 60900 | 3.503-12 |
по запросу |
||
| 24000 | 1940 | 1200 | 38000 | 3.503-12 |
по запросу |
||
| 24000 | 1940 | 1200 | 38000 | 3.503-12 |
по запросу |
||
| 24000 | 1740 | 1200 | 36200 | 3.503-12 |
по запросу |
||
| 24000 | 1940 | 1200 | 38000 | 3.503-12 |
по запросу |
||
| 21000 | 1740 | 1200 | 31700 | 3.503-12 |
по запросу |
||
| 21000 | 1940 | 1200 | 33300 | 3.503-12 |
по запросу |
||
| 21000 | 1740 | 1200 | 31700 | 3.503-12 |
по запросу |
||
| 21000 | 1940 | 1200 | 33300 | 3.503-12 |
по запросу |
||
| 18000 | 1740 | 1200 | 27300 | 3.503-12 |
по запросу |
||
| 18000 | 1940 | 1200 | 27600 | 3.503-12 |
по запросу |
||
| 18000 | 1740 | 1200 | 27300 | 3.503-12 |
по запросу |
||
| 18000 | 1940 | 1200 | 27600 | 3.503-12 |
по запросу |
||
| 15000 | 1740 | 900 | 20000 | 3.503-12 |
по запросу |
||
| 15000 | 1940 | 900 | 21100 | 3.503-12 |
по запросу |
||
| 15000 | 1740 | 900 | 20000 | 3.503-12 |
по запросу |
||
| 15000 | 1940 | 900 | 21100 | 3.503-12 |
по запросу |
||
| 12000 | 1740 | 900 | 16100 | 3.503-12 |
по запросу |
||
| 12000 | 1940 | 900 | 17000 | 3.503-12 |
по запросу |
||
| 12000 | 1740 | 900 | 16100 | 3.503-12 |
по запросу |
||
| 12000 | 1940 | 900 | 17000 | 3.503-12 |
по запросу |
||
| 33000 | 1940 | 1730 | 65720 | 3.503.1-81 |
821 053 руб. |
||
| 33000 | 1940 | 1700 | 61200 | 3.503.1-81 |
777 529 руб. |
||
| 33000 | 1940 | 1530 | 62790 | 3.503.1-81 |
940 343 руб. |
||
| 33000 | 1940 | 1500 | 56500 | 3.503.1-81 |
773 810 руб. |
| Название | Длина, мм | Ширина, мм | Высота, мм | Вес, кг | Номер стандарта | Цена | |
|---|---|---|---|---|---|---|---|
| 14060 | 1300 | 930 | 14100 | 42015м |
229 438 руб. |
ТД "Еврастрой" предлагает купить Балки пролетного строения Б 1406-130-93 Т25АIIIв-1 по выгодной цене. Наша компания осуществляет доставку продукции по всей территории России и странам СНГ.
В каталоге представлено около 170 тыс. позиций.
По наличию и ценам Мы можем проконсультировать Вас по телефону +7 (343) 300-90-87 или можете отправить запрос на почтовый ящик gbi@gbi22.ru.
Оплатить продукцию можно в рассрочку, для обсуждения вопросов оплаты так же можно обратиться к нашим менеджерам.
Продажа ЖБИ изделий производится с заводов в таких городах как:
Наши менеджеры помогут Вам подобрать оптимальное решения для ваших задач, сориентируют по наличию и ценам, расскажут про оптимальные варианты доставки и оплаты. Звоните +7 (343) 300-90-87
