В вашей корзине ещё нет товаров.
| Цена за 1м3, руб | 24 681 с НДС* |
|
|||||||||
| Количество в квадратом метре, шт | 1,67 | ||||||||
| Нормы погрузки на авто | 7 | ||||||||
| Нормы погрузки ЖД | 25 | ||||||||
| Ссылка на стандарт | https://disk.yandex.ru/d/gKtBPBLnH9imeA | ||||||||
| Расход стали, кг | 119,84 |
| Расход стали на 1м3 бетона, кг | 111,79 |
| Класс прочности | В22,5 |
| Марка бетона | М300 |
| Морозостойкость | F150-F300 |
| Водонепроницаемость | W6-W8 |
| Марка бетона по EN 206-1 | C18/22 |
| Геометрический объем | 1,196 |
| Объем бетона | 1,07 |
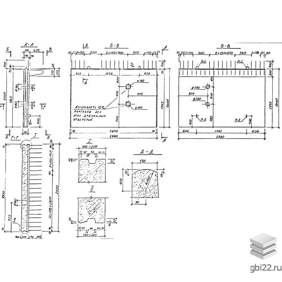
Блоки набережных БН 3 – это железобетонные конструкции, усиленные стальной арматурой. Изделия имеют трапециевидную форму с монтажными петлями и выступами для надежного соединения с другими элементами системы.
Производство блоков регламентируется нормативным документом Альбом ПС-192. Маркировка включает:
На поверхности изделия также указываются данные производителя, дата выпуска, масса и отметка ОТК.
Блоки применяются для строительства набережных в городской и загородной зоне. Отличаются:
Изготовление осуществляется на специализированных заводах с использованием:
Все металлические элементы обрабатываются антикоррозийными составами, а защитный слой бетона составляет 20-30 мм.
Готовые блоки проходят испытания на:
Изделия хранятся на складах с деревянными подкладками. Перевозка осуществляется специализированным транспортом с надежной фиксацией для предотвращения повреждений.
| Длина: | 2990 мм |
| Ширина: | 200 мм |
| Высота: | 2000 мм |
| Вес: | 2680 кг |
| Марка бетона: | М300 |
| Стандарт | альбом |
| Номер стандарта | ПС 192 |
| Статус | не определен |
| Год выпущенного стандарта | 1984 |
| Название стандарта | Сборные железобетонные изделия инженерных сооружений (по номенклатуре Главмосинжстроя). Рабочие чертежи изделий. |
| Название | Длина, мм | Ширина, мм | Высота, мм | Вес, кг | Номер стандарта | Цена | |
|---|---|---|---|---|---|---|---|
| 2990 | 160 | 2110 | 3150 | ПС 143 |
31 902 руб. |
||
| 2990 | 160 | 2000 | 2680 | ПС 143 |
26 458 руб. |
||
| 2990 | 480 | 5200 | 10400 | 3.507 КЛ-4 |
63 384 руб. |
||
| 1490 | 480 | 5200 | 5100 | 3.507 КЛ-4 |
38 281 руб. |
||
| 2990 | 480 | 5000 | 10200 | 3.507 КЛ-4 |
62 463 руб. |
||
| 1490 | 480 | 5000 | 5000 | 3.507 КЛ-4 |
37 763 руб. |
||
| 2990 | 480 | 4800 | 9900 | 3.507 КЛ-4 |
61 185 руб. |
||
| 1490 | 480 | 4800 | 4900 | 3.507 КЛ-4 |
37 429 руб. |
||
| 2990 | 480 | 4600 | 9600 | 3.507 КЛ-4 |
59 907 руб. |
||
| 1490 | 480 | 4600 | 4800 | 3.507 КЛ-4 |
37 084 руб. |
||
| 2990 | 480 | 4400 | 9400 | 3.507 КЛ-4 |
59 078 руб. |
||
| 1490 | 480 | 4400 | 4700 | 3.507 КЛ-4 |
36 704 руб. |
||
| 2990 | 480 | 4200 | 8700 | 3.507 КЛ-4 |
54 575 руб. |
||
| 1490 | 480 | 4200 | 4300 | 3.507 КЛ-4 |
33 905 руб. |
||
| 2990 | 480 | 4000 | 8500 | 3.507 КЛ-4 |
53 723 руб. |
||
| 1490 | 480 | 4000 | 4200 | 3.507 КЛ-4 |
33 560 руб. |
||
| 2990 | 480 | 3800 | 8200 | 3.507 КЛ-4 |
52 364 руб. |
||
| 1490 | 480 | 3800 | 4100 | 3.507 КЛ-4 |
33 134 руб. |
||
| 2990 | 480 | 3600 | 8000 | 3.507 КЛ-4 |
51 570 руб. |
||
| 1490 | 480 | 3600 | 3900 | 3.507 КЛ-4 |
32 340 руб. |
||
| 2990 | 480 | 3400 | 7700 | 3.507 КЛ-4 |
50 407 руб. |
||
| 1490 | 480 | 3400 | 3800 | 3.507 КЛ-4 |
32 109 руб. |
||
| 2990 | 480 | 3200 | 7400 | 3.507 КЛ-4 |
49 117 руб. |
||
| 1490 | 480 | 3200 | 3700 | 3.507 КЛ-4 |
31 706 руб. |
||
| 2990 | 480 | 3000 | 7100 | 3.507 КЛ-4 |
48 046 руб. |
||
| 1490 | 480 | 3000 | 3500 | 3.507 КЛ-4 |
31 039 руб. |
||
| 740 | 360 | 5600 | 2600 | 3.507 КЛ-4 |
25 937 руб. |
||
| 2990 | 360 | 5600 | 10700 | 3.507 КЛ-4 |
64 202 руб. |
||
| 1490 | 360 | 5600 | 5100 | 3.507 КЛ-4 |
37 602 руб. |
||
| 740 | 360 | 5400 | 2500 | 3.507 КЛ-4 |
25 649 руб. |
||
| 2990 | 360 | 5400 | 10500 | 3.507 КЛ-4 |
63 373 руб. |
||
| 1490 | 360 | 5400 | 5050 | 3.507 КЛ-4 |
37 469 руб. |
||
| 740 | 360 | 5200 | 2400 | 3.507 КЛ-4 |
25 385 руб. |
||
| 2990 | 360 | 5200 | 10200 | 3.507 КЛ-4 |
62 071 руб. |
||
| 1490 | 360 | 5200 | 4850 | 3.507 КЛ-4 |
36 640 руб. |
||
| 740 | 360 | 5000 | 2300 | 3.507 КЛ-4 |
25 143 руб. |
||
| 2990 | 360 | 5000 | 9900 | 3.507 КЛ-4 |
60 782 руб. |
||
| 1490 | 360 | 5000 | 4700 | 3.507 КЛ-4 |
36 059 руб. |
||
| 740 | 360 | 4800 | 2250 | 3.507 КЛ-4 |
24 953 руб. |
||
| 2990 | 360 | 4800 | 9700 | 3.507 КЛ-4 |
60 010 руб. |
||
| 1490 | 360 | 4800 | 4500 | 3.507 КЛ-4 |
35 241 руб. |
||
| 740 | 360 | 4600 | 2200 | 3.507 КЛ-4 |
24 947 руб. |
||
| 2990 | 360 | 4600 | 9400 | 3.507 КЛ-4 |
58 801 руб. |
||
| 1490 | 360 | 4600 | 4300 | 3.507 КЛ-4 |
34 435 руб. |
||
| 740 | 360 | 4400 | 2100 | 3.507 КЛ-4 |
24 728 руб. |
||
| 2990 | 360 | 4400 | 9100 | 3.507 КЛ-4 |
57 650 руб. |
||
| 1490 | 360 | 4400 | 4100 | 3.507 КЛ-4 |
33 722 руб. |
||
| 740 | 360 | 4200 | 1900 | 3.507 КЛ-4 |
23 116 руб. |
||
| 2990 | 360 | 4200 | 8000 | 3.507 КЛ-4 |
51 420 руб. |
||
| 1490 | 360 | 4200 | 3800 | 3.507 КЛ-4 |
31 867 руб. |
| Название | Длина, мм | Ширина, мм | Высота, мм | Вес, кг | Номер стандарта | Цена | |
|---|---|---|---|---|---|---|---|
| 1330 | 310 | 450 | 210 | ПС 192 |
2 385 руб. |
||
| 2380 | 600 | 2690 | 2670 | ПС 192 |
36 141 руб. |
||
| 2460 | 200 | 1800 | 2170 | ПС 192 |
21 919 руб. |
||
| 2000 | 850 | 2050 | 2040 | ПС 192 |
17 548 руб. |
||
| 2000 | 600 | 1400 | 1130 | ПС 192 |
9 993 руб. |
||
| 2000 | 600 | 1650 | 1280 | ПС 192 |
11 889 руб. |
||
| 2000 | 650 | 1920 | 1650 | ПС 192 |
14 576 руб. |
||
| 9000 | 680 | 300 | 3625 | ПС 192 |
60 784 руб. |
||
| 9000 | 590 | 300 | 2800 | ПС 192 |
52 610 руб. |
||
| 870 | 870 | 360 | 90 | ПС 192 |
3 681 руб. |
||
| 1990 | 120 | 1190 | 710 | ПС 192 |
7 437 руб. |
||
| 3280 | 1480 | 300 | 2100 | ПС 192 |
22 981 руб. |
||
| 900 | 900 | 140 | 284 | ПС 192 |
6 411 руб. |
||
| 750 | 750 | 100 | 140 | ПС 192 |
3 665 руб. |
||
| 650 | 650 | 140 | 148 | ПС 192 |
3 074 руб. |
||
| 500 | 500 | 140 | 88 | ПС 192 |
1 593 руб. |
||
| 400 | 400 | 100 | 40 | ПС 192 |
922 руб. |
||
| 300 | 300 | 100 | 23 | ПС 192 |
437 руб. |
||
| 1500 | 1500 | 190 | 1070 | ПС 192 |
22 047 руб. |
||
| 1200 | 1200 | 150 | 540 | ПС 192 |
13 728 руб. |
||
| 1200 | 1200 | 150 | 540 | ПС 192 |
12 290 руб. |
||
| 200 | 200 | 90 | 10 | ПС 192 |
292 руб. |
||
| 2300 | 1600 | 300 | 1320 | ПС 192 |
22 921 руб. |
||
| 840 | 840 | 990 | 420 | ПС 192 |
2 456 руб. |
||
| 2200 | 2200 | 990 | 1650 | ПС 192 |
9 627 руб. |
||
| 1680 | 1680 | 990 | 1100 | ПС 192 |
6 189 руб. |
||
| 1410 | 1410 | 990 | 830 | ПС 192 |
4 702 руб. |
||
| 1160 | 1160 | 990 | 680 | ПС 192 |
3 862 руб. |
||
| 3550 | 1490 | 160 | 2100 | ПС 192 |
20 240 руб. |
||
| 3000 | 1490 | 160 | 1780 | ПС 192 |
17 252 руб. |
||
| 1800 | 600 | 2690 | 2120 | ПС 192 |
25 493 руб. |
||
| 1800 | 600 | 2290 | 1820 | ПС 192 |
22 663 руб. |
||
| 1800 | 600 | 1690 | 1520 | ПС 192 |
18 087 руб. |
||
| 1200 | 600 | 3190 | 1650 | ПС 192 |
19 840 руб. |
||
| 1200 | 600 | 2590 | 1320 | ПС 192 |
15 383 руб. |
||
| 5400 | 1500 | 400 | 4500 | ПС 192 |
46 757 руб. |
||
| 4800 | 1500 | 360 | 3300 | ПС 192 |
38 120 руб. |
||
| 3400 | 1200 | 300 | 1570 | ПС 192 |
18 693 руб. |
||
| 3400 | 1200 | 300 | 1570 | ПС 192 |
16 081 руб. |
||
| 5400 | 1000 | 400 | 3420 | ПС 192 |
34 795 руб. |
||
| 4800 | 1000 | 360 | 2670 | ПС 192 |
25 565 руб. |
||
| 3850 | 1800 | 300 | 2870 | ПС 192 |
38 364 руб. |
||
| 3850 | 1800 | 300 | 2870 | ПС 192 |
30 565 руб. |
||
| 4250 | 990 | 200 | 1900 | ПС 192 |
13 434 руб. |
||
| 5400 | 400 | 600 | 3240 | ПС 192 |
47 151 руб. |
||
| 4900 | 400 | 600 | 2940 | ПС 192 |
37 682 руб. |
||
| 4400 | 400 | 500 | 2200 | ПС 192 |
31 464 руб. |
||
| 3900 | 400 | 500 | 1950 | ПС 192 |
23 084 руб. |
||
| 3400 | 200 | 300 | 510 | ПС 192 |
12 143 руб. |
||
| 2900 | 200 | 300 | 440 | ПС 192 |
7 456 руб. |
ТД "Еврастрой" предлагает купить Блоки набережных БН 3 по выгодной цене. Наша компания осуществляет доставку продукции по всей территории России и странам СНГ.
В каталоге представлено около 170 тыс. позиций.
По наличию и ценам Мы можем проконсультировать Вас по телефону +7 (343) 300-90-87 или можете отправить запрос на почтовый ящик gbi@gbi22.ru.
Оплатить продукцию можно в рассрочку, для обсуждения вопросов оплаты так же можно обратиться к нашим менеджерам.
Продажа ЖБИ изделий производится с заводов в таких городах как:
Наши менеджеры помогут Вам подобрать оптимальное решения для ваших задач, сориентируют по наличию и ценам, расскажут про оптимальные варианты доставки и оплаты. Звоните +7 (343) 300-90-87
