Производство, продажа и
поставка ЖБИ по России и СНГ
Навигация
Код товара:
44 162 руб.
цена с НДС*
Цена за 1м3, руб
23 292 с НДС*

серия 1.020.1-3пв

Краткие характеристики
Длина, мм
5560
Ширина, мм
345
Высота, мм
2540
Вес, кг
4740

Все характеристики
Длина, мм
5560
Ширина, мм
345
Высота, мм
2540
Вес, кг
4740
Количество в квадратом метре, шт
0,52
Нормы погрузки на авто
4
Нормы погрузки ЖД
14
Ссылка на стандарт
https://disk.yandex.ru/d/kLRT8gdqAOe5Sg
Расход стали, кг
189,1
Расход стали на 1м3 бетона, кг
99,74
Класс прочности
В22,5
Марка бетона
М300
Морозостойкость
F150-F300
Водонепроницаемость
W6-W8
Марка бетона по EN 206-1
C18/22
Геометрический объем
4,872
Объем бетона
1,90
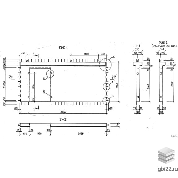
Диафрагмы 1ДПК 56-25 л пв размеры: длина, мм.: 5560, ширина, мм.: 345, высота, мм.: 2540, вес, кг.: 4740, марка бетона: М300. Изделия относятся к категории Диафрагмы жесткости железобетонные-Диафрагмы жесткости и изготавливаются по технической документации согласно серия 1.020.1-3пв
Стандарт
серия
Номер стандарта
1.020.1-3пв
Статус
действует
Год выпущенного стандарта
1985
Название стандарта
Конструкции каркаса межвидового применения многоэтажных общественных зданий производственных и вспомогательных зданий промышленных предприятий для строительства на просадочных грунтах и на подрабатываемых территориях.
Название Длина, ммШирина, ммВысота, ммВес, кгНомер стандарта Цена
5560140281044501.020-1/87
45 734 руб.
3160140431030601.020-1/87
42 106 руб.
3160140416028901.020-1/87
40 818 руб.
3160140371021001.020-1/87
35 141 руб.
3160140356022301.020-1/87
34 675 руб.
2980140431035001.020-1/87
44 111 руб.
2980140416033501.020-1/87
42 902 руб.
2980140371028801.020-1/87
39 090 руб.
2980140356027301.020-1/87
37 044 руб.
2980140311022601.020-1/87
35 988 руб.
2980140296021001.020-1/87
33 913 руб.
2980140281019401.020-1/87
31 430 руб.
2560140431028801.020-1/87
39 975 руб.
2560140416027301.020-1/87
38 303 руб.
2560140371023301.020-1/87
34 939 руб.
2560140356022001.020-1/87
33 323 руб.
2560140311018001.020-1/87
32 593 руб.
2560140296016601.020-1/87
30 909 руб.
2560140281015501.020-1/87
28 997 руб.
5560140281054701.020-1/87
39 527 руб.
5560140178034701.020-1/87
24 486 руб.
5560140151029401.020-1/87
23 731 руб.
5560140118023001.020-1/87
17 231 руб.
2980140431045001.020-1/87
40 837 руб.
2980140416043501.020-1/87
39 789 руб.
2980140371038701.020-1/87
35 159 руб.
2980140356037101.020-1/87
33 643 руб.
2980140311032401.020-1/87
29 028 руб.
2980140296030901.020-1/87
27 628 руб.
2980140281029301.020-1/87
25 826 руб.
2560140431038501.020-1/87
36 611 руб.
2560140416037301.020-1/87
35 065 руб.
2560140371033301.020-1/87
31 439 руб.
2560140356031901.020-1/87
30 213 руб.
2560140311027901.020-1/87
25 789 руб.
2560140296026501.020-1/87
24 605 руб.
2560140281025201.020-1/87
23 082 руб.
2560140178016001.020-1/87
12 503 руб.
2560140151013501.020-1/87
13 304 руб.
2560140118010601.020-1/87
9 173 руб.
2380140431036001.020-1/87
34 195 руб.
2380140416034801.020-1/87
33 350 руб.
2380140371030901.020-1/87
29 685 руб.
2380140356029701.020-1/87
28 574 руб.
1480140431022301.020-1/87
24 569 руб.
1480140416021501.020-1/87
23 797 руб.
1480140371019201.020-1/87
21 621 руб.
1480140356018501.020-1/87
20 744 руб.
1480140281014601.020-1/87
16 302 руб.
1180140371015301.020-1/87
37 672 руб.
Полный каталог
Название Длина, ммШирина, ммВысота, ммВес, кгНомер стандарта Цена
720030030017601.020.1-3пв
35 145 руб.
720030030017601.020.1-3пв
30 448 руб.
720030030017601.020.1-3пв
22 735 руб.
720030030016901.020.1-3пв
19 517 руб.
720030030018801.020.1-3пв
47 359 руб.
720030030018401.020.1-3пв
41 175 руб.
540030020010101.020.1-3пв
24 644 руб.
540030020010101.020.1-3пв
21 079 руб.
540030020010101.020.1-3пв
15 225 руб.
540030020010101.020.1-3пв
13 085 руб.
540030020010101.020.1-3пв
33 402 руб.
540030020010101.020.1-3пв
28 889 руб.
42003002007601.020.1-3пв
19 187 руб.
42003002007601.020.1-3пв
16 370 руб.
42003002007601.020.1-3пв
11 753 руб.
42003002007601.020.1-3пв
10 064 руб.
42003002007601.020.1-3пв
26 091 руб.
42003002007601.020.1-3пв
22 526 руб.
27003002004901.020.1-3пв
12 605 руб.
27003002004901.020.1-3пв
10 733 руб.
27003002004901.020.1-3пв
7 663 руб.
27003002004901.020.1-3пв
6 541 руб.
27003002004901.020.1-3пв
17 195 руб.
27003002004901.020.1-3пв
14 821 руб.
12003002002201.020.1-3пв
6 025 руб.
12003002002201.020.1-3пв
5 095 руб.
12003002002201.020.1-3пв
3 574 руб.
12003002002201.020.1-3пв
3 017 руб.
12003002002201.020.1-3пв
8 300 руб.
12003002002201.020.1-3пв
7 122 руб.
1020030030026101.020.1-3пв
51 987 руб.
1020030030026101.020.1-3пв
45 409 руб.
1020030030026101.020.1-3пв
34 600 руб.
1020030030026101.020.1-3пв
30 653 руб.
1020030030026101.020.1-3пв
68 143 руб.
1020030030026101.020.1-3пв
59 811 руб.
5980308535085801.020.1-3пв
53 116 руб.
5980308025061801.020.1-3пв
43 595 руб.
5980228535063501.020.1-3пв
38 393 руб.
5980228525045801.020.1-3пв
30 869 руб.
560560448514201.020.1-3пв
9 276 руб.
560560388513101.020.1-3пв
8 405 руб.
560560358511201.020.1-3пв
6 826 руб.
56056030858301.020.1-3пв
5 116 руб.
560560228510201.020.1-3пв
5 702 руб.
46046044858801.020.1-3пв
6 602 руб.
46046038858201.020.1-3пв
6 006 руб.
46046035856901.020.1-3пв
4 709 руб.
46046030856901.020.1-3пв
4 355 руб.
46046022855201.020.1-3пв
3 359 руб.

ТД "Еврастрой" предлагает купить Диафрагмы 1ДПК 56-25 л пв по выгодной цене. Наша компания осуществляет доставку продукции по всей территории России и странам СНГ.

В каталоге представлено около 170 тыс. позиций.

По наличию и ценам Мы можем проконсультировать Вас по телефону +7 (343) 300-90-87 или можете отправить запрос на почтовый ящик gbi@gbi22.ru.

Оплатить продукцию можно в рассрочку, для обсуждения вопросов оплаты так же можно обратиться к нашим менеджерам.

Продажа ЖБИ изделий производится с заводов в таких городах как:

  • Екатеринбург
  • Тюмень
  • Красноярск
  • Новосибирск
  • Иркутск
  • Ростов-на-дону
  • Нижний Новгород
  • Казань
  • Москва

Наши менеджеры помогут Вам подобрать оптимальное решения для ваших задач, сориентируют по наличию и ценам, расскажут про оптимальные варианты доставки и оплаты. Звоните +7 (343) 300-90-87

44 162 руб.
цена с НДС*
Наличие: нет
шт.
Перейти в корзину

Оформить заказ
Рассрочка
Рассказать друзьям: