В вашей корзине ещё нет товаров.
| Цена за 1м3, руб | 20 916 с НДС* |
|
|||||||||
| Количество в квадратом метре, шт | 0,49 | ||||||||
| Нормы погрузки на авто | 2 | ||||||||
| Нормы погрузки ЖД | 9 | ||||||||
| Ссылка на стандарт | https://disk.yandex.ru/d/rCeHKzHhuDE2jw | ||||||||
| Расход стали, кг | 233,21 |
| Расход стали на 1м3 бетона, кг | 79,11 |
| Класс прочности | В22,5 |
| Марка бетона | М300 |
| Морозостойкость | F150-F300 |
| Водонепроницаемость | W6-W8 |
| Марка бетона по EN 206-1 | C18/22 |
| Геометрический объем | 5,884 |
| Объем бетона | 2,95 |
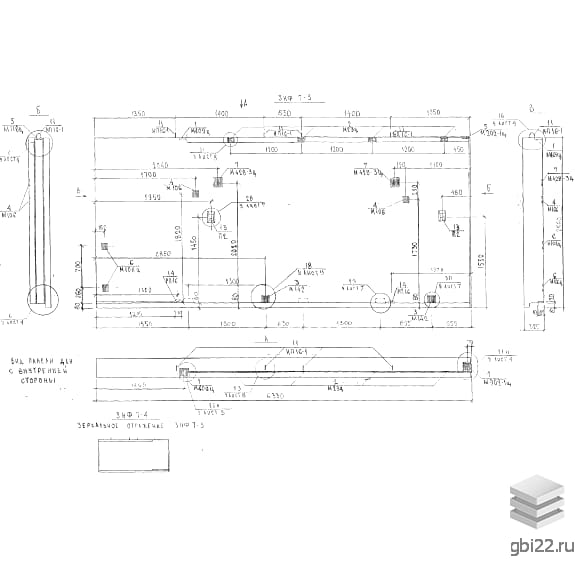
Изделия 3НФ 7-4 (Альбом 3РС 41-24) — унифицированные строительные конструкции с чёткой системой обозначений:
Допускаются дополнительные буквенные индексы, обозначающие расположение выступов. Изменение маркировки запрещено.
Конструкции прямоугольной формы с выступами на торцах и продольных гранях для надёжного соединения в каркасе здания.
Применение: несущие стены жилых домов и блок-секций серии П3М17. Обеспечивают устойчивость фасада и соответствуют требованиям СНиП II-3-79 и СНиП 2.03.01-84.
Преимущества:
Изготовление регламентировано Альбомом 3РС 41-24 с использованием стальных форм. Фасадная сторона обращена к поддону для улучшения качества поверхности.
Материалы:
Перевозка — на панелевозах с фиксацией для защиты поверхности. Хранение — вертикально в кассетах с деревянными подкладками под внутренний слой.
| Длина: | 6330 мм |
| Ширина: | 325 мм |
| Высота: | 2860 мм |
| Вес: | 7370 кг |
| Марка бетона: | М300 |
| Стандарт | альбом |
| Номер стандарта | 3РС 41-24 |
| Статус | не определен |
| Год выпущенного стандарта | 2003 |
| Название стандарта | Панели наружных стен фризовые трехслойные с высокими теплотехническими характеристиками для вставок и перепадов. |
| Название | Длина, мм | Ширина, мм | Высота, мм | Вес, кг | Номер стандарта | Цена | |
|---|---|---|---|---|---|---|---|
| 5990 | 350 | 2900 | 5900 | 97.87 ИЖ 1.1-1 |
37 425 руб. |
||
| 4490 | 350 | 2900 | 5370 | 97.87 ИЖ 1.1-1 |
28 151 руб. |
||
| 2990 | 350 | 2900 | 2780 | 97.87 ИЖ 1.1-1 |
14 786 руб. |
||
| 6780 | 400 | 2950 | 7150 | РМ 2919-04 |
50 481 руб. |
||
| 6850 | 400 | 1260 | 3710 | РМ 2919-04 |
25 917 руб. |
||
| 6485 | 400 | 2950 | 6710 | РМ 2919-04 |
48 205 руб. |
||
| 6480 | 400 | 1310 | 3230 | РМ 2919-04 |
23 847 руб. |
||
| 6485 | 400 | 1260 | 3590 | РМ 2919-04 |
24 345 руб. |
||
| 6180 | 400 | 1310 | 2450 | РМ 2919-04 |
19 107 руб. |
||
| 2650 | 400 | 700 | 820 | РМ 2919-04 |
6 168 руб. |
||
| 2650 | 400 | 700 | 840 | РМ 2919-04 |
5 444 руб. |
||
| 2650 | 400 | 700 | 840 | РМ 2919-04 |
5 444 руб. |
||
| 2235 | 300 | 700 | 640 | РМ 2919-04 |
5 423 руб. |
||
| 980 | 280 | 3260 | 1270 | РМ 2919-04 |
9 633 руб. |
||
| 980 | 280 | 3260 | 1270 | РМ 2919-04 |
9 633 руб. |
||
| 2720 | 230 | 1025 | 440 | РМ 2919-03 |
19 321 руб. |
||
| 2720 | 230 | 1025 | 440 | РМ 2919-03 |
19 321 руб. |
||
| 3590 | 380 | 2865 | 3920 | РМ 2919-03 |
27 741 руб. |
||
| 3490 | 380 | 2700 | 3510 | РМ 2919-03 |
24 880 руб. |
||
| 3490 | 380 | 2700 | 3510 | РМ 2919-03 |
24 880 руб. |
||
| 1780 | 380 | 2865 | 2040 | РМ 2919-03 |
14 387 руб. |
||
| 1780 | 380 | 2865 | 2040 | РМ 2919-03 |
14 387 руб. |
||
| 5885 | 280 | 2865 | 5660 | РМ 2919-03 |
41 136 руб. |
||
| 5885 | 280 | 2865 | 5660 | РМ 2919-03 |
41 136 руб. |
||
| 4680 | 280 | 2865 | 4480 | РМ 2919-03 |
49 593 руб. |
||
| 4680 | 280 | 2865 | 4480 | РМ 2919-03 |
49 593 руб. |
||
| 4285 | 280 | 2865 | 4450 | РМ 2919-03 |
45 998 руб. |
||
| 4285 | 280 | 2865 | 4450 | РМ 2919-03 |
45 998 руб. |
||
| 6780 | 400 | 2865 | 6890 | РМ 2919-03 |
53 776 руб. |
||
| 6780 | 400 | 2865 | 6730 | РМ 2919-03 |
52 966 руб. |
||
| 6485 | 400 | 2865 | 6360 | РМ 2919-03 |
50 798 руб. |
||
| 6485 | 400 | 2865 | 6320 | РМ 2919-03 |
50 443 руб. |
||
| 3590 | 450 | 2865 | 6936 | РМ 2919-02 |
41 593 руб. |
||
| 3490 | 450 | 2710 | 5664 | РМ 2919-02 |
36 112 руб. |
||
| 3485 | 450 | 2710 | 6912 | РМ 2919-02 |
42 036 руб. |
||
| 3490 | 450 | 2710 | 6504 | РМ 2919-02 |
39 424 руб. |
||
| 3490 | 450 | 2710 | 6504 | РМ 2919-02 |
39 424 руб. |
||
| 800 | 350 | 2150 | 1056 | РМ 2919-02 |
7 333 руб. |
||
| 6285 | 310 | 2865 | 10968 | РМ 2919-02 |
125 786 руб. |
||
| 6285 | 310 | 2865 | 10968 | РМ 2919-02 |
108 507 руб. |
||
| 5885 | 310 | 2865 | 10536 | РМ 2919-02 |
64 596 руб. |
||
| 5885 | 310 | 2865 | 10536 | РМ 2919-02 |
64 596 руб. |
||
| 5695 | 310 | 2865 | 9888 | РМ 2919-02 |
115 013 руб. |
||
| 5695 | 310 | 2865 | 9888 | РМ 2919-02 |
97 734 руб. |
||
| 4595 | 350 | 2865 | 7248 | РМ 2919-02 |
44 057 руб. |
||
| 3485 | 350 | 2700 | 4800 | РМ 2919-02 |
56 838 руб. |
||
| 2535 | 350 | 705 | 1128 | РМ 2919-02 |
7 778 руб. |
||
| 6780 | 350 | 2865 | 12984 | РМ 2919-02 |
79 236 руб. |
||
| 3195 | 400 | 3030 | 4630 | 7РС 41133 |
40 265 руб. |
||
| 3195 | 400 | 3030 | 4630 | 7РС 41133 |
40 265 руб. |
| Название | Длина, мм | Ширина, мм | Высота, мм | Вес, кг | Номер стандарта | Цена | |
|---|---|---|---|---|---|---|---|
| 6330 | 325 | 2860 | 7220 | 3РС 41-24 |
59 634 руб. |
||
| 6330 | 325 | 2860 | 6860 | 3РС 41-24 |
57 934 руб. |
||
| 6330 | 325 | 2860 | 7220 | 3РС 41-24 |
59 634 руб. |
||
| 6330 | 325 | 2860 | 6860 | 3РС 41-24 |
57 934 руб. |
||
| 6330 | 325 | 2860 | 7370 | 3РС 41-24 |
61 660 руб. |
||
| 5030 | 325 | 2860 | 6600 | 3РС 41-24 |
54 098 руб. |
||
| 6330 | 325 | 2860 | 7240 | 3РС 41-24 |
58 363 руб. |
||
| 6330 | 325 | 2860 | 6880 | 3РС 41-24 |
56 663 руб. |
||
| 6330 | 325 | 2860 | 7390 | 3РС 41-24 |
61 420 руб. |
||
| 5030 | 325 | 2860 | 6600 | 3РС 41-24 |
54 098 руб. |
||
| 6330 | 325 | 2860 | 7240 | 3РС 41-24 |
58 363 руб. |
||
| 6330 | 325 | 2860 | 6880 | 3РС 41-24 |
56 663 руб. |
||
| 6330 | 325 | 2860 | 7390 | 3РС 41-24 |
61 420 руб. |
||
| 2980 | 325 | 2860 | 3410 | 3РС 41-24 |
29 650 руб. |
||
| 2980 | 325 | 2860 | 3410 | 3РС 41-24 |
29 650 руб. |
||
| 3180 | 325 | 2860 | 3630 | 3РС 41-24 |
31 025 руб. |
||
| 3180 | 325 | 2860 | 3630 | 3РС 41-24 |
31 025 руб. |
||
| 2980 | 325 | 2780 | 3490 | 3РС 41-24 |
29 783 руб. |
||
| 3180 | 325 | 2780 | 3610 | 3РС 41-24 |
31 374 руб. |
||
| 2980 | 325 | 2780 | 3490 | 3РС 41-24 |
29 783 руб. |
||
| 3180 | 325 | 2780 | 3610 | 3РС 41-24 |
31 374 руб. |
||
| 3180 | 325 | 2860 | 3840 | 3РС 41-24 |
30 897 руб. |
||
| 4690 | 325 | 900 | 1330 | 3РС 41-24 |
10 210 руб. |
||
| 4690 | 325 | 900 | 1330 | 3РС 41-24 |
10 210 руб. |
ТД "Еврастрой" предлагает купить Панели наружных стен трехслойные 3НФ 7-4 по выгодной цене. Наша компания осуществляет доставку продукции по всей территории России и странам СНГ.
В каталоге представлено около 170 тыс. позиций.
По наличию и ценам Мы можем проконсультировать Вас по телефону +7 (343) 300-90-87 или можете отправить запрос на почтовый ящик gbi@gbi22.ru.
Оплатить продукцию можно в рассрочку, для обсуждения вопросов оплаты так же можно обратиться к нашим менеджерам.
Продажа ЖБИ изделий производится с заводов в таких городах как:
Наши менеджеры помогут Вам подобрать оптимальное решения для ваших задач, сориентируют по наличию и ценам, расскажут про оптимальные варианты доставки и оплаты. Звоните +7 (343) 300-90-87
