В вашей корзине ещё нет товаров.
|
|||||||||
| Количество в квадратом метре, шт | 0,83 | ||||||||
| Нормы погрузки на авто | 8 | ||||||||
| Нормы погрузки ЖД | 21 | ||||||||
| Ссылка на стандарт | https://disk.yandex.ru/d/7FFnnzvh2ZoK0A | ||||||||
| Расход стали, кг | 0 |
| Расход стали на 1м3 бетона, кг | 0,00 |
| Класс прочности | В7,5 |
| Марка бетона | М100 |
| Морозостойкость | F50-F100 |
| Водонепроницаемость | W2-W4 |
| Геометрический объем | 3,453 |
| Объем бетона | 1,00 |
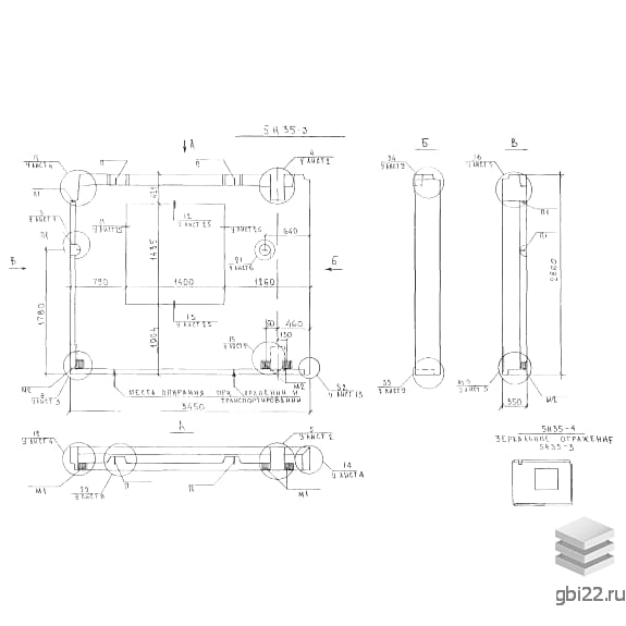
Маркировка 5Н 35-3 расшифровывается следующим образом:
Изделие представляет собой прямоугольную плиту с углублениями на торцах для плотного соединения при монтаже. Внутренний слой выполняет функцию утеплителя, повышая энергоэффективность конструкции.
Панели востребованы в многоэтажном строительстве, особенно для зданий с узким шагом несущих стен. Возможны модификации с оконными и дверными проёмами, что ускоряет сборку без дополнительных элементов.
Изготавливаются из керамзитобетона, что снижает вес. Требования к качеству арматуры и защитному слою бетона регламентированы ГОСТ 10922-92. Утеплитель монтируется по спецсхемам для максимальной теплоизоляции.
Подъём осуществляется только за строповочные петли с балансирующими траверсами. Хранение — вертикально в кассетах с деревянными прокладками под петлями. Не допускаются механические повреждения.
Подробные спецификации приведены в Альбоме 5РС 41-57 и соответствуют СНиП 2.03.01-84.
| Стандарт | альбом |
| Номер стандарта | 5РС 41-57 |
| Статус | не определен |
| Год выпущенного стандарта | 1996 |
| Название стандарта | Проекты на основе конструкций и изделий территориального каталога. Железобетонные конструкции панельных жилых домов с узким шагом несущих стен для жилых блок-секций П46М производства АООТ "АРКАДО" ДСК-4. Панели наружных стен бетонные трехслойные с высоким |
| Название | Длина, мм | Ширина, мм | Высота, мм | Вес, кг | Номер стандарта | Цена | |
|---|---|---|---|---|---|---|---|
| 5990 | 350 | 2900 | 5900 | 97.87 ИЖ 1.1-1 |
37 425 руб. |
||
| 4490 | 350 | 2900 | 5370 | 97.87 ИЖ 1.1-1 |
28 151 руб. |
||
| 2990 | 350 | 2900 | 2780 | 97.87 ИЖ 1.1-1 |
14 786 руб. |
||
| 6780 | 400 | 2950 | 7150 | РМ 2919-04 |
50 481 руб. |
||
| 6850 | 400 | 1260 | 3710 | РМ 2919-04 |
25 917 руб. |
||
| 6485 | 400 | 2950 | 6710 | РМ 2919-04 |
48 205 руб. |
||
| 6480 | 400 | 1310 | 3230 | РМ 2919-04 |
23 847 руб. |
||
| 6485 | 400 | 1260 | 3590 | РМ 2919-04 |
24 345 руб. |
||
| 6180 | 400 | 1310 | 2450 | РМ 2919-04 |
19 107 руб. |
||
| 2650 | 400 | 700 | 820 | РМ 2919-04 |
6 168 руб. |
||
| 2650 | 400 | 700 | 840 | РМ 2919-04 |
5 444 руб. |
||
| 2650 | 400 | 700 | 840 | РМ 2919-04 |
5 444 руб. |
||
| 2235 | 300 | 700 | 640 | РМ 2919-04 |
5 423 руб. |
||
| 980 | 280 | 3260 | 1270 | РМ 2919-04 |
9 633 руб. |
||
| 980 | 280 | 3260 | 1270 | РМ 2919-04 |
9 633 руб. |
||
| 2720 | 230 | 1025 | 440 | РМ 2919-03 |
19 321 руб. |
||
| 2720 | 230 | 1025 | 440 | РМ 2919-03 |
19 321 руб. |
||
| 3590 | 380 | 2865 | 3920 | РМ 2919-03 |
27 741 руб. |
||
| 3490 | 380 | 2700 | 3510 | РМ 2919-03 |
24 880 руб. |
||
| 3490 | 380 | 2700 | 3510 | РМ 2919-03 |
24 880 руб. |
||
| 1780 | 380 | 2865 | 2040 | РМ 2919-03 |
14 387 руб. |
||
| 1780 | 380 | 2865 | 2040 | РМ 2919-03 |
14 387 руб. |
||
| 5885 | 280 | 2865 | 5660 | РМ 2919-03 |
41 136 руб. |
||
| 5885 | 280 | 2865 | 5660 | РМ 2919-03 |
41 136 руб. |
||
| 4680 | 280 | 2865 | 4480 | РМ 2919-03 |
49 593 руб. |
||
| 4680 | 280 | 2865 | 4480 | РМ 2919-03 |
49 593 руб. |
||
| 4285 | 280 | 2865 | 4450 | РМ 2919-03 |
45 998 руб. |
||
| 4285 | 280 | 2865 | 4450 | РМ 2919-03 |
45 998 руб. |
||
| 6780 | 400 | 2865 | 6890 | РМ 2919-03 |
53 776 руб. |
||
| 6780 | 400 | 2865 | 6730 | РМ 2919-03 |
52 966 руб. |
||
| 6485 | 400 | 2865 | 6360 | РМ 2919-03 |
50 798 руб. |
||
| 6485 | 400 | 2865 | 6320 | РМ 2919-03 |
50 443 руб. |
||
| 3590 | 450 | 2865 | 6936 | РМ 2919-02 |
41 593 руб. |
||
| 3490 | 450 | 2710 | 5664 | РМ 2919-02 |
36 112 руб. |
||
| 3485 | 450 | 2710 | 6912 | РМ 2919-02 |
42 036 руб. |
||
| 3490 | 450 | 2710 | 6504 | РМ 2919-02 |
39 424 руб. |
||
| 3490 | 450 | 2710 | 6504 | РМ 2919-02 |
39 424 руб. |
||
| 800 | 350 | 2150 | 1056 | РМ 2919-02 |
7 333 руб. |
||
| 6285 | 310 | 2865 | 10968 | РМ 2919-02 |
125 786 руб. |
||
| 6285 | 310 | 2865 | 10968 | РМ 2919-02 |
108 507 руб. |
||
| 5885 | 310 | 2865 | 10536 | РМ 2919-02 |
64 596 руб. |
||
| 5885 | 310 | 2865 | 10536 | РМ 2919-02 |
64 596 руб. |
||
| 5695 | 310 | 2865 | 9888 | РМ 2919-02 |
115 013 руб. |
||
| 5695 | 310 | 2865 | 9888 | РМ 2919-02 |
97 734 руб. |
||
| 4595 | 350 | 2865 | 7248 | РМ 2919-02 |
44 057 руб. |
||
| 3485 | 350 | 2700 | 4800 | РМ 2919-02 |
56 838 руб. |
||
| 2535 | 350 | 705 | 1128 | РМ 2919-02 |
7 778 руб. |
||
| 6780 | 350 | 2865 | 12984 | РМ 2919-02 |
79 236 руб. |
||
| 3195 | 400 | 3030 | 4630 | 7РС 41133 |
40 265 руб. |
||
| 3195 | 400 | 3030 | 4630 | 7РС 41133 |
40 265 руб. |
| Название | Длина, мм | Ширина, мм | Высота, мм | Вес, кг | Номер стандарта | Цена | |
|---|---|---|---|---|---|---|---|
| 810 | 350 | 2700 | 800 | 5РС 41-57 |
4 482 руб. |
||
| 810 | 350 | 2620 | 780 | 5РС 41-57 |
4 370 руб. |
||
| 810 | 350 | 2780 | 800 | 5РС 41-57 |
4 482 руб. |
||
| 7180 | 350 | 2860 | 5230 | 5РС 41-57 |
29 303 руб. |
||
| 7180 | 350 | 2860 | 5230 | 5РС 41-57 |
29 303 руб. |
||
| 7180 | 350 | 2860 | 5230 | 5РС 41-57 |
29 303 руб. |
||
| 7180 | 350 | 2860 | 4960 | 5РС 41-57 |
27 790 руб. |
||
| 7180 | 350 | 2860 | 4960 | 5РС 41-57 |
27 790 руб. |
||
| 7180 | 350 | 2860 | 5210 | 5РС 41-57 |
29 191 руб. |
||
| 7180 | 350 | 2860 | 5210 | 5РС 41-57 |
29 191 руб. |
||
| 7180 | 350 | 2860 | 4100 | 5РС 41-57 |
22 972 руб. |
||
| 7180 | 350 | 2860 | 5230 | 5РС 41-57 |
29 303 руб. |
||
| 7180 | 350 | 2860 | 4100 | 5РС 41-57 |
22 972 руб. |
||
| 7080 | 350 | 2860 | 5130 | 5РС 41-57 |
28 743 руб. |
||
| 7080 | 350 | 2860 | 5130 | 5РС 41-57 |
28 743 руб. |
||
| 7080 | 350 | 2860 | 4870 | 5РС 41-57 |
27 286 руб. |
||
| 7080 | 350 | 2860 | 4870 | 5РС 41-57 |
27 286 руб. |
||
| 7080 | 350 | 2860 | 5110 | 5РС 41-57 |
28 631 руб. |
||
| 7080 | 350 | 2860 | 5110 | 5РС 41-57 |
28 631 руб. |
||
| 7080 | 350 | 2860 | 4620 | 5РС 41-57 |
25 885 руб. |
||
| 7080 | 350 | 2860 | 4620 | 5РС 41-57 |
25 885 руб. |
||
| 6250 | 300 | 2860 | 6280 | 5РС 41-57 |
35 186 руб. |
||
| 6250 | 300 | 2860 | 6280 | 5РС 41-57 |
35 186 руб. |
||
| 6250 | 300 | 2860 | 6280 | 5РС 41-57 |
35 186 руб. |
||
| 6250 | 300 | 2860 | 6280 | 5РС 41-57 |
35 186 руб. |
||
| 5980 | 350 | 2780 | 4840 | 5РС 41-57 |
27 118 руб. |
||
| 5980 | 350 | 2860 | 4840 | 5РС 41-57 |
27 118 руб. |
||
| 5980 | 350 | 2860 | 4600 | 5РС 41-57 |
25 773 руб. |
||
| 5880 | 350 | 2860 | 4570 | 5РС 41-57 |
25 605 руб. |
||
| 5890 | 350 | 2860 | 4740 | 5РС 41-57 |
26 558 руб. |
||
| 5650 | 300 | 2860 | 5670 | 5РС 41-57 |
31 768 руб. |
||
| 5650 | 300 | 2860 | 5670 | 5РС 41-57 |
31 768 руб. |
||
| 4650 | 350 | 2860 | 3520 | 5РС 41-57 |
19 722 руб. |
||
| 4650 | 350 | 2860 | 3520 | 5РС 41-57 |
19 722 руб. |
||
| 4255 | 350 | 2860 | 4260 | 5РС 41-57 |
23 868 руб. |
||
| 4180 | 350 | 2860 | 2770 | 5РС 41-57 |
15 520 руб. |
||
| 4180 | 350 | 2860 | 2770 | 5РС 41-57 |
15 520 руб. |
||
| 4180 | 350 | 2860 | 3070 | 5РС 41-57 |
17 201 руб. |
||
| 4180 | 350 | 2860 | 3070 | 5РС 41-57 |
17 201 руб. |
||
| 4210 | 350 | 2860 | 4310 | 5РС 41-57 |
24 149 руб. |
||
| 3790 | 350 | 2860 | 3630 | 5РС 41-57 |
20 339 руб. |
||
| 3450 | 350 | 2860 | 1990 | 5РС 41-57 |
11 150 руб. |
||
| 3450 | 350 | 2860 | 2490 | 5РС 41-57 |
13 951 руб. |
||
| 3450 | 350 | 2860 | 2210 | 5РС 41-57 |
12 382 руб. |
||
| 3450 | 350 | 2860 | 2210 | 5РС 41-57 |
12 382 руб. |
||
| 2980 | 350 | 4060 | 2920 | 5РС 41-57 |
16 360 руб. |
||
| 2980 | 350 | 4060 | 2940 | 5РС 41-57 |
16 473 руб. |
||
| 2980 | 350 | 4060 | 2940 | 5РС 41-57 |
16 473 руб. |
||
| 2980 | 350 | 2860 | 2170 | 5РС 41-57 |
12 158 руб. |
||
| 2980 | 350 | 2860 | 2170 | 5РС 41-57 |
12 158 руб. |
ТД "Еврастрой" предлагает купить Панели стеновые 5Н 35-3 по выгодной цене. Наша компания осуществляет доставку продукции по всей территории России и странам СНГ.
В каталоге представлено около 170 тыс. позиций.
По наличию и ценам Мы можем проконсультировать Вас по телефону +7 (343) 300-90-87 или можете отправить запрос на почтовый ящик gbi@gbi22.ru.
Оплатить продукцию можно в рассрочку, для обсуждения вопросов оплаты так же можно обратиться к нашим менеджерам.
Продажа ЖБИ изделий производится с заводов в таких городах как:
Наши менеджеры помогут Вам подобрать оптимальное решения для ваших задач, сориентируют по наличию и ценам, расскажут про оптимальные варианты доставки и оплаты. Звоните +7 (343) 300-90-87
