В вашей корзине ещё нет товаров.
| Цена за 1м3, руб | 14 251 с НДС* |
|
|||||||||
| Количество в квадратом метре, шт | 0,05 | ||||||||
| Нормы погрузки на авто | СПЕЦАВТО | ||||||||
| Нормы погрузки ЖД | СПЕЦВАГОН | ||||||||
| Ссылка на стандарт | https://disk.yandex.ru/d/xNKdME41gwIfXQ | ||||||||
| Расход стали, кг | 0 |
| Расход стали на 1м3 бетона, кг | 0,00 |
| Класс прочности | В15 |
| Марка бетона | М200 |
| Морозостойкость | F100-F200 |
| Водонепроницаемость | W4-W6 |
| Марка бетона по EN 206-1 | C12/15 |
| Геометрический объем | 2,696 |
| Объем бетона | 2,53 |
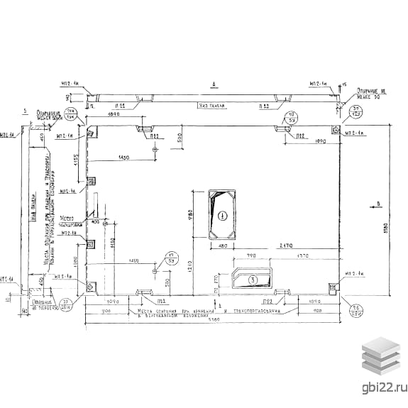
П 3654-9 (Альбом РМ 2283) — это стандартизированное обозначение строительных конструкций, где:
Изменение маркировки недопустимо, так как это может привести к ошибкам при подборе материалов для типовых проектов.
Железобетонные панели перекрытия П 3654-9 — это прямоугольные конструкции с трапециевидными пазами на боковых гранях для строповочных петель. Наличие закладных деталей обеспечивает надежное соединение с другими элементами здания.
Конструкции используются в качестве межэтажных перекрытий в жилых домах высотой от 2 до 9 этажей. Минимальная величина опирания — 50 мм.
Изготовление осуществляется в вертикальных кассетных установках с применением тяжелого бетона класса B15 (М200) плотностью 2300 кг/м?. Параметры водонепроницаемости и морозостойкости подбираются с учетом климатических условий региона.
Для усиления конструкции используются сварные стальные каркасы и сетки из высокопрочной стали. Все металлические элементы обрабатываются антикоррозийными составами.
Перед отгрузкой каждая панель проходит испытания. На поверхностях не допускаются трещины, сколы или оголенная арматура.
Перевозка и складирование допускается как в горизонтальном, так и вертикальном положении с обязательным использованием деревянных прокладок в указанных местах опирания.
| Длина: | 5380 мм |
| Ширина: | 3580 мм |
| Высота: | 140 мм |
| Вес: | 6320 кг |
| Марка бетона: | М200 |
| Стандарт | альбом |
| Номер стандарта | РМ 2283 |
| Статус | не определен |
| Год выпущенного стандарта | 1992 |
| Название стандарта | ПД 1/2-9 серия 2-9 этажных жилых блок-секций производства ДСК-I для строительства в г. Москве. |
| Название | Длина, мм | Ширина, мм | Высота, мм | Вес, кг | Номер стандарта | Цена | |
|---|---|---|---|---|---|---|---|
| 6280 | 1490 | 220 | 2985 | 86 |
22 998 руб. |
||
| 6280 | 1490 | 220 | 2940 | 86 |
22 789 руб. |
||
| 6280 | 1190 | 220 | 2250 | 86 |
17 944 руб. |
||
| 6280 | 1190 | 220 | 2210 | 86 |
17 934 руб. |
||
| 6280 | 990 | 220 | 1855 | 86 |
14 940 руб. |
||
| 6280 | 990 | 220 | 1825 | 86 |
14 946 руб. |
||
| 6280 | 1490 | 220 | 3440 | 86 |
23 685 руб. |
||
| 6280 | 1490 | 220 | 3440 | 86 |
23 685 руб. |
||
| 6280 | 1490 | 220 | 3400 | 86 |
23 500 руб. |
||
| 6280 | 990 | 220 | 1855 | 86 |
13 159 руб. |
||
| 6280 | 990 | 220 | 1825 | 86 |
13 020 руб. |
||
| 6280 | 990 | 220 | 1855 | 86 |
12 464 руб. |
||
| 6280 | 990 | 220 | 1825 | 86 |
12 324 руб. |
||
| 5380 | 3580 | 140 | 6320 | РМ 2283 |
36 028 руб. |
||
| 5380 | 3580 | 140 | 6320 | РМ 2283 |
36 028 руб. |
||
| 5380 | 3580 | 140 | 6320 | РМ 2283 |
36 028 руб. |
||
| 5380 | 3580 | 140 | 6320 | РМ 2283 |
36 028 руб. |
||
| 5380 | 3580 | 140 | 6320 | РМ 2283 |
36 028 руб. |
||
| 5380 | 3580 | 140 | 6320 | РМ 2283 |
36 028 руб. |
||
| 5380 | 3580 | 140 | 6320 | РМ 2283 |
36 028 руб. |
||
| 5380 | 3580 | 140 | 6320 | РМ 2283 |
36 028 руб. |
||
| 5380 | 3580 | 140 | 6320 | РМ 2283 |
36 028 руб. |
||
| 5380 | 3580 | 140 | 6320 | РМ 2283 |
36 028 руб. |
||
| 5380 | 3580 | 140 | 6320 | РМ 2283 |
36 028 руб. |
||
| 5380 | 3580 | 140 | 6320 | РМ 2283 |
36 028 руб. |
||
| 5380 | 3580 | 140 | 6320 | РМ 2283 |
36 028 руб. |
||
| 5380 | 3580 | 140 | 6320 | РМ 2283 |
36 028 руб. |
||
| 5380 | 3580 | 140 | 6320 | РМ 2283 |
36 028 руб. |
||
| 5380 | 3580 | 140 | 6130 | РМ 2283 |
34 945 руб. |
||
| 5380 | 3580 | 140 | 6130 | РМ 2283 |
34 945 руб. |
||
| 5380 | 3580 | 140 | 6130 | РМ 2283 |
34 945 руб. |
||
| 5380 | 3580 | 140 | 6320 | РМ 2283 |
36 028 руб. |
||
| 4180 | 3580 | 140 | 4910 | РМ 2283 |
27 990 руб. |
||
| 3880 | 3580 | 140 | 4560 | РМ 2283 |
25 995 руб. |
||
| 3880 | 3580 | 140 | 4560 | РМ 2283 |
25 995 руб. |
||
| 3280 | 3580 | 140 | 3850 | РМ 2283 |
21 947 руб. |
||
| 3280 | 3580 | 140 | 3850 | РМ 2283 |
21 947 руб. |
||
| 2080 | 3580 | 140 | 2440 | РМ 2283 |
13 909 руб. |
||
| 5380 | 2080 | 140 | 3660 | РМ 2283 |
20 864 руб. |
||
| 5380 | 2080 | 140 | 3660 | РМ 2283 |
20 864 руб. |
||
| 1790 | 1790 | 140 | 1060 | РМ 2283 |
6 043 руб. |
||
| 1790 | 180 | 140 | 100 | РМ 2283 |
570 руб. |
| Название | Длина, мм | Ширина, мм | Высота, мм | Вес, кг | Номер стандарта | Цена | |
|---|---|---|---|---|---|---|---|
| 1930 | 2920 | 2790 | 4750 | РМ 2283 |
27 078 руб. |
||
| 7180 | 400 | 2150 | 11750 | РМ 2283 |
66 982 руб. |
||
| 5590 | 400 | 2190 | 12000 | РМ 2283 |
68 407 руб. |
||
| 580 | 80 | 2620 | 300 | РМ 2283 |
1 710 руб. |
||
| 3400 | 80 | 2620 | 1290 | РМ 2283 |
7 354 руб. |
||
| 3190 | 2190 | 180 | 2357 | РМ 2283 |
13 436 руб. |
||
| 3190 | 2190 | 180 | 2357 | РМ 2283 |
13 436 руб. |
||
| 1900 | 80 | 2620 | 550 | РМ 2283 |
3 135 руб. |
||
| 1620 | 80 | 2620 | 780 | РМ 2283 |
4 446 руб. |
||
| 5380 | 3580 | 140 | 6320 | РМ 2283 |
36 028 руб. |
||
| 5380 | 3580 | 140 | 6320 | РМ 2283 |
36 028 руб. |
||
| 5380 | 3580 | 140 | 6320 | РМ 2283 |
36 028 руб. |
||
| 5380 | 3580 | 140 | 6320 | РМ 2283 |
36 028 руб. |
||
| 5380 | 3580 | 140 | 6320 | РМ 2283 |
36 028 руб. |
||
| 5380 | 3580 | 140 | 6320 | РМ 2283 |
36 028 руб. |
||
| 5380 | 3580 | 140 | 6320 | РМ 2283 |
36 028 руб. |
||
| 5380 | 3580 | 140 | 6320 | РМ 2283 |
36 028 руб. |
||
| 5380 | 3580 | 140 | 6320 | РМ 2283 |
36 028 руб. |
||
| 5380 | 3580 | 140 | 6320 | РМ 2283 |
36 028 руб. |
||
| 5380 | 3580 | 140 | 6320 | РМ 2283 |
36 028 руб. |
||
| 5380 | 3580 | 140 | 6320 | РМ 2283 |
36 028 руб. |
||
| 5380 | 3580 | 140 | 6320 | РМ 2283 |
36 028 руб. |
||
| 5380 | 3580 | 140 | 6320 | РМ 2283 |
36 028 руб. |
||
| 5380 | 3580 | 140 | 6320 | РМ 2283 |
36 028 руб. |
||
| 5380 | 3580 | 140 | 6130 | РМ 2283 |
34 945 руб. |
||
| 5380 | 3580 | 140 | 6130 | РМ 2283 |
34 945 руб. |
||
| 5380 | 3580 | 140 | 6130 | РМ 2283 |
34 945 руб. |
||
| 5380 | 3580 | 140 | 6320 | РМ 2283 |
36 028 руб. |
||
| 4180 | 3580 | 140 | 4910 | РМ 2283 |
27 990 руб. |
||
| 3880 | 3580 | 140 | 4560 | РМ 2283 |
25 995 руб. |
||
| 3880 | 3580 | 140 | 4560 | РМ 2283 |
25 995 руб. |
||
| 3280 | 3580 | 140 | 3850 | РМ 2283 |
21 947 руб. |
||
| 3280 | 3580 | 140 | 3850 | РМ 2283 |
21 947 руб. |
||
| 2080 | 3580 | 140 | 2440 | РМ 2283 |
13 909 руб. |
||
| 5380 | 2080 | 140 | 3660 | РМ 2283 |
20 864 руб. |
||
| 5380 | 2080 | 140 | 3660 | РМ 2283 |
20 864 руб. |
||
| 1790 | 1790 | 140 | 1060 | РМ 2283 |
6 043 руб. |
||
| 1790 | 180 | 140 | 100 | РМ 2283 |
570 руб. |
||
| 7180 | 1200 | 2150 | 7000 | РМ 2283 |
39 904 руб. |
||
| 2260 | 3380 | 350 | 2760 | РМ 2283 |
15 734 руб. |
||
| 2080 | 7180 | 350 | 5110 | РМ 2283 |
29 130 руб. |
||
| 1580 | 1180 | 140 | 582 | РМ 2283 |
3 318 руб. |
||
| 5360 | 180 | 2780 | 6160 | РМ 2283 |
35 116 руб. |
||
| 5360 | 180 | 2780 | 6160 | РМ 2283 |
35 116 руб. |
||
| 3780 | 180 | 2780 | 4350 | РМ 2283 |
24 798 руб. |
||
| 1880 | 180 | 2780 | 2160 | РМ 2283 |
12 313 руб. |
||
| 5280 | 180 | 2630 | 5750 | РМ 2283 |
32 778 руб. |
||
| 5200 | 180 | 2630 | 5660 | РМ 2283 |
32 265 руб. |
||
| 5200 | 140 | 2630 | 3540 | РМ 2283 |
20 180 руб. |
||
| 5200 | 140 | 2630 | 3540 | РМ 2283 |
20 180 руб. |
ТД "Еврастрой" предлагает купить Панели перекрытий П 3654-9 по выгодной цене. Наша компания осуществляет доставку продукции по всей территории России и странам СНГ.
В каталоге представлено около 170 тыс. позиций.
По наличию и ценам Мы можем проконсультировать Вас по телефону +7 (343) 300-90-87 или можете отправить запрос на почтовый ящик gbi@gbi22.ru.
Оплатить продукцию можно в рассрочку, для обсуждения вопросов оплаты так же можно обратиться к нашим менеджерам.
Продажа ЖБИ изделий производится с заводов в таких городах как:
Наши менеджеры помогут Вам подобрать оптимальное решения для ваших задач, сориентируют по наличию и ценам, расскажут про оптимальные варианты доставки и оплаты. Звоните +7 (343) 300-90-87
