В вашей корзине ещё нет товаров.
| Цена за 1м3, руб | 30 721 с НДС* |
|
|||||||||
| Количество в квадратом метре, шт | 0,08 | ||||||||
| Нормы погрузки на авто | 3 | ||||||||
| Нормы погрузки ЖД | 12 | ||||||||
| Ссылка на стандарт | https://disk.yandex.ru/d/xNU0X85KhPTJYQ | ||||||||
| Расход стали, кг | 244 |
| Расход стали на 1м3 бетона, кг | 112,96 |
| Класс прочности | В30 |
| Марка бетона | М400 |
| Морозостойкость | F200-F400 |
| Водонепроницаемость | W10-W12 |
| Марка бетона по EN 206-1 | C25/30 |
| Геометрический объем | 2,160 |
| Объем бетона | 2,16 |
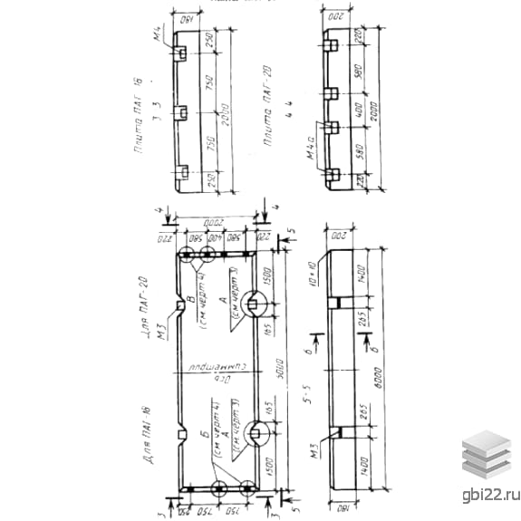
Аэродромные плиты ПАГ 18 V – это высокопрочные железобетонные конструкции, предназначенные для обустройства взлетно-посадочных полос, рулежных дорожек и площадок для стоянки воздушных судов. Их ключевые преимущества – долговечность, устойчивость к экстремальным нагрузкам и простота монтажа.
Обозначение изделий включает тип ЖБИ и размерную группу. Возможные варианты маркировки:
Габариты и вес:
Технические параметры:
Плиты ПАГ 18 V используют не только в авиастроении, но и в других сферах:
Армирование:
Изделия усилены предварительно напряженной арматурой классов Ат IV, АV, АтV (диаметр 10-12 мм) с антикоррозионной обработкой. Применяются сетки типов С1 и С2, что минимизирует деформации.
Технология производства:
Вибропрессование обеспечивает высокую плотность бетона и точность геометрических параметров.
Плиты ПАГ 18 V – оптимальное решение для создания надежных покрытий в условиях экстремальных нагрузок и перепадов температур.
| Стандарт | ГОСТ |
| Номер стандарта | 25912.0-91 |
| Статус | действует |
| Год выпущенного стандарта | 1992 |
| Название стандарта | Плиты железобетонные предварительно напряженные ПАГ для аэродромных покрытий. Технические условия. |
| Название | Длина, мм | Ширина, мм | Высота, мм | Вес, кг | Номер стандарта | Цена | |
|---|---|---|---|---|---|---|---|
| 6000 | 2000 | 140 | 4200 | 25912.0-91 |
44 668 руб. |
||
| 6000 | 2000 | 140 | 4200 | 25912.0-91 |
42 200 руб. |
||
| 6000 | 2000 | 180 | 5160 | 25912.0-91 |
51 974 руб. |
||
| 6000 | 2000 | 180 | 5400 | 3.506-3 |
56 634 руб. |
||
| 6000 | 2000 | 180 | 5400 | 3.506-3 |
56 634 руб. |
||
| 6000 | 2000 | 140 | 4200 | 3.506-3 |
43 678 руб. |
||
| 6000 | 2000 | 140 | 4200 | 3.506-3 |
44 852 руб. |
||
| 6000 | 2000 | 140 | 4200 | 3.506-3 |
44 852 руб. |
||
| 6000 | 2000 | 200 | 6000 | 25912-2015 |
68 438 руб. |
||
| 6000 | 2000 | 200 | 6000 | 25912-2015 |
69 032 руб. |
||
| 6000 | 2000 | 180 | 5400 | 25912-2015 |
53 389 руб. |
||
| 6000 | 2000 | 180 | 5400 | 25912-2015 |
58 789 руб. |
||
| 6000 | 2000 | 180 | 5400 | 25912-2015 |
59 298 руб. |
||
| 6000 | 2000 | 140 | 4200 | 25912-2015 |
42 200 руб. |
||
| 6000 | 2000 | 140 | 4200 | 25912-2015 |
43 805 руб. |
||
| 6000 | 2000 | 140 | 4200 | 25912-2015 |
44 994 руб. |
||
| 6000 | 2000 | 140 | 4200 | 25912-2015 |
44 173 руб. |
||
| 6000 | 2000 | 140 | 4200 | 25912-2015 |
45 418 руб. |
||
| 6000 | 2000 | 200 | 6000 | 25912.0-91 |
69 032 руб. |
||
| 6000 | 2000 | 200 | 6000 | 25912.0-91 |
69 032 руб. |
||
| 6000 | 2000 | 180 | 5400 | 25912.0-91 |
66 358 руб. |
||
| 6000 | 2000 | 140 | 4200 | 25912.0-91 |
44 364 руб. |
||
| 6000 | 2000 | 140 | 4200 | 25912.0-91 |
44 364 руб. |
||
| 6000 | 2000 | 140 | 4200 | 25912.0-91 |
44 364 руб. |
||
| 6000 | 2000 | 140 | 4200 | 25912.0-91 |
44 364 руб. |
| Название | Длина, мм | Ширина, мм | Высота, мм | Вес, кг | Номер стандарта | Цена | |
|---|---|---|---|---|---|---|---|
| 6000 | 2000 | 140 | 4200 | 25912.0-91 |
44 668 руб. |
||
| 6000 | 2000 | 140 | 4200 | 25912.0-91 |
42 200 руб. |
||
| 6000 | 2000 | 180 | 5160 | 25912.0-91 |
51 974 руб. |
||
| 6000 | 2000 | 140 | 4200 | 25912.0-91 |
32 958 руб. |
||
| 3000 | 1750 | 170 | 2250 | 25912.0-91 |
14 912 руб. |
||
| 3000 | 1750 | 170 | 2250 | 25912.0-91 |
15 977 руб. |
||
| 3000 | 1750 | 170 | 2250 | 25912.0-91 |
16 156 руб. |
||
| 3000 | 1750 | 170 | 2250 | 25912.0-91 |
18 434 руб. |
||
| 6000 | 2000 | 200 | 6000 | 25912.0-91 |
69 032 руб. |
||
| 6000 | 2000 | 200 | 6000 | 25912.0-91 |
69 032 руб. |
||
| 6000 | 2000 | 180 | 5400 | 25912.0-91 |
66 358 руб. |
||
| 6000 | 2000 | 140 | 4200 | 25912.0-91 |
44 364 руб. |
||
| 6000 | 2000 | 140 | 4200 | 25912.0-91 |
44 364 руб. |
||
| 6000 | 2000 | 140 | 4200 | 25912.0-91 |
44 364 руб. |
||
| 6000 | 2000 | 140 | 4200 | 25912.0-91 |
44 364 руб. |
ТД "Еврастрой" предлагает купить Плиты аэродромные ПАГ 18 V по выгодной цене. Наша компания осуществляет доставку продукции по всей территории России и странам СНГ.
В каталоге представлено около 170 тыс. позиций.
По наличию и ценам Мы можем проконсультировать Вас по телефону +7 (343) 300-90-87 или можете отправить запрос на почтовый ящик gbi@gbi22.ru.
Оплатить продукцию можно в рассрочку, для обсуждения вопросов оплаты так же можно обратиться к нашим менеджерам.
Продажа ЖБИ изделий производится с заводов в таких городах как:
Наши менеджеры помогут Вам подобрать оптимальное решения для ваших задач, сориентируют по наличию и ценам, расскажут про оптимальные варианты доставки и оплаты. Звоните +7 (343) 300-90-87
