В вашей корзине ещё нет товаров.
|
|||||||||
| Количество в квадратом метре, шт | 1,64 | ||||||||
| Нормы погрузки на авто | 19 | ||||||||
| Нормы погрузки ЖД | 67 | ||||||||
| Ссылка на стандарт | https://disk.yandex.ru/d/FIWwvsougulwhA | ||||||||
| Расход стали, кг | 23,78 |
| Расход стали на 1м3 бетона, кг | 58,00 |
| Класс прочности | В22,5 |
| Марка бетона | М300 |
| Морозостойкость | F150-F300 |
| Водонепроницаемость | W6-W8 |
| Марка бетона по EN 206-1 | C18/22 |
| Геометрический объем | 0,408 |
| Объем бетона | 0,41 |
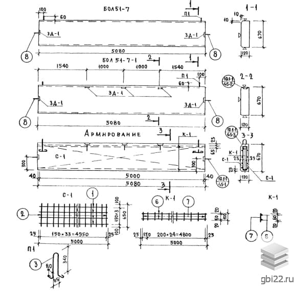
Ограждения для лоджий БОЛ 51-7 – это специализированные железобетонные конструкции, возникшие в результате разработки типовых серий жилых зданий улучшенной планировки (Серия 86). Эти элементы играют ключевую роль в архитектурных решениях и служат защитными ограждениями для встроенных террас, известных как лоджии.
БОЛ – тип изделия (бетонное ограждение лоджии);
51 – округлённая до большего значения длина в дециметрах;
7 – высота ограждения в дециметрах;
1 – отличительный признак, указывающий на отсутствие прямоугольных отверстий и наличие 4-х закладных элементов.
Длина: 5080 мм
Ширина: 120 мм
Высота: 670 мм
Вес: 1025 кг
Объем бетона: 0,41 м?
Геометрический объем: 0,4084 м?
Эти ограждения предназначены для использования в жилых домах высотой от 2 до 9 этажей, адаптированных к местным условиям. Они обеспечивают защиту и эстетическую привлекательность лоджий, что особенно важно для зданий, построенных по типовым проектам.
Ограждения представляют собой прямоугольные плиты, которые устанавливаются наравне с кирпичными и металлическими аналогами. Фиксация осуществляется с помощью сварки, что обеспечивает надежность и долговечность конструкции.
Проект может предусматривать различные варианты отделки бетонных ограждений, включая:
Ограждения должны соответствовать высоким стандартам качества, без трещин и сколов. Используемый бетон марки М300 должен обладать морозостойкостью не ниже F50 и водопроницаемостью W4.
Плиты ограждений следует хранить в вертикальном или наклонном положении, перемещая их только за монтажные петли. При транспортировке необходимо соблюдать минимальное расстояние до борта не менее 100 мм.
| Стандарт | серия |
| Номер стандарта | 86 |
| Статус | не определен |
| Год выпущенного стандарта | 1969 |
| Название стандарта | Кирпичные жилые дома с продольными несущими стенами. |
| Название | Длина, мм | Ширина, мм | Высота, мм | Вес, кг | Номер стандарта | Цена | |
|---|---|---|---|---|---|---|---|
| 2380 | 1450 | 150 | 1053 | ИИ 03-02 |
по запросу |
||
| 2380 | 1350 | 150 | 963 | ИИ 03-02 |
по запросу |
||
| 2380 | 1250 | 150 | 873 | ИИ 03-02 |
по запросу |
||
| 6280 | 1190 | 300 | 2280 | 1.137.1 КЛ-3 |
по запросу |
||
| 6280 | 1190 | 300 | 2280 | 1.137.1 КЛ-3 |
по запросу |
||
| 6280 | 1190 | 300 | 2330 | 1.137.1 КЛ-3 |
по запросу |
||
| 4480 | 3190 | 160 | 5230 | 1.100.1-7 |
по запросу |
||
| 4480 | 3240 | 160 | 5230 | 1.100.1-7 |
по запросу |
||
| 4480 | 3190 | 160 | 5230 | 1.100.1-7 |
по запросу |
||
| 4480 | 3240 | 160 | 5230 | 1.100.1-7 |
по запросу |
||
| 5080 | 100 | 670 | 850 | 86 |
7 726 руб. |
||
| 2980 | 1190 | 220 | 1425 | 86 |
8 946 руб. |
||
| 2980 | 1190 | 220 | 1425 | 86 |
8 946 руб. |
||
| 2980 | 1190 | 220 | 1235 | 86 |
8 061 руб. |
||
| 2640 | 1190 | 220 | 1250 | 86 |
7 910 руб. |
||
| 2640 | 1190 | 220 | 1250 | 86 |
7 910 руб. |
||
| 2640 | 1190 | 220 | 1075 | 86 |
7 016 руб. |
||
| 6280 | 120 | 900 | 1700 | 86 |
12 870 руб. |
||
| 6280 | 120 | 670 | 1260 | 86 |
10 472 руб. |
||
| 6280 | 120 | 670 | 1260 | 86 |
10 288 руб. |
||
| 6280 | 120 | 450 | 835 | 86 |
6 910 руб. |
||
| 6280 | 120 | 450 | 848 | 86 |
7 155 руб. |
||
| 6280 | 120 | 450 | 835 | 86 |
6 910 руб. |
||
| 5050 | 120 | 900 | 1375 | 86 |
9 640 руб. |
||
| 5080 | 120 | 670 | 1025 | 86 |
7 689 руб. |
||
| 5080 | 120 | 450 | 667 | 86 |
5 043 руб. |
||
| 5080 | 120 | 450 | 680 | 86 |
5 215 руб. |
||
| 5080 | 120 | 450 | 667 | 86 |
5 043 руб. |
||
| 4600 | 120 | 900 | 1240 | 86 |
8 756 руб. |
||
| 4600 | 120 | 670 | 925 | 86 |
7 021 руб. |
||
| 4600 | 120 | 670 | 925 | 86 |
6 911 руб. |
||
| 4600 | 120 | 450 | 607 | 86 |
4 610 руб. |
||
| 4600 | 120 | 450 | 620 | 86 |
4 782 руб. |
||
| 4600 | 120 | 450 | 607 | 86 |
4 610 руб. |
||
| 3880 | 900 | 120 | 1050 | 86 |
7 371 руб. |
||
| 3880 | 670 | 120 | 775 | 86 |
5 766 руб. |
||
| 3880 | 670 | 120 | 775 | 86 |
5 840 руб. |
||
| 3880 | 450 | 120 | 525 | 86 |
3 981 руб. |
||
| 3880 | 450 | 120 | 525 | 86 |
4 054 руб. |
||
| 2980 | 1190 | 220 | 1488 | 85 |
9 223 руб. |
||
| 2980 | 1190 | 220 | 1475 | 85 |
9 163 руб. |
||
| 2980 | 1190 | 220 | 1488 | 85 |
9 223 руб. |
||
| 2980 | 1190 | 220 | 1475 | 85 |
9 163 руб. |
||
| 2620 | 120 | 1080 | 500 | 5РС 43-24 |
5 995 руб. |
||
| 2620 | 120 | 1080 | 500 | 5РС 43-24 |
5 995 руб. |
||
| 2410 | 120 | 1080 | 480 | 5РС 43-24 |
5 164 руб. |
||
| 2510 | 120 | 1080 | 500 | 5РС 43-24 |
5 562 руб. |
||
| 2510 | 120 | 1080 | 500 | 5РС 43-24 |
5 562 руб. |
||
| 3710 | 120 | 1080 | 700 | 5РС 43-24 |
7 681 руб. |
||
| 3710 | 120 | 1080 | 700 | 5РС 43-24 |
7 681 руб. |
| Название | Длина, мм | Ширина, мм | Высота, мм | Вес, кг | Номер стандарта | Цена | |
|---|---|---|---|---|---|---|---|
| 250 | 250 | 300 | 48 | 86 |
1 041 руб. |
||
| 1180 | 300 | 280 | 229 | 86 |
1 121 руб. |
||
| 780 | 600 | 580 | 480 | 86 |
2 358 руб. |
||
| 780 | 500 | 580 | 408 | 86 |
1 949 руб. |
||
| 780 | 400 | 580 | 315 | 86 |
1 525 руб. |
||
| 780 | 300 | 580 | 240 | 86 |
1 182 руб. |
||
| 2000 | 370 | 70 | 130 | 86 |
1 437 руб. |
||
| 1300 | 380 | 70 | 75 | 86 |
2 195 руб. |
||
| 6280 | 1490 | 220 | 2985 | 86 |
22 998 руб. |
||
| 6280 | 1490 | 220 | 2940 | 86 |
22 789 руб. |
||
| 6280 | 1190 | 220 | 2250 | 86 |
17 944 руб. |
||
| 6280 | 1190 | 220 | 2210 | 86 |
17 934 руб. |
||
| 6280 | 990 | 220 | 1855 | 86 |
14 940 руб. |
||
| 6280 | 990 | 220 | 1825 | 86 |
14 946 руб. |
||
| 6280 | 1490 | 220 | 3440 | 86 |
23 685 руб. |
||
| 6280 | 1490 | 220 | 3440 | 86 |
23 685 руб. |
||
| 6280 | 1490 | 220 | 3400 | 86 |
23 500 руб. |
||
| 6280 | 990 | 220 | 1855 | 86 |
13 159 руб. |
||
| 6280 | 990 | 220 | 1825 | 86 |
13 020 руб. |
||
| 6280 | 1190 | 220 | 2350 | 86 |
22 111 руб. |
||
| 5080 | 1190 | 220 | 1850 | 86 |
14 629 руб. |
||
| 2980 | 1190 | 220 | 910 | 86 |
7 273 руб. |
||
| 1600 | 1800 | 120 | 855 | 86 |
4 983 руб. |
||
| 1760 | 1590 | 140 | 985 | 86 |
5 610 руб. |
||
| 1760 | 1590 | 140 | 855 | 86 |
6 974 руб. |
||
| 1760 | 1590 | 140 | 985 | 86 |
5 610 руб. |
||
| 1600 | 1800 | 120 | 865 | 86 |
5 030 руб. |
||
| 1760 | 1190 | 140 | 730 | 86 |
4 230 руб. |
||
| 1760 | 1190 | 140 | 730 | 86 |
4 230 руб. |
||
| 5080 | 100 | 670 | 850 | 86 |
7 726 руб. |
||
| 2980 | 1190 | 220 | 1425 | 86 |
8 946 руб. |
||
| 2980 | 1190 | 220 | 1425 | 86 |
8 946 руб. |
||
| 2980 | 1190 | 220 | 1235 | 86 |
8 061 руб. |
||
| 2640 | 1190 | 220 | 1250 | 86 |
7 910 руб. |
||
| 2640 | 1190 | 220 | 1250 | 86 |
7 910 руб. |
||
| 2640 | 1190 | 220 | 1075 | 86 |
7 016 руб. |
||
| 6280 | 1490 | 220 | 2918 | 86 |
20 456 руб. |
||
| 6280 | 1490 | 220 | 2883 | 86 |
20 294 руб. |
||
| 6280 | 1490 | 220 | 2918 | 86 |
20 456 руб. |
||
| 6280 | 1490 | 220 | 2918 | 86 |
20 456 руб. |
||
| 6280 | 1490 | 220 | 2918 | 86 |
20 456 руб. |
||
| 6280 | 990 | 220 | 1825 | 86 |
11 718 руб. |
||
| 6280 | 990 | 220 | 1825 | 86 |
11 718 руб. |
||
| 5080 | 990 | 220 | 1515 | 86 |
9 397 руб. |
||
| 5080 | 990 | 220 | 1485 | 86 |
9 258 руб. |
||
| 3870 | 1520 | 220 | 2250 | 86 |
23 207 руб. |
||
| 3870 | 1380 | 220 | 1975 | 86 |
21 917 руб. |
||
| 3570 | 1520 | 220 | 2075 | 86 |
20 424 руб. |
||
| 3570 | 1380 | 220 | 1800 | 86 |
19 718 руб. |
||
| 6280 | 990 | 220 | 1855 | 86 |
12 464 руб. |
ТД "Еврастрой" предлагает купить Бетонные ограждения лоджий БОЛ 51-7 по выгодной цене. Наша компания осуществляет доставку продукции по всей территории России и странам СНГ.
В каталоге представлено около 170 тыс. позиций.
По наличию и ценам Мы можем проконсультировать Вас по телефону +7 (343) 300-90-87 или можете отправить запрос на почтовый ящик gbi@gbi22.ru.
Оплатить продукцию можно в рассрочку, для обсуждения вопросов оплаты так же можно обратиться к нашим менеджерам.
Продажа ЖБИ изделий производится с заводов в таких городах как:
Наши менеджеры помогут Вам подобрать оптимальное решения для ваших задач, сориентируют по наличию и ценам, расскажут про оптимальные варианты доставки и оплаты. Звоните +7 (343) 300-90-87
