В вашей корзине ещё нет товаров.
|
|||||||||
| Количество в квадратом метре, шт | 1,34 | ||||||||
| Нормы погрузки на авто | 133 | ||||||||
| Нормы погрузки ЖД | 460 | ||||||||
| Ссылка на стандарт | https://disk.yandex.ru/d/VgIxB8FiTBvLFw | ||||||||
| Расход стали, кг | 1,76 |
| Расход стали на 1м3 бетона, кг | 29,33 |
| Класс прочности | В15 |
| Марка бетона | М200 |
| Морозостойкость | F100-F200 |
| Водонепроницаемость | W4-W6 |
| Марка бетона по EN 206-1 | C12/15 |
| Геометрический объем | 0,075 |
| Объем бетона | 0,06 |
Парапетные плиты ПП 15-5 т предназначены для формирования парапетов. Эти изделия относятся к стандартным элементам сборных железобетонных конструкций. Они отличаются высокой прочностью и долговечностью, а их производство осуществляется в соответствии с жесткими стандартами ГОСТ 6786-80.
ПП – обозначение типа изделия (парапетная плита);
15 – длина в дециметрах;
5 – ширина в дециметрах;
т – тяжелый бетон.
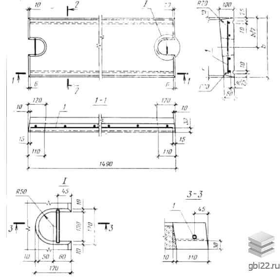
Длина: 1490 мм
Ширина: 500 мм
Высота: 100 мм
Вес: 150 кг
Марка бетона: М200
Парапетная плита представляет собой прямоугольный элемент с трапециевидным сечением и слегка скругленной внешней поверхностью, что придает эстетический вид фасаду здания. Плита имеет гладкую покатую поверхность для эффективного отвода дождевой воды, а также направляющую канавку, предотвращающую накопление влаги под плитой.
Маркировка железобетонных плит является важным этапом, позволяющим правильно сортировать изделия по видам и маркам. Знаки маркировки могут быть представлены в нескольких вариантах, согласно стандарту ГОСТ 6786-80:
Плиты ПП 15-5 т часто используются в качестве декоративно-архитектурного элемента на сельскохозяйственных и промышленных объектах, а также в жилом строительстве. В зависимости от условий эксплуатации, плиты могут изготавливаться из тяжелых бетонов или бетонов на пористых заполнителях плотностью не менее 1850 кг/м?.
Для эксплуатации в агрессивных условиях используются изделия из плотных бетонов марки прочности не менее М200, что обеспечивает возможность применения в зонах с высокой сейсмической активностью до 9 баллов по шкале Рихтера. Прочностные характеристики достигаются за счет установки внутреннего жесткого каркаса из стальной арматуры и проволоки, которые обрабатываются антикоррозионными составами для увеличения срока службы.
Из-за внушительных размеров и веса, транспортировка плит ПП 15-5 т осуществляется только с использованием специализированного транспорта. Плиты фиксируются стальной лентой или проволокой, а между ними укладываются доски толщиной не менее 20-30 мм. Хранение продукции осуществляется в штабелях с изолированными слоями, а отгрузка производится с использованием автопогрузчиков.
| Стандарт | ГОСТ |
| Номер стандарта | 6786-80 |
| Статус | отменен |
| Год выпущенного стандарта | 1982 |
| Название стандарта | Плиты парапетные железобетонные для производственных зданий. Технические условия. |
| Название | Длина, мм | Ширина, мм | Высота, мм | Вес, кг | Номер стандарта | Цена | |
|---|---|---|---|---|---|---|---|
| 490 | 400 | 150 | 50 | СТ 02-18 |
550 руб. |
||
| 740 | 300 | 150 | 60 | СТ 02-18 |
660 руб. |
||
| 490 | 300 | 150 | 40 | СТ 02-18 |
440 руб. |
||
| 740 | 300 | 150 | 60 | СТ 02-11/61 |
660 руб. |
||
| 490 | 300 | 150 | 40 | СТ 02-11/61 |
440 руб. |
||
| 1490 | 410 | 80 | 100 | ИИ 04-4 |
741 руб. |
||
| 1490 | 380 | 160 | 120 | ИИ 04-4 |
782 руб. |
||
| 1270 | 600 | 90 | 93 | ИИ 03-02 |
1 156 руб. |
||
| 1270 | 600 | 90 | 93 | ИИ 03-02 |
1 156 руб. |
||
| 1190 | 500 | 90 | 75 | ИИ 03-02 |
947 руб. |
||
| 1190 | 500 | 90 | 75 | ИИ 03-02 |
947 руб. |
||
| 1090 | 400 | 90 | 60 | ИИ 03-02 |
766 руб. |
||
| 1090 | 400 | 90 | 190 | ИИ 03-02 |
927 руб. |
||
| 1200 | 900 | 80 | 190 | ИИ 03-02 |
998 руб. |
||
| 1800 | 700 | 80 | 220 | ИИ 03-02 |
1 151 руб. |
||
| 2200 | 700 | 80 | 170 | ИИ 03-02 |
939 руб. |
||
| 1270 | 600 | 70 | 110 | ИИ 03-02 |
579 руб. |
||
| 1240 | 500 | 70 | 93 | ИИ 03-02 |
1 173 руб. |
||
| 1220 | 400 | 90 | 80 | ИИ 03-02 |
1 019 руб. |
||
| 500 | 180 | 45 | 8 | Б3.300.1-5.04 |
136 руб. |
||
| 1000 | 190 | 50 | 17 | Б3.300.1-5.04 |
289 руб. |
||
| 800 | 260 | 94 | 45 | Б3.300.1-5.04 |
833 руб. |
||
| 800 | 320 | 98 | 55 | Б3.300.1-5.04 |
1 007 руб. |
||
| 1780 | 500 | 160 | 170 | Б1.138-2 |
950 руб. |
||
| 1780 | 500 | 160 | 170 | Б1.138-2 |
950 руб. |
||
| 1780 | 400 | 160 | 140 | Б1.138-2 |
796 руб. |
||
| 1780 | 400 | 160 | 140 | Б1.138-2 |
796 руб. |
||
| 580 | 500 | 160 | 60 | Б1.138-2 |
848 руб. |
||
| 580 | 400 | 160 | 50 | Б1.138-2 |
708 руб. |
||
| 1780 | 500 | 160 | 180 | Б1.138-2 |
1 009 руб. |
||
| 1780 | 400 | 160 | 140 | Б1.138-2 |
804 руб. |
||
| 1480 | 500 | 160 | 150 | Б1.138-2 |
849 руб. |
||
| 1480 | 400 | 160 | 130 | Б1.138-2 |
739 руб. |
||
| 1180 | 500 | 160 | 120 | Б1.138-2 |
686 руб. |
||
| 1180 | 400 | 160 | 100 | Б1.138-2 |
579 руб. |
||
| 600 | 600 | 150 | 118 | АЭ 01-02 |
по запросу |
||
| 500 | 500 | 150 | 79 | АЭ 01-02 |
по запросу |
||
| 400 | 400 | 150 | 50 | АЭ 01-02 |
по запросу |
||
| 740 | 600 | 150 | 134 | АЭ 01-02 |
по запросу |
||
| 490 | 600 | 150 | 90 | АЭ 01-02 |
по запросу |
||
| 740 | 500 | 150 | 115 | АЭ 01-02 |
по запросу |
||
| 490 | 500 | 150 | 75 | АЭ 01-02 |
по запросу |
||
| 740 | 400 | 150 | 89 | АЭ 01-02 |
по запросу |
||
| 490 | 400 | 150 | 59 | АЭ 01-02 |
по запросу |
||
| 4000 | 500 | 900 | 2500 | 3.505.1-16 |
20 431 руб. |
||
| 5000 | 500 | 900 | 3300 | 3.505.1-16 |
26 189 руб. |
||
| 600 | 600 | 100 | 48 | 1.438-1 |
623 руб. |
||
| 500 | 500 | 100 | 40 | 1.438-1 |
516 руб. |
||
| 400 | 400 | 100 | 32 | 1.438-1 |
415 руб. |
||
| 600 | 600 | 100 | 48 | 1.438-1 |
623 руб. |
| Название | Длина, мм | Ширина, мм | Высота, мм | Вес, кг | Номер стандарта | Цена | |
|---|---|---|---|---|---|---|---|
| 990 | 600 | 100 | 120 | 6786-80 |
760 руб. |
||
| 990 | 600 | 100 | 98 | 6786-80 |
1 558 руб. |
||
| 990 | 500 | 100 | 100 | 6786-80 |
667 руб. |
||
| 990 | 500 | 100 | 87 | 6786-80 |
1 437 руб. |
||
| 990 | 400 | 100 | 80 | 6786-80 |
1 360 руб. |
||
| 990 | 400 | 100 | 66 | 6786-80 |
1 206 руб. |
||
| 1490 | 600 | 100 | 180 | 6786-80 |
1 038 руб. |
||
| 1490 | 600 | 100 | 147 | 6786-80 |
885 руб. |
||
| 1490 | 500 | 100 | 123 | 6786-80 |
774 руб. |
||
| 1490 | 400 | 100 | 120 | 6786-80 |
760 руб. |
||
| 1490 | 400 | 100 | 96 | 6786-80 |
1 536 руб. |
ТД "Еврастрой" предлагает купить Плиты парапетные ПП 15-5 т по выгодной цене. Наша компания осуществляет доставку продукции по всей территории России и странам СНГ.
В каталоге представлено около 170 тыс. позиций.
По наличию и ценам Мы можем проконсультировать Вас по телефону +7 (343) 300-90-87 или можете отправить запрос на почтовый ящик gbi@gbi22.ru.
Оплатить продукцию можно в рассрочку, для обсуждения вопросов оплаты так же можно обратиться к нашим менеджерам.
Продажа ЖБИ изделий производится с заводов в таких городах как:
Наши менеджеры помогут Вам подобрать оптимальное решения для ваших задач, сориентируют по наличию и ценам, расскажут про оптимальные варианты доставки и оплаты. Звоните +7 (343) 300-90-87
