В вашей корзине ещё нет товаров.
|
|||||||||
| Количество в квадратом метре, шт | 0,25 | ||||||||
| Нормы погрузки на авто | 14 | ||||||||
| Нормы погрузки ЖД | 48 | ||||||||
| Ссылка на стандарт | https://disk.yandex.ru/d/IVQ0lKRqpIHW-A | ||||||||
| Расход стали, кг | 18,92 |
| Расход стали на 1м3 бетона, кг | 33,79 |
| Класс прочности | В15 |
| Марка бетона | М200 |
| Морозостойкость | F100-F200 |
| Водонепроницаемость | W4-W6 |
| Марка бетона по EN 206-1 | C12/15 |
| Геометрический объем | 0,880 |
| Объем бетона | 0,56 |
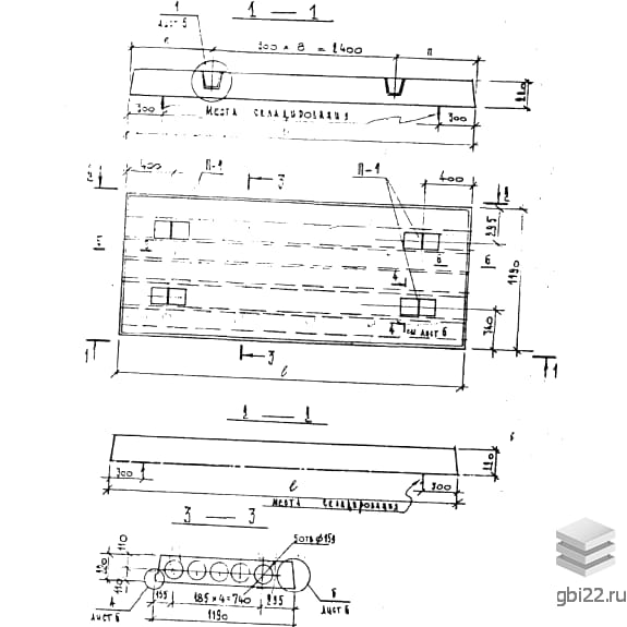
Многопустотная панель перекрытия НВ 34-12-12в – это железобетонная конструкция с продольными цилиндрическими полостями, повышающими звуко- и теплоизоляционные свойства. Изделие отличается высокой прочностью, устойчивостью к нагрузкам и простотой монтажа. Широко применяется в строительстве жилых, промышленных и коммерческих объектов.
НВ – плита перекрытия с высотой 220 мм.
34 – длина изделия составляет 34 дециметра (3,4 м).
12 – ширина равна 12 дециметрам (1,2 м).
12 – допустимая нагрузка 1250 кг/м?.
в – упрощенная конфигурация продольной грани.
Габариты и вес:
Технические параметры:
Конструкция обеспечивает:
Изготовление осуществляется согласно нормам Серии РС 5155-95 с использованием:
Готовая продукция проходит обязательные испытания на:
Плиты перекрытия:
| Стандарт | альбом |
| Номер стандарта | РС 5155-95 |
| Статус | не определен |
| Год выпущенного стандарта | 1995 |
| Название стандарта | Панели перекрытий рядовые шириной 1,2 и 1,8 м для пролетов 3,0-4,8м. |
| Название | Длина, мм | Ширина, мм | Высота, мм | Вес, кг | Номер стандарта | Цена | |
|---|---|---|---|---|---|---|---|
| 8980 | 891 | 220 | 2610 | 0-312 |
41 920 руб. |
||
| 5480 | 1190 | 220 | 2000 | 1.141-1 |
по запросу |
||
| 5480 | 1190 | 220 | 1960 | 1.141-1 |
по запросу |
||
| 2380 | 990 | 220 | 730 | 1.141-1 |
по запросу |
||
| 2780 | 990 | 220 | 850 | 1.141-1 |
по запросу |
||
| 2980 | 990 | 220 | 882 | 1.141-1 |
по запросу |
||
| 3580 | 990 | 220 | 1080 | 1.141-1 |
по запросу |
||
| 4180 | 990 | 220 | 1250 | 1.141-1 |
по запросу |
||
| 4780 | 990 | 220 | 1400 | 1.141-1 |
по запросу |
||
| 5080 | 990 | 220 | 1475 | 1.141-1 |
по запросу |
||
| 5980 | 990 | 220 | 1725 | 1.141-1 |
по запросу |
||
| 2380 | 1190 | 220 | 800 | 1.141-1 |
по запросу |
||
| 2680 | 1190 | 220 | 900 | 1.141-1 |
по запросу |
||
| 2980 | 1190 | 220 | 1200 | 1.141-1 |
по запросу |
||
| 3180 | 1190 | 220 | 1280 | 1.141-1 |
по запросу |
||
| 3280 | 1190 | 220 | 1320 | 1.141-1 |
по запросу |
||
| 3380 | 1190 | 220 | 1360 | 1.141-1 |
по запросу |
||
| 3480 | 1190 | 220 | 1400 | 1.141-1 |
по запросу |
||
| 3580 | 1190 | 220 | 1440 | 1.141-1 |
по запросу |
||
| 3680 | 1190 | 220 | 1480 | 1.141-1 |
по запросу |
||
| 3780 | 1190 | 220 | 1520 | 1.141-1 |
по запросу |
||
| 3880 | 1190 | 220 | 1560 | 1.141-1 |
по запросу |
||
| 3980 | 1190 | 220 | 1600 | 1.141-1 |
по запросу |
||
| 4080 | 1190 | 220 | 1455 | 1.141-1 |
по запросу |
||
| 4180 | 1190 | 220 | 1600 | 1.141-1 |
по запросу |
||
| 4480 | 1190 | 220 | 1800 | 1.141-1 |
по запросу |
||
| 4580 | 1190 | 220 | 1840 | 1.141-1 |
по запросу |
||
| 4680 | 1190 | 220 | 1880 | 1.141-1 |
по запросу |
||
| 4780 | 1190 | 220 | 1920 | 1.141-1 |
по запросу |
||
| 5080 | 1190 | 220 | 2040 | 1.141-1 |
по запросу |
||
| 5180 | 1190 | 220 | 2080 | 1.141-1 |
по запросу |
||
| 5280 | 1190 | 220 | 2120 | 1.141-1 |
по запросу |
||
| 5380 | 1190 | 220 | 1900 | 1.141-1 |
по запросу |
||
| 5480 | 1190 | 220 | 1850 | 1.141-1 |
по запросу |
||
| 5680 | 1190 | 220 | 2050 | 1.141-1 |
по запросу |
||
| 5980 | 1190 | 220 | 2150 | 1.141-1 |
по запросу |
||
| 5980 | 1190 | 220 | 2150 | 1.141-1 |
по запросу |
||
| 6280 | 1190 | 220 | 2250 | 1.141-1 |
по запросу |
||
| 8980 | 1490 | 260 | 4580 | 1.241-7 |
по запросу |
||
| 8980 | 1490 | 260 | 4580 | 1.241-7 |
по запросу |
||
| 8980 | 1490 | 260 | 4580 | 1.241-7 |
по запросу |
||
| 8980 | 1490 | 260 | 4580 | 1.241-7 |
по запросу |
||
| 8980 | 1490 | 260 | 4580 | 1.241-7 |
по запросу |
||
| 8980 | 1490 | 260 | 4580 | 1.241-7 |
по запросу |
||
| 8980 | 1490 | 260 | 4580 | 1.241-7 |
по запросу |
||
| 8980 | 1490 | 260 | 4580 | 1.241-7 |
по запросу |
||
| 8980 | 1490 | 260 | 4580 | 1.241-7 |
по запросу |
||
| 8980 | 1490 | 240 | 4390 | 1.241-7 |
по запросу |
||
| 8980 | 1490 | 240 | 4390 | 1.241-7 |
по запросу |
||
| 8980 | 1490 | 240 | 4390 | 1.241-7 |
по запросу |
| Название | Длина, мм | Ширина, мм | Высота, мм | Вес, кг | Номер стандарта | Цена | |
|---|---|---|---|---|---|---|---|
| 4560 | 1790 | 220 | 2500 | РС 5155-95 |
17 622 руб. |
||
| 4560 | 1790 | 220 | 2500 | РС 5155-95 |
15 456 руб. |
||
| 4560 | 1190 | 220 | 1900 | РС 5155-95 |
13 111 руб. |
||
| 4560 | 1190 | 220 | 1900 | РС 5155-95 |
11 487 руб. |
||
| 3960 | 1790 | 220 | 2200 | РС 5155-95 |
14 655 руб. |
||
| 3960 | 1790 | 220 | 2200 | РС 5155-95 |
12 909 руб. |
||
| 3960 | 1190 | 220 | 1600 | РС 5155-95 |
10 372 руб. |
||
| 3960 | 1190 | 220 | 1600 | РС 5155-95 |
9 325 руб. |
||
| 3360 | 1790 | 220 | 1800 | РС 5155-95 |
11 474 руб. |
||
| 3360 | 1790 | 220 | 1800 | РС 5155-95 |
10 463 руб. |
||
| 3360 | 1190 | 220 | 1400 | РС 5155-95 |
8 049 руб. |
||
| 2760 | 1790 | 220 | 1500 | РС 5155-95 |
8 948 руб. |
||
| 2760 | 1790 | 220 | 1500 | РС 5155-95 |
8 603 руб. |
||
| 2760 | 1190 | 220 | 1100 | РС 5155-95 |
6 472 руб. |
||
| 2760 | 1190 | 220 | 1100 | РС 5155-95 |
6 126 руб. |
ТД "Еврастрой" предлагает купить Плиты перекрытия НВ 34-12-12 в по выгодной цене. Наша компания осуществляет доставку продукции по всей территории России и странам СНГ.
В каталоге представлено около 170 тыс. позиций.
По наличию и ценам Мы можем проконсультировать Вас по телефону +7 (343) 300-90-87 или можете отправить запрос на почтовый ящик gbi@gbi22.ru.
Оплатить продукцию можно в рассрочку, для обсуждения вопросов оплаты так же можно обратиться к нашим менеджерам.
Продажа ЖБИ изделий производится с заводов в таких городах как:
Наши менеджеры помогут Вам подобрать оптимальное решения для ваших задач, сориентируют по наличию и ценам, расскажут про оптимальные варианты доставки и оплаты. Звоните +7 (343) 300-90-87
