В вашей корзине ещё нет товаров.
| Цена за 1м3, руб | 19 675 с НДС* |
|
|||||||||
| Количество в квадратом метре, шт | 0,37 | ||||||||
| Нормы погрузки на авто | 2 | ||||||||
| Нормы погрузки ЖД | 6 | ||||||||
| Ссылка на стандарт | https://disk.yandex.ru/d/MRB1EsrNal5H2A | ||||||||
| Расход стали, кг | 188,62 |
| Расход стали на 1м3 бетона, кг | 70,07 |
| Класс прочности | В15 |
| Марка бетона | М200 |
| Морозостойкость | F100-F200 |
| Водонепроницаемость | W4-W6 |
| Марка бетона по EN 206-1 | C12/15 |
| Геометрический объем | 7,770 |
| Объем бетона | 2,69 |
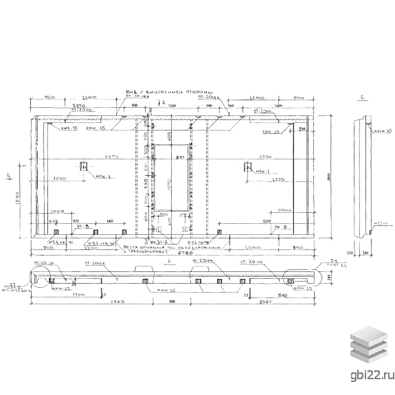
Обозначение 1ЛН 68-30 ЧС (Альбом РМ 2919-03) содержит ключевые параметры конструкции:
Конструкция представляет собой прямоугольный элемент с выступами на торцах для надежного соединения в каркасе. Применяется в строительстве жилых блок-секций типа П44Т.
Трехслойная структура включает:
Перевозка осуществляется вертикально в кассетах с деревянными прокладками для защиты поверхности. Складирование требует устойчивой опоры во избежание опрокидывания.
Производство регламентировано:
| Стандарт | альбом |
| Номер стандарта | РМ 2919-03 |
| Статус | не определен |
| Год выпущенного стандарта | 2004 |
| Название стандарта | Панели наружных стен трехслойные типового этажа. Для жилых блок-секций П44Т (производства Краснопресненского завода ЖБК). |
| Название | Длина, мм | Ширина, мм | Высота, мм | Вес, кг | Номер стандарта | Цена | |
|---|---|---|---|---|---|---|---|
| 5990 | 350 | 2900 | 5900 | 97.87 ИЖ 1.1-1 |
37 425 руб. |
||
| 4490 | 350 | 2900 | 5370 | 97.87 ИЖ 1.1-1 |
28 151 руб. |
||
| 2990 | 350 | 2900 | 2780 | 97.87 ИЖ 1.1-1 |
14 786 руб. |
||
| 6780 | 400 | 2950 | 7150 | РМ 2919-04 |
50 481 руб. |
||
| 6850 | 400 | 1260 | 3710 | РМ 2919-04 |
25 917 руб. |
||
| 6485 | 400 | 2950 | 6710 | РМ 2919-04 |
48 205 руб. |
||
| 6480 | 400 | 1310 | 3230 | РМ 2919-04 |
23 847 руб. |
||
| 6485 | 400 | 1260 | 3590 | РМ 2919-04 |
24 345 руб. |
||
| 6180 | 400 | 1310 | 2450 | РМ 2919-04 |
19 107 руб. |
||
| 2650 | 400 | 700 | 820 | РМ 2919-04 |
6 168 руб. |
||
| 2650 | 400 | 700 | 840 | РМ 2919-04 |
5 444 руб. |
||
| 2650 | 400 | 700 | 840 | РМ 2919-04 |
5 444 руб. |
||
| 2235 | 300 | 700 | 640 | РМ 2919-04 |
5 423 руб. |
||
| 980 | 280 | 3260 | 1270 | РМ 2919-04 |
9 633 руб. |
||
| 980 | 280 | 3260 | 1270 | РМ 2919-04 |
9 633 руб. |
||
| 2720 | 230 | 1025 | 440 | РМ 2919-03 |
19 321 руб. |
||
| 2720 | 230 | 1025 | 440 | РМ 2919-03 |
19 321 руб. |
||
| 3590 | 380 | 2865 | 3920 | РМ 2919-03 |
27 741 руб. |
||
| 3490 | 380 | 2700 | 3510 | РМ 2919-03 |
24 880 руб. |
||
| 3490 | 380 | 2700 | 3510 | РМ 2919-03 |
24 880 руб. |
||
| 1780 | 380 | 2865 | 2040 | РМ 2919-03 |
14 387 руб. |
||
| 1780 | 380 | 2865 | 2040 | РМ 2919-03 |
14 387 руб. |
||
| 5885 | 280 | 2865 | 5660 | РМ 2919-03 |
41 136 руб. |
||
| 5885 | 280 | 2865 | 5660 | РМ 2919-03 |
41 136 руб. |
||
| 4680 | 280 | 2865 | 4480 | РМ 2919-03 |
49 593 руб. |
||
| 4680 | 280 | 2865 | 4480 | РМ 2919-03 |
49 593 руб. |
||
| 4285 | 280 | 2865 | 4450 | РМ 2919-03 |
45 998 руб. |
||
| 4285 | 280 | 2865 | 4450 | РМ 2919-03 |
45 998 руб. |
||
| 6780 | 400 | 2865 | 6890 | РМ 2919-03 |
53 776 руб. |
||
| 6485 | 400 | 2865 | 6360 | РМ 2919-03 |
50 798 руб. |
||
| 6485 | 400 | 2865 | 6320 | РМ 2919-03 |
50 443 руб. |
||
| 3590 | 450 | 2865 | 6936 | РМ 2919-02 |
41 593 руб. |
||
| 3490 | 450 | 2710 | 5664 | РМ 2919-02 |
36 112 руб. |
||
| 3485 | 450 | 2710 | 6912 | РМ 2919-02 |
42 036 руб. |
||
| 3490 | 450 | 2710 | 6504 | РМ 2919-02 |
39 424 руб. |
||
| 3490 | 450 | 2710 | 6504 | РМ 2919-02 |
39 424 руб. |
||
| 800 | 350 | 2150 | 1056 | РМ 2919-02 |
7 333 руб. |
||
| 6285 | 310 | 2865 | 10968 | РМ 2919-02 |
125 786 руб. |
||
| 6285 | 310 | 2865 | 10968 | РМ 2919-02 |
108 507 руб. |
||
| 5885 | 310 | 2865 | 10536 | РМ 2919-02 |
64 596 руб. |
||
| 5885 | 310 | 2865 | 10536 | РМ 2919-02 |
64 596 руб. |
||
| 5695 | 310 | 2865 | 9888 | РМ 2919-02 |
115 013 руб. |
||
| 5695 | 310 | 2865 | 9888 | РМ 2919-02 |
97 734 руб. |
||
| 4595 | 350 | 2865 | 7248 | РМ 2919-02 |
44 057 руб. |
||
| 3485 | 350 | 2700 | 4800 | РМ 2919-02 |
56 838 руб. |
||
| 2535 | 350 | 705 | 1128 | РМ 2919-02 |
7 778 руб. |
||
| 6780 | 350 | 2865 | 12984 | РМ 2919-02 |
79 236 руб. |
||
| 3195 | 400 | 3030 | 4630 | 7РС 41133 |
40 265 руб. |
||
| 3195 | 400 | 3030 | 4630 | 7РС 41133 |
40 265 руб. |
||
| 3570 | 400 | 3280 | 5750 | 7РС 41133 |
46 842 руб. |
| Название | Длина, мм | Ширина, мм | Высота, мм | Вес, кг | Номер стандарта | Цена | |
|---|---|---|---|---|---|---|---|
| 2720 | 230 | 1025 | 440 | РМ 2919-03 |
19 321 руб. |
||
| 2720 | 230 | 1025 | 440 | РМ 2919-03 |
19 321 руб. |
||
| 3590 | 380 | 2865 | 3920 | РМ 2919-03 |
27 741 руб. |
||
| 3490 | 380 | 2700 | 3510 | РМ 2919-03 |
24 880 руб. |
||
| 3490 | 380 | 2700 | 3510 | РМ 2919-03 |
24 880 руб. |
||
| 1780 | 380 | 2865 | 2040 | РМ 2919-03 |
14 387 руб. |
||
| 1780 | 380 | 2865 | 2040 | РМ 2919-03 |
14 387 руб. |
||
| 5885 | 280 | 2865 | 5660 | РМ 2919-03 |
41 136 руб. |
||
| 5885 | 280 | 2865 | 5660 | РМ 2919-03 |
41 136 руб. |
||
| 4680 | 280 | 2865 | 4480 | РМ 2919-03 |
49 593 руб. |
||
| 4680 | 280 | 2865 | 4480 | РМ 2919-03 |
49 593 руб. |
||
| 4285 | 280 | 2865 | 4450 | РМ 2919-03 |
45 998 руб. |
||
| 4285 | 280 | 2865 | 4450 | РМ 2919-03 |
45 998 руб. |
||
| 6780 | 400 | 2865 | 6890 | РМ 2919-03 |
53 776 руб. |
||
| 6485 | 400 | 2865 | 6360 | РМ 2919-03 |
50 798 руб. |
||
| 6485 | 400 | 2865 | 6320 | РМ 2919-03 |
50 443 руб. |
ТД "Еврастрой" предлагает купить Панели наружных стен трехслойные 1ЛН 68-30 чс по выгодной цене. Наша компания осуществляет доставку продукции по всей территории России и странам СНГ.
В каталоге представлено около 170 тыс. позиций.
По наличию и ценам Мы можем проконсультировать Вас по телефону +7 (343) 300-90-87 или можете отправить запрос на почтовый ящик gbi@gbi22.ru.
Оплатить продукцию можно в рассрочку, для обсуждения вопросов оплаты так же можно обратиться к нашим менеджерам.
Продажа ЖБИ изделий производится с заводов в таких городах как:
Наши менеджеры помогут Вам подобрать оптимальное решения для ваших задач, сориентируют по наличию и ценам, расскажут про оптимальные варианты доставки и оплаты. Звоните +7 (343) 300-90-87
