В вашей корзине ещё нет товаров.
| Цена за 1м3, руб | 17 803 с НДС* |
|
|||||||||
| Количество в квадратом метре, шт | 0,42 | ||||||||
| Нормы погрузки на авто | 2 | ||||||||
| Нормы погрузки ЖД | 7 | ||||||||
| Ссылка на стандарт | https://disk.yandex.ru/d/Lsi_aGgmK5vsrw | ||||||||
| Расход стали, кг | 158,43 |
| Расход стали на 1м3 бетона, кг | 53,81 |
| Класс прочности | В15 |
| Марка бетона | М200 |
| Морозостойкость | F100-F200 |
| Водонепроницаемость | W4-W6 |
| Марка бетона по EN 206-1 | C12/15 |
| Геометрический объем | 5,592 |
| Объем бетона | 2,94 |
Расшифровка маркировки:
Изменение маркировки запрещено.
Конструктивные особенности:
Трехслойные панели прямоугольной формы с отверстиями под оконные и дверные проемы. На верхних гранях расположены гребни для надежного соединения с каркасом, обеспечивающие защиту от атмосферных осадков и предотвращающие проникновение влаги в утеплитель.
Применение:
Используются в жилищном и общественном строительстве для возведения фасадов и межкомнатных перегородок. Входят в домостроительную серию П3м.
Теплотехнические свойства:
Высокая энергоэффективность, соответствует требованиям СНиП II-3-79 и СНиП 2.03.01-84.
Материалы:
Армирование:
Сварные каркасы из стали класса AIII (ГОСТ 5781-82) и проволоки BI (ГОСТ 6727-80). Закладные детали – прокат Ст3кп2 (ГОСТ 380-88).
Отделка:
Лицевые поверхности соответствуют категории А6. Допускается окраска фасадов масляными составами.
Перевозка на панелевозах с фиксацией. Хранение в вертикальных кассетах с деревянными подкладками. Подъем – самобалансирующими траверсами.
Подробности производства – в Альбоме 3РС 17-15.
| Стандарт | альбом |
| Номер стандарта | 3РС 17-15 |
| Статус | не определен |
| Год выпущенного стандарта | 1999 |
| Название стандарта | Панели наружных стен цокольные трехслойные с высокими теплотехническими характеристиками. |
| Название | Длина, мм | Ширина, мм | Высота, мм | Вес, кг | Номер стандарта | Цена | |
|---|---|---|---|---|---|---|---|
| 880 | 250 | 2980 | 850 | 22-289 |
12 433 руб. |
||
| 880 | 200 | 2980 | 680 | 22-289 |
10 596 руб. |
||
| 5980 | 200 | 880 | 4200 | 22-289 |
53 575 руб. |
||
| 5980 | 400 | 880 | 3400 | 22-289 |
45 530 руб. |
||
| 6240 | 250 | 580 | 1800 | 22-289 |
27 120 руб. |
||
| 5980 | 250 | 880 | 1700 | 22-289 |
24 075 руб. |
||
| 6190 | 200 | 880 | 1400 | 22-289 |
20 887 руб. |
||
| 5980 | 200 | 880 | 1400 | 22-289 |
20 833 руб. |
||
| 5980 | 200 | 580 | 2900 | 22-289 |
40 454 руб. |
||
| 5980 | 400 | 580 | 2200 | 22-289 |
31 143 руб. |
||
| 6240 | 250 | 580 | 1200 | 22-289 |
18 944 руб. |
||
| 5980 | 250 | 580 | 1100 | 22-289 |
17 863 руб. |
||
| 6190 | 200 | 580 | 950 | 22-289 |
16 133 руб. |
||
| 5980 | 200 | 580 | 980 | 22-289 |
16 430 руб. |
||
| 6240 | 250 | 2100 | 2700 | 22-289 |
36 983 руб. |
||
| 5980 | 250 | 2100 | 2700 | 22-289 |
36 601 руб. |
||
| 6190 | 200 | 2100 | 2200 | 22-289 |
31 607 руб. |
||
| 5980 | 200 | 2100 | 2100 | 22-289 |
29 844 руб. |
||
| 5980 | 200 | 1780 | 8600 | 22-289 |
102 708 руб. |
||
| 5980 | 300 | 1780 | 6800 | 22-289 |
82 955 руб. |
||
| 5980 | 250 | 1800 | 2000 | 22-289 |
28 190 руб. |
||
| 6240 | 250 | 1780 | 3500 | 22-289 |
47 320 руб. |
||
| 5980 | 250 | 1780 | 3400 | 22-289 |
45 857 руб. |
||
| 5980 | 200 | 1800 | 1600 | 22-289 |
23 867 руб. |
||
| 6190 | 200 | 1780 | 2900 | 22-289 |
40 672 руб. |
||
| 5980 | 200 | 1780 | 2800 | 22-289 |
39 100 руб. |
||
| 5980 | 250 | 1350 | 1800 | 22-289 |
25 374 руб. |
||
| 5980 | 200 | 1350 | 1500 | 22-289 |
22 132 руб. |
||
| 5980 | 200 | 1180 | 5700 | 22-289 |
71 832 руб. |
||
| 5980 | 400 | 1180 | 4600 | 22-289 |
58 007 руб. |
||
| 6240 | 250 | 1180 | 2400 | 22-289 |
32 977 руб. |
||
| 5980 | 250 | 1180 | 2300 | 22-289 |
31 787 руб. |
||
| 6190 | 200 | 1180 | 1900 | 22-289 |
27 355 руб. |
||
| 5980 | 200 | 1180 | 1900 | 22-289 |
27 246 руб. |
||
| 580 | 250 | 2980 | 560 | 22-289 |
8 999 руб. |
||
| 580 | 200 | 2980 | 450 | 22-289 |
7 646 руб. |
||
| 580 | 250 | 1180 | 210 | 22-289 |
4 889 руб. |
||
| 580 | 200 | 1180 | 170 | 22-289 |
4 375 руб. |
||
| 2980 | 250 | 880 | 850 | 22-289 |
12 078 руб. |
||
| 2980 | 200 | 880 | 680 | 22-289 |
10 241 руб. |
||
| 2980 | 250 | 580 | 560 | 22-289 |
8 726 руб. |
||
| 2980 | 200 | 580 | 450 | 22-289 |
7 537 руб. |
||
| 2980 | 250 | 1780 | 1700 | 22-289 |
22 574 руб. |
||
| 2980 | 200 | 1780 | 1400 | 22-289 |
19 332 руб. |
||
| 2980 | 250 | 1500 | 1100 | 22-289 |
16 035 руб. |
||
| 2980 | 200 | 1500 | 880 | 22-289 |
13 439 руб. |
||
| 2980 | 250 | 1180 | 1200 | 22-289 |
16 379 руб. |
||
| 2980 | 200 | 1180 | 940 | 22-289 |
13 569 руб. |
||
| 2980 | 250 | 1000 | 790 | 22-289 |
11 976 руб. |
||
| 2980 | 200 | 1000 | 630 | 22-289 |
10 247 руб. |
| Название | Длина, мм | Ширина, мм | Высота, мм | Вес, кг | Номер стандарта | Цена | |
|---|---|---|---|---|---|---|---|
| 2400 | 325 | 2370 | 2700 | 3РС 17-15 |
18 536 руб. |
||
| 2400 | 325 | 2370 | 2710 | 3РС 17-15 |
18 627 руб. |
||
| 2400 | 325 | 2370 | 2710 | 3РС 17-15 |
18 627 руб. |
||
| 6330 | 325 | 2370 | 5660 | 3РС 17-15 |
42 435 руб. |
||
| 6330 | 325 | 2370 | 5660 | 3РС 17-15 |
42 260 руб. |
||
| 6330 | 325 | 2370 | 6070 | 3РС 17-15 |
43 771 руб. |
||
| 6330 | 325 | 2370 | 5520 | 3РС 17-15 |
41 224 руб. |
||
| 6920 | 325 | 2370 | 6210 | 3РС 17-15 |
46 636 руб. |
||
| 3030 | 325 | 2370 | 2420 | 3РС 17-15 |
12 458 руб. |
||
| 3030 | 325 | 2370 | 2210 | 3РС 17-15 |
18 733 руб. |
||
| 6180 | 325 | 2370 | 6270 | 3РС 17-15 |
44 759 руб. |
||
| 5260 | 325 | 2370 | 5200 | 3РС 17-15 |
37 818 руб. |
||
| 6740 | 325 | 2370 | 6230 | 3РС 17-15 |
46 675 руб. |
||
| 7260 | 325 | 2370 | 7360 | 3РС 17-15 |
52 413 руб. |
||
| 5260 | 325 | 2370 | 5300 | 3РС 17-15 |
37 626 руб. |
||
| 2980 | 325 | 2370 | 3000 | 3РС 17-15 |
21 360 руб. |
||
| 2980 | 325 | 2370 | 3000 | 3РС 17-15 |
21 360 руб. |
||
| 6980 | 325 | 2370 | 6780 | 3РС 17-15 |
50 011 руб. |
||
| 6980 | 325 | 2370 | 6780 | 3РС 17-15 |
50 210 руб. |
||
| 6980 | 325 | 2370 | 6780 | 3РС 17-15 |
50 121 руб. |
||
| 6980 | 325 | 2370 | 6630 | 3РС 17-15 |
48 763 руб. |
||
| 6980 | 325 | 2370 | 6680 | 3РС 17-15 |
48 929 руб. |
||
| 6980 | 325 | 2370 | 6790 | 3РС 17-15 |
50 081 руб. |
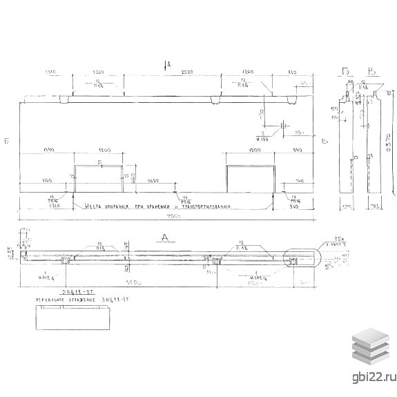
ТД "Еврастрой" предлагает купить Панели стеновые 3НЦ 12-1 т по выгодной цене. Наша компания осуществляет доставку продукции по всей территории России и странам СНГ.
В каталоге представлено около 170 тыс. позиций.
По наличию и ценам Мы можем проконсультировать Вас по телефону +7 (343) 300-90-87 или можете отправить запрос на почтовый ящик gbi@gbi22.ru.
Оплатить продукцию можно в рассрочку, для обсуждения вопросов оплаты так же можно обратиться к нашим менеджерам.
Продажа ЖБИ изделий производится с заводов в таких городах как:
Наши менеджеры помогут Вам подобрать оптимальное решения для ваших задач, сориентируют по наличию и ценам, расскажут про оптимальные варианты доставки и оплаты. Звоните +7 (343) 300-90-87
