Производство, продажа и
поставка ЖБИ по России и СНГ
Навигация
Код товара:
51 426 руб.
цена с НДС*
Цена за 1м3, руб
18 366 с НДС*

альбом 3РС 41-28

Краткие характеристики
Длина, мм
6330
Ширина, мм
375
Высота, мм
2860
Вес, кг
7000

Все характеристики
Длина, мм
6330
Ширина, мм
375
Высота, мм
2860
Вес, кг
7000
Количество в квадратом метре, шт
0,42
Нормы погрузки на авто
2
Нормы погрузки ЖД
9
Ссылка на стандарт
https://disk.yandex.ru/d/QpCCUUSGps2JHQ
Расход стали, кг
164,37
Расход стали на 1м3 бетона, кг
58,70
Класс прочности
В15
Марка бетона
М200
Морозостойкость
F100-F200
Водонепроницаемость
W4-W6
Марка бетона по EN 206-1
C12/15
Геометрический объем
6,789
Объем бетона
2,80

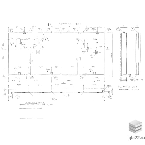
Трёхслойные фризовые панели для наружных стен 6НФ 7-1

Расшифровка маркировки

Маркировка 6НФ 7-1 (Альбом 3РС 41-28) содержит ключевые параметры изделия:

  • 6НФ — наружная стеновая фризовая панель трёхслойной конструкции;
  • 7 — типоразмер изделия;
  • 1 — модификация с дополнительными конструктивными особенностями.

Основные характеристики

Железобетонные панели прямоугольной формы предназначены для быстрого монтажа благодаря системе выступов и углублений на торцах. Конструкция обеспечивает надёжное соединение без использования цементного раствора.

Применение

Используются в строительстве жилых зданий. Многослойная структура с минераловатным утеплителем обеспечивает высокую теплоизоляцию, снижая затраты на отопление.

Технические параметры

  • Длина: 6330 мм
  • Ширина: 375 мм
  • Высота: 2860 мм
  • Вес: 7000 кг
  • Марка бетона: М200

Производство и материалы

Изготовление регламентировано Альбомом 3РС 41-28:

  • Наружный слой — тяжёлый мелкозернистый бетон (фракция щебня 3-10 мм, плотность 2300 кг/м?, прочность В15, морозостойкость F50);
  • Внутренний слой — бетон класса В15 с минераловатными плитами М125;
  • Арматура — сталь классов AII, AIII (ГОСТ 5781-82) и проволока Вр-1 (ГОСТ 6727-80).

Транспортировка и хранение

Перевозка осуществляется на специализированном транспорте, хранение — вертикально в кассетах с деревянными подкладками. Обязательна защита от опрокидывания.

Стандарт
альбом
Номер стандарта
3РС 41-28
Статус
не определен
Год выпущенного стандарта
1999
Название стандарта
Панели наружных стен фризовые трехслойные с высокими теплотехническими характеристиками.
Название Длина, ммШирина, ммВысота, ммВес, кгНомер стандарта Цена
930325286011003РС 41-28
8 936 руб.
930325286011003РС 41-28
8 936 руб.
6330375286078303РС 41-28
55 279 руб.
6330375286070003РС 41-28
51 426 руб.
6330375286078303РС 41-28
55 279 руб.
5920325278061303РС 41-28
46 308 руб.
7540325286082903РС 41-28
61 026 руб.
7540325286082903РС 41-28
61 026 руб.
7540325286082203РС 41-28
60 568 руб.
7540325286082203РС 41-28
60 568 руб.
Полный каталог
Название Длина, ммШирина, ммВысота, ммВес, кгНомер стандарта Цена
930325286011003РС 41-28
8 936 руб.
930325286011003РС 41-28
8 936 руб.
6330375286078303РС 41-28
55 279 руб.
6330375286070003РС 41-28
51 426 руб.
6330375286078303РС 41-28
55 279 руб.
5920325278061303РС 41-28
46 308 руб.
7540325286082903РС 41-28
61 026 руб.
7540325286082903РС 41-28
61 026 руб.
7540325286082203РС 41-28
60 568 руб.
7540325286082203РС 41-28
60 568 руб.

ТД "Еврастрой" предлагает купить Панели стеновые 6НФ 7-1 по выгодной цене. Наша компания осуществляет доставку продукции по всей территории России и странам СНГ.

В каталоге представлено около 170 тыс. позиций.

По наличию и ценам Мы можем проконсультировать Вас по телефону +7 (343) 300-90-87 или можете отправить запрос на почтовый ящик gbi@gbi22.ru.

Оплатить продукцию можно в рассрочку, для обсуждения вопросов оплаты так же можно обратиться к нашим менеджерам.

Продажа ЖБИ изделий производится с заводов в таких городах как:

  • Екатеринбург
  • Тюмень
  • Красноярск
  • Новосибирск
  • Иркутск
  • Ростов-на-дону
  • Нижний Новгород
  • Казань
  • Москва

Наши менеджеры помогут Вам подобрать оптимальное решения для ваших задач, сориентируют по наличию и ценам, расскажут про оптимальные варианты доставки и оплаты. Звоните +7 (343) 300-90-87

51 426 руб.
цена с НДС*
Наличие: нет
шт.
Перейти в корзину

Оформить заказ
Рассрочка
Рассказать друзьям: