В вашей корзине ещё нет товаров.
| Цена за 1м3, руб | 22 237 с НДС* |
|
|||||||||
| Количество в квадратом метре, шт | 0,07 | ||||||||
| Нормы погрузки на авто | СПЕЦАВТО | ||||||||
| Нормы погрузки ЖД | СПЕЦВАГОН | ||||||||
| Ссылка на стандарт | https://disk.yandex.ru/d/bU_sEM60zidxZQ | ||||||||
| Расход стали, кг | 151,6 |
| Расход стали на 1м3 бетона, кг | 87,13 |
| Класс прочности | В40 |
| Марка бетона | М500 |
| Морозостойкость | F300-F600 |
| Водонепроницаемость | W14-W16 |
| Марка бетона по EN 206-1 | C32/40 |
| Геометрический объем | 6,030 |
| Объем бетона | 1,74 |
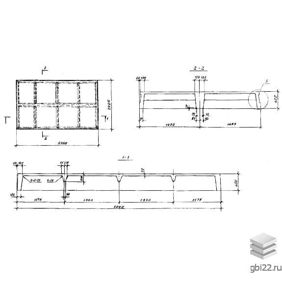
Ребристая плита 1П 2-4 АтVIт (ГОСТ 27215-87) – это прочный железобетонный элемент с П-образным профилем. Основное назначение – равномерное распределение нагрузки между этажами на несущие конструкции. Это сокращает расход стройматериалов и повышает устойчивость здания.
Шифр 1П 2-4 АтVIт (ГОСТ 27215-87) расшифровывается следующим образом:
Маркировка наносится на торец или продольную грань изделия.
Плиты используются в многоэтажном строительстве при шаге опор до 6 м. Ограничения:
Изготовление включает:
Контрольные испытания проверяют:
Поставка сопровождается полным пакетом документов, подтверждающих соответствие ГОСТ 27215-87.
| Стандарт | ГОСТ |
| Номер стандарта | 27215-87 |
| Статус | заменен ГОСТ 27215-2013 |
| Год выпущенного стандарта | 1988 |
| Название стандарта | Плиты перекрытий железобетонные ребристые высотой 400 мм для производственных зданий промышленных предприятий. Технические условия. |
| Название | Длина, мм | Ширина, мм | Высота, мм | Вес, кг | Номер стандарта | Цена | |
|---|---|---|---|---|---|---|---|
| 5970 | 2980 | 300 | 1750 | 1.465.1-21.94 |
18 941 руб. |
||
| 5970 | 2980 | 300 | 1750 | 1.465.1-21.94 |
17 190 руб. |
||
| 5970 | 2980 | 300 | 1750 | 1.465.1-21.94 |
16 706 руб. |
||
| 5970 | 2980 | 300 | 1750 | 1.465.1-21.94 |
19 529 руб. |
||
| 5970 | 2980 | 300 | 1750 | 1.465.1-21.94 |
18 549 руб. |
||
| 5970 | 2980 | 300 | 1750 | 1.465.1-21.94 |
17 120 руб. |
||
| 5970 | 2980 | 300 | 1750 | 1.465.1-21.94 |
15 726 руб. |
||
| 5970 | 2980 | 300 | 2460 | 1.465.1-21.94 |
21 377 руб. |
||
| 5970 | 2980 | 300 | 2460 | 1.465.1-21.94 |
20 133 руб. |
||
| 5970 | 2980 | 300 | 2460 | 1.465.1-21.94 |
18 958 руб. |
||
| 5970 | 2980 | 300 | 2460 | 1.465.1-21.94 |
22 920 руб. |
||
| 5970 | 2980 | 300 | 2460 | 1.465.1-21.94 |
20 864 руб. |
||
| 5970 | 2980 | 300 | 2460 | 1.465.1-21.94 |
19 344 руб. |
||
| 5970 | 2980 | 300 | 2460 | 1.465.1-21.94 |
18 244 руб. |
||
| 5970 | 2980 | 300 | 2460 | 1.465.1-21.94 |
22 966 руб. |
||
| 5970 | 2980 | 300 | 2460 | 1.465.1-21.94 |
21 452 руб. |
||
| 11960 | 2980 | 450 | 7300 | 1.465.1-15 |
72 246 руб. |
||
| 11960 | 2980 | 450 | 4100 | 1.465.1-15 |
53 667 руб. |
||
| 11960 | 2980 | 450 | 4100 | 1.465.1-15 |
49 783 руб. |
||
| 11960 | 2980 | 450 | 4100 | 1.465.1-15 |
45 692 руб. |
||
| 11960 | 2980 | 450 | 4100 | 1.465.1-15 |
43 572 руб. |
||
| 11960 | 2980 | 520 | 7300 | 1.465.1-15 |
69 154 руб. |
||
| 17940 | 2930 | 600 | 10800 | 1.465.1-13 |
107 335 руб. |
||
| 17940 | 2930 | 600 | 10800 | 1.465.1-13 |
105 742 руб. |
||
| 17940 | 2930 | 600 | 10800 | 1.465.1-13 |
102 505 руб. |
||
| 17940 | 2930 | 600 | 11500 | 1.465.1-13 |
110 494 руб. |
||
| 17940 | 2930 | 600 | 11500 | 1.465.1-13 |
104 949 руб. |
||
| 17940 | 2930 | 600 | 11500 | 1.465.1-13 |
99 404 руб. |
||
| 17940 | 2930 | 600 | 12200 | 1.465.1-13 |
137 043 руб. |
||
| 17940 | 2930 | 600 | 12200 | 1.465.1-13 |
136 398 руб. |
||
| 17940 | 2930 | 600 | 12700 | 1.465.1-13 |
148 834 руб. |
||
| 17940 | 2930 | 600 | 12700 | 1.465.1-13 |
148 304 руб. |
||
| 17940 | 2930 | 600 | 11400 | 1.465.1-13 |
132 934 руб. |
||
| 17940 | 2930 | 600 | 12200 | 1.465.1-13 |
119 096 руб. |
||
| 17940 | 2930 | 600 | 11500 | 1.465.1-13 |
115 007 руб. |
||
| 17940 | 2930 | 600 | 12300 | 1.465.1-13 |
119 588 руб. |
||
| 17940 | 2930 | 600 | 12200 | 1.465.1-13 |
118 451 руб. |
||
| 17940 | 2930 | 600 | 12700 | 1.465.1-13 |
130 886 руб. |
||
| 17940 | 2930 | 600 | 12700 | 1.465.1-13 |
130 356 руб. |
||
| 17940 | 2930 | 600 | 12200 | 1.465.1-13 |
119 764 руб. |
||
| 17940 | 2930 | 600 | 12000 | 1.465.1-13 |
117 939 руб. |
||
| 17940 | 2930 | 600 | 12200 | 1.465.1-13 |
134 578 руб. |
||
| 17940 | 2930 | 600 | 12200 | 1.465.1-13 |
133 829 руб. |
||
| 17940 | 2930 | 600 | 12700 | 1.465.1-13 |
146 472 руб. |
||
| 17940 | 2930 | 600 | 12700 | 1.465.1-13 |
145 839 руб. |
||
| 17940 | 2930 | 600 | 11400 | 1.465.1-13 |
130 365 руб. |
||
| 17940 | 2930 | 600 | 12700 | 1.465.1-13 |
148 050 руб. |
||
| 17940 | 2930 | 600 | 12700 | 1.465.1-13 |
147 520 руб. |
||
| 17940 | 2930 | 600 | 12200 | 1.465.1-13 |
136 928 руб. |
||
| 17940 | 2930 | 600 | 11400 | 1.465.1-13 |
132 151 руб. |
| Название | Длина, мм | Ширина, мм | Высота, мм | Вес, кг | Номер стандарта | Цена | |
|---|---|---|---|---|---|---|---|
| 5950 | 1485 | 400 | 2200 | 27215-87 |
32 105 руб. |
||
| 5950 | 1485 | 400 | 2300 | 27215-87 |
32 662 руб. |
||
| 5950 | 1485 | 400 | 2400 | 27215-87 |
33 323 руб. |
||
| 5950 | 1485 | 400 | 1900 | 27215-87 |
30 606 руб. |
||
| 5950 | 1485 | 400 | 2200 | 27215-87 |
32 193 руб. |
||
| 5950 | 1485 | 400 | 2300 | 27215-87 |
32 754 руб. |
||
| 5950 | 1485 | 400 | 2400 | 27215-87 |
33 418 руб. |
||
| 5950 | 1485 | 400 | 2400 | 27215-87 |
33 142 руб. |
||
| 5950 | 1485 | 400 | 2200 | 27215-87 |
33 533 руб. |
||
| 5950 | 1485 | 400 | 2300 | 27215-87 |
34 091 руб. |
||
| 5950 | 1485 | 400 | 2400 | 27215-87 |
34 751 руб. |
||
| 5950 | 1485 | 400 | 2400 | 27215-87 |
34 475 руб. |
||
| 5950 | 1485 | 400 | 2200 | 27215-87 |
27 905 руб. |
||
| 5950 | 1485 | 400 | 2300 | 27215-87 |
28 251 руб. |
||
| 5950 | 1485 | 400 | 2400 | 27215-87 |
28 896 руб. |
||
| 5950 | 1485 | 400 | 1900 | 27215-87 |
26 200 руб. |
||
| 5950 | 1485 | 400 | 2200 | 27215-87 |
27 993 руб. |
||
| 5950 | 1485 | 400 | 2300 | 27215-87 |
28 342 руб. |
||
| 5950 | 1485 | 400 | 2400 | 27215-87 |
28 992 руб. |
||
| 5950 | 1485 | 400 | 2400 | 27215-87 |
28 715 руб. |
||
| 5950 | 1485 | 400 | 2200 | 27215-87 |
26 841 руб. |
||
| 5950 | 1485 | 400 | 2300 | 27215-87 |
27 121 руб. |
||
| 5950 | 1485 | 400 | 2300 | 27215-87 |
27 352 руб. |
||
| 5950 | 1485 | 400 | 2400 | 27215-87 |
27 563 руб. |
||
| 5950 | 1485 | 400 | 2200 | 27215-87 |
29 195 руб. |
||
| 5950 | 1485 | 400 | 2300 | 27215-87 |
29 541 руб. |
||
| 5950 | 1485 | 400 | 2400 | 27215-87 |
30 186 руб. |
||
| 5950 | 1485 | 400 | 2400 | 27215-87 |
29 910 руб. |
||
| 5950 | 1485 | 400 | 2200 | 27215-87 |
24 177 руб. |
||
| 5950 | 1485 | 400 | 2300 | 27215-87 |
24 554 руб. |
||
| 5950 | 1485 | 400 | 2400 | 27215-87 |
25 161 руб. |
||
| 5950 | 1485 | 400 | 1900 | 27215-87 |
22 484 руб. |
||
| 5950 | 1485 | 400 | 2200 | 27215-87 |
24 265 руб. |
||
| 5950 | 1485 | 400 | 2300 | 27215-87 |
24 645 руб. |
||
| 5950 | 1485 | 400 | 2400 | 27215-87 |
25 256 руб. |
||
| 5950 | 1485 | 400 | 2400 | 27215-87 |
24 980 руб. |
||
| 5950 | 1485 | 400 | 1800 | 27215-87 |
22 257 руб. |
||
| 5950 | 1485 | 400 | 1800 | 27215-87 |
22 154 руб. |
||
| 5950 | 1485 | 400 | 1900 | 27215-87 |
22 836 руб. |
||
| 5950 | 1485 | 400 | 1900 | 27215-87 |
22 484 руб. |
||
| 5950 | 1485 | 400 | 2200 | 27215-87 |
23 638 руб. |
||
| 5950 | 1485 | 400 | 2300 | 27215-87 |
24 023 руб. |
||
| 5950 | 1485 | 400 | 2300 | 27215-87 |
24 149 руб. |
||
| 5950 | 1485 | 400 | 2400 | 27215-87 |
24 361 руб. |
||
| 5950 | 1485 | 400 | 2200 | 27215-87 |
25 288 руб. |
||
| 5950 | 1485 | 400 | 2300 | 27215-87 |
25 660 руб. |
||
| 5950 | 1485 | 400 | 2400 | 27215-87 |
26 263 руб. |
||
| 5950 | 1485 | 400 | 2400 | 27215-87 |
25 987 руб. |
||
| 5950 | 1485 | 400 | 1800 | 27215-87 |
23 384 руб. |
||
| 5950 | 1485 | 400 | 1800 | 27215-87 |
23 280 руб. |
ТД "Еврастрой" предлагает купить Плиты ребристые 1П 2-4 АтVIт по выгодной цене. Наша компания осуществляет доставку продукции по всей территории России и странам СНГ.
В каталоге представлено около 170 тыс. позиций.
По наличию и ценам Мы можем проконсультировать Вас по телефону +7 (343) 300-90-87 или можете отправить запрос на почтовый ящик gbi@gbi22.ru.
Оплатить продукцию можно в рассрочку, для обсуждения вопросов оплаты так же можно обратиться к нашим менеджерам.
Продажа ЖБИ изделий производится с заводов в таких городах как:
Наши менеджеры помогут Вам подобрать оптимальное решения для ваших задач, сориентируют по наличию и ценам, расскажут про оптимальные варианты доставки и оплаты. Звоните +7 (343) 300-90-87
