Производство, продажа и
поставка ЖБИ по России и СНГ
Навигация
Код товара:
27 748 руб.
цена с НДС*
Цена за 1м3, руб
21 952 с НДС*

серия 1.089.1-2

Краткие характеристики
Длина, мм
2160
Ширина, мм
140
Высота, мм
4180
Вес, кг
3160

Все характеристики
Длина, мм
2160
Ширина, мм
140
Высота, мм
4180
Вес, кг
3160
Количество в квадратом метре, шт
3,31
Нормы погрузки на авто
6
Нормы погрузки ЖД
21
Ссылка на стандарт
https://disk.yandex.ru/d/vt3WOHWNUtESGg
Расход стали, кг
113,55
Расход стали на 1м3 бетона, кг
89,83
Класс прочности
В15
Марка бетона
М200
Морозостойкость
F100-F200
Водонепроницаемость
W4-W6
Марка бетона по EN 206-1
C12/15
Геометрический объем
1,264
Объем бетона
1,26
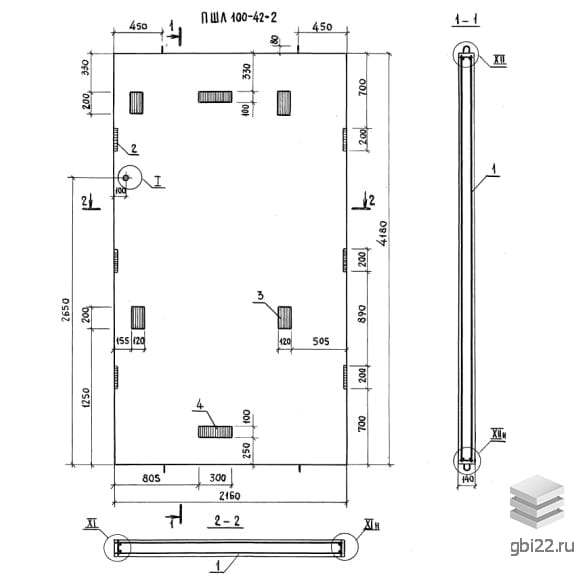
Панели шахт лифтов ПШЛ 100-42-2 размеры: длина, мм.: 2160, ширина, мм.: 140, высота, мм.: 4180, вес, кг.: 3160, марка бетона: М200. Изделия относятся к категории Шахты лифтов железобетонные-Панели шахт лифтов и изготавливаются по технической документации согласно серия 1.089.1-2
Стандарт
серия
Номер стандарта
1.089.1-2
Статус
не определен
Год выпущенного стандарта
1993
Название стандарта
Шахты лифтов из железобетонных панелей межвидового применения.
Название Длина, ммШирина, ммВысота, ммВес, кгНомер стандарта Цена
266014041803850ИИ 04-15
по запросу
266014041803850ИИ 04-15
по запросу
266014041803850ИИ 04-15
45 997 руб.
266014041803850ИИ 04-15
45 040 руб.
266014041802820ИИ 04-15
по запросу
266014035803290ИИ 04-15
по запросу
266014035803290ИИ 04-15
по запросу
266014035803290ИИ 04-15
38 055 руб.
266014035803290ИИ 04-15
38 951 руб.
266014035802270ИИ 04-15
по запросу
266014032803010ИИ 04-15
по запросу
266014032803010ИИ 04-15
36 648 руб.
266014032801990ИИ 04-15
по запросу
246014041803630ИИ 04-15
по запросу
246014041803630ИИ 04-15
по запросу
246014035803100ИИ 04-15
по запросу
246014035803100ИИ 04-15
по запросу
246014032802850ИИ 04-15
по запросу
216014041803150ИИ 04-15
по запросу
216014041803150ИИ 04-15
по запросу
216014041803150ИИ 04-15
по запросу
216014041803150ИИ 04-15
по запросу
216014041803150ИИ 04-15
46 763 руб.
216014041803150ИИ 04-15
47 479 руб.
216014041803150ИИ 04-15
43 217 руб.
216014041803150ИИ 04-15
41 169 руб.
216014041803150ИИ 04-15
по запросу
216014041801820ИИ 04-15
по запросу
216014041801220ИИ 04-15
по запросу
216014041801200ИИ 04-15
по запросу
216014041803150ИИ 04-15
32 893 руб.
216014035802700ИИ 04-15
по запросу
216014035802700ИИ 04-15
по запросу
216014035802700ИИ 04-15
41 537 руб.
216014035802700ИИ 04-15
38 079 руб.
216014035802700ИИ 04-15
35 227 руб.
216014035802700ИИ 04-15
35 943 руб.
216014035801790ИИ 04-15
по запросу
216014035801360ИИ 04-15
по запросу
216014035801460ИИ 04-15
по запросу
216014035801450ИИ 04-15
по запросу
216014035802700ИИ 04-15
26 753 руб.
216014032802470ИИ 04-15
по запросу
216014032802470ИИ 04-15
по запросу
216014032802470ИИ 04-15
36 226 руб.
216014032802470ИИ 04-15
32 878 руб.
216014032802470ИИ 04-15
33 862 руб.
216014032801560ИИ 04-15
по запросу
216014032801130ИИ 04-15
по запросу
216014032801240ИИ 04-15
по запросу
Полный каталог
Название Длина, ммШирина, ммВысота, ммВес, кгНомер стандарта Цена
2160140418020001.089.1-2
29 401 руб.
2160140418031601.089.1-2
28 375 руб.
2160140418031601.089.1-2
28 186 руб.
2160140418020001.089.1-2
29 401 руб.
2160140358015501.089.1-2
23 886 руб.
2160140358027101.089.1-2
23 396 руб.
2160140358027101.089.1-2
23 207 руб.
2160140358015501.089.1-2
23 886 руб.
2160140328013201.089.1-2
21 599 руб.
2160140328024801.089.1-2
21 079 руб.
2160140328024801.089.1-2
20 890 руб.
2160140328013201.089.1-2
21 599 руб.
2160140298011001.089.1-2
19 103 руб.
2160140298022501.089.1-2
18 832 руб.
2160140298022501.089.1-2
17 816 руб.
2160140298022501.089.1-2
18 738 руб.
2160140298011001.089.1-2
19 103 руб.
1660140418015901.089.1-2
26 133 руб.
1660140418024301.089.1-2
23 285 руб.
1660140418024301.089.1-2
21 253 руб.
1660140418024301.089.1-2
23 096 руб.
1660140418015901.089.1-2
26 133 руб.
1660140358012401.089.1-2
21 490 руб.
1660140358020801.089.1-2
18 889 руб.
1660140358020801.089.1-2
16 857 руб.
1660140358020801.089.1-2
18 700 руб.
1660140358012401.089.1-2
21 490 руб.
1660140328010601.089.1-2
19 578 руб.
1660140328019101.089.1-2
17 260 руб.
1660140328019101.089.1-2
15 654 руб.
1660140328019101.089.1-2
17 071 руб.
1660140328010601.089.1-2
19 578 руб.
166014029809001.089.1-2
17 778 руб.
1660140298017301.089.1-2
15 490 руб.
1660140298017301.089.1-2
14 474 руб.
1660140298017301.089.1-2
15 396 руб.
1660140298017301.089.1-2
21 729 руб.
2510140418036701.089.1-2
32 262 руб.
2510140418036701.089.1-2
31 431 руб.
2510140358031501.089.1-2
26 603 руб.
2510140358031501.089.1-2
25 771 руб.
2510140328028801.089.1-2
24 283 руб.
2510140328028801.089.1-2
23 451 руб.
2510140298026201.089.1-2
21 401 руб.
2510140328026201.089.1-2
20 985 руб.
2160140418020001.089.1-2
29 561 руб.
2660140418039001.089.1-2
32 943 руб.
2660140418039001.089.1-2
33 772 руб.
2160140418020001.089.1-2
29 561 руб.
2160140358015501.089.1-2
23 818 руб.

ТД "Еврастрой" предлагает купить Панели шахт лифтов ПШЛ 100-42-2 по выгодной цене. Наша компания осуществляет доставку продукции по всей территории России и странам СНГ.

В каталоге представлено около 170 тыс. позиций.

По наличию и ценам Мы можем проконсультировать Вас по телефону +7 (343) 300-90-87 или можете отправить запрос на почтовый ящик gbi@gbi22.ru.

Оплатить продукцию можно в рассрочку, для обсуждения вопросов оплаты так же можно обратиться к нашим менеджерам.

Продажа ЖБИ изделий производится с заводов в таких городах как:

  • Екатеринбург
  • Тюмень
  • Красноярск
  • Новосибирск
  • Иркутск
  • Ростов-на-дону
  • Нижний Новгород
  • Казань
  • Москва

Наши менеджеры помогут Вам подобрать оптимальное решения для ваших задач, сориентируют по наличию и ценам, расскажут про оптимальные варианты доставки и оплаты. Звоните +7 (343) 300-90-87

27 748 руб.
цена с НДС*
Наличие: нет
шт.
Перейти в корзину

Оформить заказ
Рассрочка
Рассказать друзьям: