Производство, продажа и
поставка ЖБИ по России и СНГ
Навигация
Код товара:
0 руб.
цена с НДС*

серия 1.289.1-2

Краткие характеристики
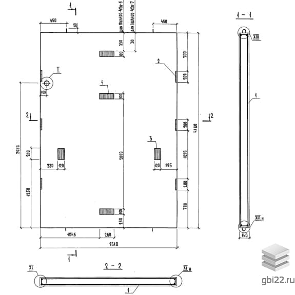
Длина, мм
2510
Ширина, мм
140
Высота, мм
4180
Вес, кг
3670

Все характеристики
Длина, мм
2510
Ширина, мм
140
Высота, мм
4180
Вес, кг
3670
Количество в квадратом метре, шт
2,85
Нормы погрузки на авто
5
Нормы погрузки ЖД
18
Ссылка на стандарт
https://disk.yandex.ru/d/HrJPSU0ZUm4Csg
Геометрический объем
1,469
Объем бетона
1,47
Панели шахт лифтов ПШЛ 100-42п-7 размеры: длина, мм.: 2510, ширина, мм.: 140, высота, мм.: 4180, вес, кг.: 3670, марка бетона: . Изделия относятся к категории Шахты лифтов железобетонные-Панели шахт лифтов и изготавливаются по технической документации согласно серия 1.289.1-2
Стандарт
серия
Номер стандарта
1.289.1-2
Статус
не определен
Год выпущенного стандарта
1990
Название стандарта
Шахты лифтов из железобетонных панелей для общественных зданий.
Название Длина, ммШирина, ммВысота, ммВес, кгНомер стандарта Цена
266014041803850ИИ 04-15
по запросу
266014041803850ИИ 04-15
по запросу
266014041803850ИИ 04-15
45 997 руб.
266014041803850ИИ 04-15
45 040 руб.
266014041802820ИИ 04-15
по запросу
266014035803290ИИ 04-15
по запросу
266014035803290ИИ 04-15
по запросу
266014035803290ИИ 04-15
38 055 руб.
266014035803290ИИ 04-15
38 951 руб.
266014035802270ИИ 04-15
по запросу
266014032803010ИИ 04-15
по запросу
266014032803010ИИ 04-15
36 648 руб.
266014032801990ИИ 04-15
по запросу
246014041803630ИИ 04-15
по запросу
246014041803630ИИ 04-15
по запросу
246014035803100ИИ 04-15
по запросу
246014035803100ИИ 04-15
по запросу
246014032802850ИИ 04-15
по запросу
216014041803150ИИ 04-15
по запросу
216014041803150ИИ 04-15
по запросу
216014041803150ИИ 04-15
по запросу
216014041803150ИИ 04-15
по запросу
216014041803150ИИ 04-15
46 763 руб.
216014041803150ИИ 04-15
47 479 руб.
216014041803150ИИ 04-15
43 217 руб.
216014041803150ИИ 04-15
41 169 руб.
216014041803150ИИ 04-15
по запросу
216014041801820ИИ 04-15
по запросу
216014041801220ИИ 04-15
по запросу
216014041801200ИИ 04-15
по запросу
216014041803150ИИ 04-15
32 893 руб.
216014035802700ИИ 04-15
по запросу
216014035802700ИИ 04-15
по запросу
216014035802700ИИ 04-15
41 537 руб.
216014035802700ИИ 04-15
38 079 руб.
216014035802700ИИ 04-15
35 227 руб.
216014035802700ИИ 04-15
35 943 руб.
216014035801790ИИ 04-15
по запросу
216014035801360ИИ 04-15
по запросу
216014035801460ИИ 04-15
по запросу
216014035801450ИИ 04-15
по запросу
216014035802700ИИ 04-15
26 753 руб.
216014032802470ИИ 04-15
по запросу
216014032802470ИИ 04-15
по запросу
216014032802470ИИ 04-15
36 226 руб.
216014032802470ИИ 04-15
32 878 руб.
216014032802470ИИ 04-15
33 862 руб.
216014032801560ИИ 04-15
по запросу
216014032801130ИИ 04-15
по запросу
216014032801240ИИ 04-15
по запросу
Полный каталог
Название Длина, ммШирина, ммВысота, ммВес, кгНомер стандарта Цена
2160140418021001.289.1-2
по запросу
2160140418021001.289.1-2
по запросу
2660140418038901.289.1-2
по запросу
2660140418038901.289.1-2
по запросу
2660140418038901.289.1-2
по запросу
2660140418038901.289.1-2
по запросу
2660140418038901.289.1-2
по запросу
2660140418038901.289.1-2
по запросу
2160140418031601.289.1-2
по запросу
2660140418038901.289.1-2
по запросу
2660140418038901.289.1-2
по запросу
2160140418021001.289.1-2
по запросу
2160140418021001.289.1-2
по запросу
2160140358016501.289.1-2
по запросу
2160140358016501.289.1-2
по запросу
2660140358033301.289.1-2
по запросу
2660140358033301.289.1-2
по запросу
2660140358033301.289.1-2
по запросу
2660140358033301.289.1-2
по запросу
2660140358033301.289.1-2
по запросу
2660140358033301.289.1-2
по запросу
2160140358027101.289.1-2
по запросу
2660140358033001.289.1-2
по запросу
2660140358033301.289.1-2
по запросу
2160140358016501.289.1-2
по запросу
2160140358016501.289.1-2
по запросу
2160140328014201.289.1-2
по запросу
2160140328014201.289.1-2
по запросу
2660140328030501.289.1-2
по запросу
2660140328030501.289.1-2
по запросу
2160140328024801.289.1-2
по запросу
2660140328030501.289.1-2
по запросу
2660140328030501.289.1-2
по запросу
2160140328014201.289.1-2
по запросу
2160140328014201.289.1-2
по запросу
1960140418028701.289.1-2
по запросу
1960140418028701.289.1-2
по запросу
1960140418028701.289.1-2
по запросу
1960140418028701.289.1-2
по запросу
1960140418028701.289.1-2
по запросу
1960140418028701.289.1-2
по запросу
1960140418028701.289.1-2
по запросу
1960140418028701.289.1-2
по запросу
1960140418028701.289.1-2
по запросу
1960140418028701.289.1-2
по запросу
1960140418028701.289.1-2
по запросу
1960140418028701.289.1-2
по запросу
1960140418028701.289.1-2
по запросу
1960140418028701.289.1-2
по запросу
1960140418028701.289.1-2
по запросу

ТД "Еврастрой" предлагает купить Панели шахт лифтов ПШЛ 100-42п-7 по выгодной цене. Наша компания осуществляет доставку продукции по всей территории России и странам СНГ.

В каталоге представлено около 170 тыс. позиций.

По наличию и ценам Мы можем проконсультировать Вас по телефону +7 (343) 300-90-87 или можете отправить запрос на почтовый ящик gbi@gbi22.ru.

Оплатить продукцию можно в рассрочку, для обсуждения вопросов оплаты так же можно обратиться к нашим менеджерам.

Продажа ЖБИ изделий производится с заводов в таких городах как:

  • Екатеринбург
  • Тюмень
  • Красноярск
  • Новосибирск
  • Иркутск
  • Ростов-на-дону
  • Нижний Новгород
  • Казань
  • Москва

Наши менеджеры помогут Вам подобрать оптимальное решения для ваших задач, сориентируют по наличию и ценам, расскажут про оптимальные варианты доставки и оплаты. Звоните +7 (343) 300-90-87

0 руб.
цена с НДС*
Наличие: нет
шт.
Перейти в корзину

Оформить заказ
Рассрочка
Рассказать друзьям: