Производство, продажа и
поставка ЖБИ по России и СНГ
Навигация
Код товара:
0 руб.
цена с НДС*

серия ИИ 04-15

Краткие характеристики
Длина, мм
1960
Ширина, мм
140
Высота, мм
4180
Вес, кг
2820

Все характеристики
Длина, мм
1960
Ширина, мм
140
Высота, мм
4180
Вес, кг
2820
Количество в квадратом метре, шт
3,64
Нормы погрузки на авто
7
Нормы погрузки ЖД
24
Ссылка на стандарт
https://disk.yandex.ru/d/6zMgfLsszZNj8w
Геометрический объем
1,147
Объем бетона
1,13
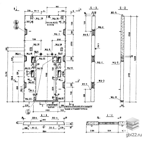
Панели шахт лифтов ШЛ 20-42 п-1 размеры: длина, мм.: 1960, ширина, мм.: 140, высота, мм.: 4180, вес, кг.: 2820, марка бетона: . Изделия относятся к категории Шахты лифтов железобетонные-Панели шахт лифтов и изготавливаются по технической документации согласно серия ИИ 04-15
Стандарт
серия
Номер стандарта
ИИ 04-15
Статус
заменен серия 1.020-1
Год выпущенного стандарта
1974
Название стандарта
Сборные железобетонные элементы лифтовых шахт.
Название Длина, ммШирина, ммВысота, ммВес, кгНомер стандарта Цена
266014041803850ИИ 04-15
по запросу
266014041803850ИИ 04-15
по запросу
266014041803850ИИ 04-15
45 997 руб.
266014041803850ИИ 04-15
45 040 руб.
266014041802820ИИ 04-15
по запросу
266014035803290ИИ 04-15
по запросу
266014035803290ИИ 04-15
по запросу
266014035803290ИИ 04-15
38 055 руб.
266014035803290ИИ 04-15
38 951 руб.
266014035802270ИИ 04-15
по запросу
266014032803010ИИ 04-15
по запросу
266014032803010ИИ 04-15
36 648 руб.
266014032801990ИИ 04-15
по запросу
246014041803630ИИ 04-15
по запросу
246014041803630ИИ 04-15
по запросу
246014035803100ИИ 04-15
по запросу
246014035803100ИИ 04-15
по запросу
246014032802850ИИ 04-15
по запросу
216014041803150ИИ 04-15
по запросу
216014041803150ИИ 04-15
по запросу
216014041803150ИИ 04-15
по запросу
216014041803150ИИ 04-15
по запросу
216014041803150ИИ 04-15
46 763 руб.
216014041803150ИИ 04-15
47 479 руб.
216014041803150ИИ 04-15
43 217 руб.
216014041803150ИИ 04-15
41 169 руб.
216014041803150ИИ 04-15
по запросу
216014041801820ИИ 04-15
по запросу
216014041801220ИИ 04-15
по запросу
216014041801200ИИ 04-15
по запросу
216014041803150ИИ 04-15
32 893 руб.
216014035802700ИИ 04-15
по запросу
216014035802700ИИ 04-15
по запросу
216014035802700ИИ 04-15
41 537 руб.
216014035802700ИИ 04-15
38 079 руб.
216014035802700ИИ 04-15
35 227 руб.
216014035802700ИИ 04-15
35 943 руб.
216014035801790ИИ 04-15
по запросу
216014035801360ИИ 04-15
по запросу
216014035801460ИИ 04-15
по запросу
216014035801450ИИ 04-15
по запросу
216014035802700ИИ 04-15
26 753 руб.
216014032802470ИИ 04-15
по запросу
216014032802470ИИ 04-15
по запросу
216014032802470ИИ 04-15
36 226 руб.
216014032802470ИИ 04-15
32 878 руб.
216014032802470ИИ 04-15
33 862 руб.
216014032801560ИИ 04-15
по запросу
216014032801130ИИ 04-15
по запросу
216014032801240ИИ 04-15
по запросу
Полный каталог
Название Длина, ммШирина, ммВысота, ммВес, кгНомер стандарта Цена
266014041803850ИИ 04-15
по запросу
266014041803850ИИ 04-15
по запросу
266014041803850ИИ 04-15
45 997 руб.
266014041803850ИИ 04-15
45 040 руб.
266014041802820ИИ 04-15
по запросу
266014035803290ИИ 04-15
по запросу
266014035803290ИИ 04-15
по запросу
266014035803290ИИ 04-15
38 055 руб.
266014035803290ИИ 04-15
38 951 руб.
266014035802270ИИ 04-15
по запросу
266014032803010ИИ 04-15
по запросу
266014032803010ИИ 04-15
36 648 руб.
266014032801990ИИ 04-15
по запросу
246014041803630ИИ 04-15
по запросу
246014041803630ИИ 04-15
по запросу
246014035803100ИИ 04-15
по запросу
246014035803100ИИ 04-15
по запросу
246014032802850ИИ 04-15
по запросу
216014041803150ИИ 04-15
по запросу
216014041803150ИИ 04-15
по запросу
216014041803150ИИ 04-15
по запросу
216014041803150ИИ 04-15
по запросу
216014041803150ИИ 04-15
46 763 руб.
216014041803150ИИ 04-15
47 479 руб.
216014041803150ИИ 04-15
43 217 руб.
216014041803150ИИ 04-15
41 169 руб.
216014041803150ИИ 04-15
по запросу
216014041801820ИИ 04-15
по запросу
216014041801220ИИ 04-15
по запросу
216014041801200ИИ 04-15
по запросу
216014041803150ИИ 04-15
32 893 руб.
216014035802700ИИ 04-15
по запросу
216014035802700ИИ 04-15
по запросу
216014035802700ИИ 04-15
41 537 руб.
216014035802700ИИ 04-15
38 079 руб.
216014035802700ИИ 04-15
35 227 руб.
216014035802700ИИ 04-15
35 943 руб.
216014035801790ИИ 04-15
по запросу
216014035801360ИИ 04-15
по запросу
216014035801460ИИ 04-15
по запросу
216014035801450ИИ 04-15
по запросу
216014035802700ИИ 04-15
26 753 руб.
216014032802470ИИ 04-15
по запросу
216014032802470ИИ 04-15
по запросу
216014032802470ИИ 04-15
36 226 руб.
216014032802470ИИ 04-15
32 878 руб.
216014032802470ИИ 04-15
33 862 руб.
216014032801560ИИ 04-15
по запросу
216014032801130ИИ 04-15
по запросу
216014032801240ИИ 04-15
по запросу

ТД "Еврастрой" предлагает купить Панели шахт лифтов ШЛ 20-42 п-1 по выгодной цене. Наша компания осуществляет доставку продукции по всей территории России и странам СНГ.

В каталоге представлено около 170 тыс. позиций.

По наличию и ценам Мы можем проконсультировать Вас по телефону +7 (343) 300-90-87 или можете отправить запрос на почтовый ящик gbi@gbi22.ru.

Оплатить продукцию можно в рассрочку, для обсуждения вопросов оплаты так же можно обратиться к нашим менеджерам.

Продажа ЖБИ изделий производится с заводов в таких городах как:

  • Екатеринбург
  • Тюмень
  • Красноярск
  • Новосибирск
  • Иркутск
  • Ростов-на-дону
  • Нижний Новгород
  • Казань
  • Москва

Наши менеджеры помогут Вам подобрать оптимальное решения для ваших задач, сориентируют по наличию и ценам, расскажут про оптимальные варианты доставки и оплаты. Звоните +7 (343) 300-90-87

0 руб.
цена с НДС*
Наличие: нет
шт.
Перейти в корзину

Оформить заказ
Рассрочка
Рассказать друзьям: