В вашей корзине ещё нет товаров.
| Цена за 1м3, руб | 19 188 с НДС* |
|
|||||||||
| Количество в квадратом метре, шт | 0,08 | ||||||||
| Нормы погрузки на авто | 4 | ||||||||
| Нормы погрузки ЖД | 15 | ||||||||
| Ссылка на стандарт | https://disk.yandex.ru/d/hM8qd3WIki10iw | ||||||||
| Расход стали, кг | 114,76 |
| Расход стали на 1м3 бетона, кг | 64,11 |
| Класс прочности | В22,5 |
| Марка бетона | М300 |
| Морозостойкость | F150-F300 |
| Водонепроницаемость | W6-W8 |
| Марка бетона по EN 206-1 | C18/22 |
| Геометрический объем | 1,913 |
| Объем бетона | 1,79 |
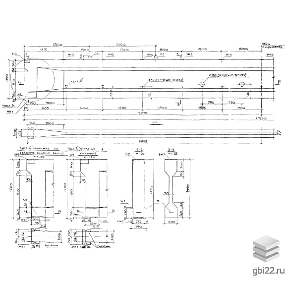
ПЛХ – плиты лифтовых холлов, предназначенные для обустройства площадок возле лифтов в жилых и общественных зданиях. Цифра в маркировке обозначает типоразмер изделия:
Плиты лифтовых холлов ПЛХ 3 представляют собой железобетонные платформы толщиной 160 мм с гладкой поверхностью. На одном из углов предусмотрен технологический срез для удобства монтажа.
По периметру изделия расположены стальные закладные детали для крепления ограждений. В конструкции предусмотрены каналы для скрытой прокладки электропроводки в ПВХ-трубах. Для монтажа используются строповочные петли, которые удаляются после установки.
Изделия изготавливаются из тяжелого бетона с пространственным армированием из стальных каркасов класса A-III. Каждая партия проходит лабораторные испытания на:
Рекомендуется перевозить и хранить плиты в горизонтальном положении с деревянными прокладками толщиной от 50 мм. Максимальная высота штабеля – 2 метра.
Все технические требования и параметры регламентированы в Альбоме 4.2-1, включающем типовые конструкции и правила выбора плит для различных условий эксплуатации.
| Стандарт | альбом |
| Номер стандарта | ИЖ 4.2-1 |
| Статус | не определен |
| Год выпущенного стандарта | 2002 |
| Название стандарта | Рабочая документация. Лестничные марши, площадки и плиты лифтовых холлов. |
| Название | Длина, мм | Ширина, мм | Высота, мм | Вес, кг | Номер стандарта | Цена | |
|---|---|---|---|---|---|---|---|
| 2220 | 1180 | 160 | 895 | ИЖ 4.2-1 |
7 932 руб. |
||
| 3750 | 2180 | 160 | 2715 | ИЖ 4.2-1 |
28 837 руб. |
||
| 2860 | 3080 | 160 | 3340 | ИЖ 4.2-1 |
27 933 руб. |
||
| 3750 | 2130 | 160 | 2400 | ИЖ 4.2-1 |
22 879 руб. |
||
| 4360 | 3080 | 160 | 4935 | ИЖ 4.2-1 |
40 166 руб. |
||
| 4360 | 3080 | 160 | 5060 | ИЖ 4.2-1 |
41 076 руб. |
||
| 3280 | 1780 | 160 | 2190 | ИЖ 4.2-1 |
20 459 руб. |
||
| 5890 | 2030 | 160 | 2195 | ИЖ 4.2-1 |
18 636 руб. |
||
| 4180 | 1260 | 160 | 1950 | ИЖ 4.2-1 |
24 412 руб. |
||
| 4790 | 2130 | 160 | 4025 | ИЖ 4.2-1 |
34 093 руб. |
| Название | Длина, мм | Ширина, мм | Высота, мм | Вес, кг | Номер стандарта | Цена | |
|---|---|---|---|---|---|---|---|
| 2220 | 1180 | 160 | 895 | ИЖ 4.2-1 |
7 932 руб. |
||
| 3750 | 2180 | 160 | 2715 | ИЖ 4.2-1 |
28 837 руб. |
||
| 2860 | 3080 | 160 | 3340 | ИЖ 4.2-1 |
27 933 руб. |
||
| 3750 | 2130 | 160 | 2400 | ИЖ 4.2-1 |
22 879 руб. |
||
| 4360 | 3080 | 160 | 4935 | ИЖ 4.2-1 |
40 166 руб. |
||
| 4360 | 3080 | 160 | 5060 | ИЖ 4.2-1 |
41 076 руб. |
||
| 3280 | 1780 | 160 | 2190 | ИЖ 4.2-1 |
20 459 руб. |
||
| 5890 | 2030 | 160 | 2195 | ИЖ 4.2-1 |
18 636 руб. |
||
| 4180 | 1260 | 160 | 1950 | ИЖ 4.2-1 |
24 412 руб. |
||
| 4790 | 2130 | 160 | 4025 | ИЖ 4.2-1 |
34 093 руб. |
||
| 2200 | 1225 | 160 | 950 | ИЖ 4.2-1 |
9 070 руб. |
||
| 2380 | 1315 | 160 | 1100 | ИЖ 4.2-1 |
10 204 руб. |
||
| 2013 | 2560 | 255 | 2275 | ИЖ 4.2-1 |
14 876 руб. |
||
| 1993 | 1050 | 241 | 910 | ИЖ 4.2-1 |
6 316 руб. |
||
| 3364 | 1050 | 250 | 1590 | ИЖ 4.2-1 |
10 041 руб. |
ТД "Еврастрой" предлагает купить Плиты лифтового холла ПЛХ 3 по выгодной цене. Наша компания осуществляет доставку продукции по всей территории России и странам СНГ.
В каталоге представлено около 170 тыс. позиций.
По наличию и ценам Мы можем проконсультировать Вас по телефону +7 (343) 300-90-87 или можете отправить запрос на почтовый ящик gbi@gbi22.ru.
Оплатить продукцию можно в рассрочку, для обсуждения вопросов оплаты так же можно обратиться к нашим менеджерам.
Продажа ЖБИ изделий производится с заводов в таких городах как:
Наши менеджеры помогут Вам подобрать оптимальное решения для ваших задач, сориентируют по наличию и ценам, расскажут про оптимальные варианты доставки и оплаты. Звоните +7 (343) 300-90-87
