Производство, продажа и
поставка ЖБИ по России и СНГ
Навигация
Код товара:
0 руб.
цена с НДС*

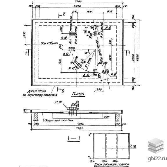
серия 1.489-1

Краткие характеристики
Длина, мм
5780
Ширина, мм
4230
Высота, мм
150
Вес, кг
9175

Все характеристики
Длина, мм
5780
Ширина, мм
4230
Высота, мм
150
Вес, кг
9175
Количество в квадратом метре, шт
0,04
Нормы погрузки на авто
СПЕЦАВТО
Нормы погрузки ЖД
СПЕЦВАГОН
Ссылка на стандарт
https://disk.yandex.ru/d/tdNxu1zSZ615wA
Геометрический объем
3,667
Объем бетона
3,67
Плиты перекрытия шахт П 48 размеры: длина, мм.: 5780, ширина, мм.: 4230, высота, мм.: 150, вес, кг.: 9175, марка бетона: . Изделия относятся к категории Шахты лифтов железобетонные-Плиты перекрытия шахт и изготавливаются по технической документации согласно серия 1.489-1
Стандарт
серия
Номер стандарта
1.489-1
Статус
не действует
Год выпущенного стандарта
1974
Название стандарта
Шахты лифтов многоэтажных зданий промышленных предприятий.
Название Длина, ммШирина, ммВысота, ммВес, кгНомер стандарта Цена
4330341040078751.489-1
по запросу
3630393035070251.489-1
по запросу
3630393035070251.489-1
по запросу
4950526015097751.489-1
по запросу
4650476015083001.489-1
по запросу
4650476015083001.489-1
по запросу
4350426015069501.489-1
по запросу
4350383013054001.489-1
по запросу
4350383013054001.489-1
по запросу
4350383013054001.489-1
по запросу
3430393035067501.489-1
по запросу
4350383013054001.489-1
по запросу
4350383013054001.489-1
по запросу
4350363013051251.489-1
по запросу
4350363013051251.489-1
по запросу
3950363013046501.489-1
по запросу
3950363013046501.489-1
по запросу
3950363013046501.489-1
по запросу
3950363013042001.489-1
по запросу
3550363013042001.489-1
по запросу
3550363013042001.489-1
по запросу
3430393035067501.489-1
по запросу
4430385013045501.489-1
по запросу
5650423015089501.489-1
по запросу
4430453013065501.489-1
по запросу
4430453013065501.489-1
по запросу
4630371013055751.489-1
по запросу
3930423013054001.489-1
по запросу
3930423013054001.489-1
по запросу
3730423013052151.489-1
по запросу
3730423013051251.489-1
по запросу
3430363035063501.489-1
по запросу
3730393013047751.489-1
по запросу
3730393013047751.489-1
по запросу
4430393013056501.489-1
по запросу
4430393013056501.489-1
по запросу
4650496017098001.489-1
по запросу
4350446035094751.489-1
по запросу
4350446035094751.489-1
по запросу
4050396035069751.489-1
по запросу
4050396035069751.489-1
по запросу
4050396035069751.489-1
по запросу
3430363035063501.489-1
по запросу
4050396035069751.489-1
по запросу
4050353035063001.489-1
по запросу
4050353035063001.489-1
по запросу
4050353035063001.489-1
по запросу
4050353035063001.489-1
по запросу
4050333035060251.489-1
по запросу
4050333035060251.489-1
по запросу
Полный каталог
Название Длина, ммШирина, ммВысота, ммВес, кгНомер стандарта Цена
4330341040078751.489-1
по запросу
3630393035070251.489-1
по запросу
3630393035070251.489-1
по запросу
4950526015097751.489-1
по запросу
4650476015083001.489-1
по запросу
4650476015083001.489-1
по запросу
4350426015069501.489-1
по запросу
4350383013054001.489-1
по запросу
4350383013054001.489-1
по запросу
4350383013054001.489-1
по запросу
3430393035067501.489-1
по запросу
4350383013054001.489-1
по запросу
4350383013054001.489-1
по запросу
4350363013051251.489-1
по запросу
4350363013051251.489-1
по запросу
3950363013046501.489-1
по запросу
3950363013046501.489-1
по запросу
3950363013046501.489-1
по запросу
3950363013042001.489-1
по запросу
3550363013042001.489-1
по запросу
3550363013042001.489-1
по запросу
3430393035067501.489-1
по запросу
4430385013045501.489-1
по запросу
5650423015089501.489-1
по запросу
4430453013065501.489-1
по запросу
4430453013065501.489-1
по запросу
4630371013055751.489-1
по запросу
3930423013054001.489-1
по запросу
3930423013054001.489-1
по запросу
3730423013052151.489-1
по запросу
3730423013051251.489-1
по запросу
3430363035063501.489-1
по запросу
3730393013047751.489-1
по запросу
3730393013047751.489-1
по запросу
4430393013056501.489-1
по запросу
4430393013056501.489-1
по запросу
4650496017098001.489-1
по запросу
4350446035094751.489-1
по запросу
4350446035094751.489-1
по запросу
4050396035069751.489-1
по запросу
4050396035069751.489-1
по запросу
4050396035069751.489-1
по запросу
3430363035063501.489-1
по запросу
4050396035069751.489-1
по запросу
4050353035063001.489-1
по запросу
4050353035063001.489-1
по запросу
4050353035063001.489-1
по запросу
4050353035063001.489-1
по запросу
4050333035060251.489-1
по запросу
4050333035060251.489-1
по запросу

ТД "Еврастрой" предлагает купить Плиты перекрытия шахт П 48 по выгодной цене. Наша компания осуществляет доставку продукции по всей территории России и странам СНГ.

В каталоге представлено около 170 тыс. позиций.

По наличию и ценам Мы можем проконсультировать Вас по телефону +7 (343) 300-90-87 или можете отправить запрос на почтовый ящик gbi@gbi22.ru.

Оплатить продукцию можно в рассрочку, для обсуждения вопросов оплаты так же можно обратиться к нашим менеджерам.

Продажа ЖБИ изделий производится с заводов в таких городах как:

  • Екатеринбург
  • Тюмень
  • Красноярск
  • Новосибирск
  • Иркутск
  • Ростов-на-дону
  • Нижний Новгород
  • Казань
  • Москва

Наши менеджеры помогут Вам подобрать оптимальное решения для ваших задач, сориентируют по наличию и ценам, расскажут про оптимальные варианты доставки и оплаты. Звоните +7 (343) 300-90-87

0 руб.
цена с НДС*
Наличие: нет
шт.
Перейти в корзину

Оформить заказ
Рассрочка
Рассказать друзьям: