В вашей корзине ещё нет товаров.
|
|||||||||
| Количество в квадратом метре, шт | 0,48 | ||||||||
| Нормы погрузки на авто | 16 | ||||||||
| Нормы погрузки ЖД | 58 | ||||||||
| Ссылка на стандарт | https://disk.yandex.ru/d/0lHWALeh0iLaMQ | ||||||||
| Расход стали, кг | 53,2 |
| Расход стали на 1м3 бетона, кг | 112,71 |
| Класс прочности | В25 |
| Марка бетона | М350 |
| Морозостойкость | F200-F300 |
| Водонепроницаемость | W8-W10 |
| Марка бетона по EN 206-1 | C20/25 |
| Геометрический объем | 0,588 |
| Объем бетона | 0,47 |
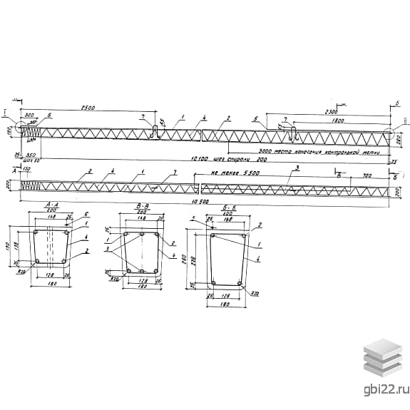
Стойки СВ 105 – это конические железобетонные опоры переменного сечения, предназначенные для монтажа воздушных линий электропередачи. Они изготавливаются в соответствии с ГОСТ 26071-84 и обладают высокой прочностью, долговечностью и устойчивостью к агрессивным условиям эксплуатации.
Обозначение изделия включает:
Дополнительные параметры:
Стойки СВ 105 применяются для:
Технические параметры бетона (ГОСТ 26633):
Для усиления конструкции применяют:
Перевозка осуществляется спецтранспортом с надежной фиксацией (машинная норма – 17 шт.). Хранение – в штабелях с деревянными прокладками.
| Стандарт | ГОСТ |
| Номер стандарта | 26071-84 |
| Статус | заменен ТУ 34 12.11410-89 |
| Год выпущенного стандарта | 1984 |
| Название стандарта | Стойки железобетонные вибрированные для опор воздушных линий электропередачи напряжением 0,38 кВ. Технические условия. |
| Название | Длина, мм | Ширина, мм | Высота, мм | Вес, кг | Номер стандарта | Цена | |
|---|---|---|---|---|---|---|---|
| 11500 | 235 | 205 | 1700 | 5863-029-57953748-2008 |
22 691 руб. |
||
| 13000 | 235 | 310 | 1850 | 5863-007-00113557-94 |
18 226 руб. |
||
| 9500 | 165 | 240 | 750 | 5863-007-00113557-94 |
10 524 руб. |
||
| 9500 | 185 | 265 | 900 | 5863-007-00113557-94 |
11 244 руб. |
||
| 9500 | 165 | 240 | 750 | 5863-007-00113557-94 |
9 383 руб. |
||
| 9500 | 165 | 240 | 750 | 5863-007-00113557-94 |
6 907 руб. |
||
| 9500 | 165 | 240 | 750 | 5863-007-00113557-94 |
6 907 руб. |
||
| 9000 | 205 | 267 | 1000 | 5863-007-00113557-94 |
9 558 руб. |
||
| 9000 | 185 | 259 | 900 | 5863-007-00113557-94 |
8 790 руб. |
||
| 8500 | 165 | 230 | 660 | 5863-007-00113557-94 |
10 092 руб. |
||
| 8500 | 185 | 255 | 800 | 5863-007-00113557-94 |
9 727 руб. |
||
| 8500 | 165 | 230 | 660 | 5863-007-00113557-94 |
8 490 руб. |
||
| 16400 | 390 | 380 | 3550 | 5863-007-00113557-94 |
27 268 руб. |
||
| 13000 | 352 | 342 | 2450 | 5863-007-00113557-94 |
17 426 руб. |
||
| 13000 | 235 | 310 | 1850 | 5863-007-00113557-94 |
14 957 руб. |
||
| 11000 | 185 | 280 | 1125 | 5863-007-00113557-94 |
11 349 руб. |
||
| 11000 | 185 | 280 | 1125 | 5863-007-00113557-94 |
8 631 руб. |
||
| 10500 | 205 | 280 | 1180 | 5863-007-00113557-94 |
9 705 руб. |
||
| 10500 | 205 | 280 | 1180 | 5863-007-00113557-94 |
8 655 руб. |
||
| 9500 | 175 | 245 | 750 | 34 12.11410-89 |
7 206 руб. |
||
| 9500 | 175 | 245 | 750 | 34 12.11410-89 |
6 907 руб. |
||
| 9500 | 175 | 245 | 750 | 34 12.11410-89 |
7 206 руб. |
||
| 9500 | 175 | 245 | 750 | 34 12.11410-89 |
6 907 руб. |
||
| 9000 | 185 | 260 | 900 | 102-465-88 |
по запросу |
||
| 9000 | 185 | 260 | 900 | 102-465-88 |
8 790 руб. |
||
| 9000 | 185 | 260 | 900 | 102-465-88 |
по запросу |
||
| 9000 | 185 | 260 | 900 | 102-465-88 |
8 790 руб. |
||
| 6500 | 220 | 100 | 369 | 3.503.9-80 |
11 422 руб. |
||
| 5500 | 220 | 100 | 313 | 3.503.9-80 |
9 727 руб. |
||
| 6500 | 180 | 100 | 299 | 3.503.9-80 |
7 519 руб. |
||
| 5500 | 180 | 100 | 253 | 3.503.9-80 |
7 015 руб. |
||
| 4500 | 180 | 100 | 207 | 3.503.9-80 |
5 805 руб. |
||
| 6500 | 140 | 100 | 236 | 3.503.9-80 |
7 282 руб. |
||
| 5500 | 140 | 100 | 200 | 3.503.9-80 |
6 213 руб. |
||
| 4500 | 140 | 100 | 163 | 3.503.9-80 |
5 120 руб. |
||
| 4000 | 140 | 100 | 145 | 3.503.9-80 |
4 569 руб. |
||
| 3500 | 140 | 100 | 127 | 3.503.9-80 |
4 026 руб. |
||
| 4500 | 100 | 100 | 120 | 3.503.9-80 |
4 718 руб. |
||
| 4000 | 100 | 100 | 107 | 3.503.9-80 |
4 217 руб. |
||
| 3500 | 100 | 100 | 94 | 3.503.9-80 |
3 714 руб. |
||
| 3000 | 100 | 100 | 81 | 3.503.9-80 |
3 207 руб. |
||
| 4500 | 100 | 100 | 113 | 3.503.9-80 |
2 709 руб. |
||
| 4000 | 100 | 100 | 101 | 3.503.9-80 |
2 426 руб. |
||
| 3500 | 100 | 100 | 88 | 3.503.9-80 |
2 152 руб. |
||
| 3000 | 100 | 100 | 76 | 3.503.9-80 |
1 870 руб. |
||
| 4000 | 100 | 100 | 99 | 3.503.9-80 |
1 839 руб. |
||
| 3500 | 100 | 100 | 87 | 3.503.9-80 |
1 565 руб. |
||
| 3000 | 100 | 100 | 74 | 3.503.9-80 |
1 431 руб. |
||
| 2500 | 100 | 100 | 62 | 3.503.9-80 |
1 227 руб. |
||
| 2000 | 100 | 100 | 50 | 3.503.9-80 |
1 019 руб. |
| Название | Длина, мм | Ширина, мм | Высота, мм | Вес, кг | Номер стандарта | Цена | |
|---|---|---|---|---|---|---|---|
| 9500 | 165 | 240 | 750 | 26071-84 |
5 948 руб. |
||
| 9500 | 165 | 240 | 750 | 26071-84 |
5 753 руб. |
||
| 9500 | 165 | 240 | 750 | 26071-84 |
5 948 руб. |
||
| 9500 | 165 | 240 | 750 | 26071-84 |
5 753 руб. |
ТД "Еврастрой" предлагает купить Стойки СВ 105 по выгодной цене. Наша компания осуществляет доставку продукции по всей территории России и странам СНГ.
В каталоге представлено около 170 тыс. позиций.
По наличию и ценам Мы можем проконсультировать Вас по телефону +7 (343) 300-90-87 или можете отправить запрос на почтовый ящик gbi@gbi22.ru.
Оплатить продукцию можно в рассрочку, для обсуждения вопросов оплаты так же можно обратиться к нашим менеджерам.
Продажа ЖБИ изделий производится с заводов в таких городах как:
Наши менеджеры помогут Вам подобрать оптимальное решения для ваших задач, сориентируют по наличию и ценам, расскажут про оптимальные варианты доставки и оплаты. Звоните +7 (343) 300-90-87
