В вашей корзине ещё нет товаров.
|
|||||||||
| Количество в квадратом метре, шт | 0,67 | ||||||||
| Нормы погрузки на авто | 17 | ||||||||
| Нормы погрузки ЖД | 60 | ||||||||
| Ссылка на стандарт | https://disk.yandex.ru/d/Dk-hw94aUlJ8ew | ||||||||
| Расход стали, кг | 27,1 |
| Расход стали на 1м3 бетона, кг | 58,91 |
| Класс прочности | В15 |
| Марка бетона | М200 |
| Морозостойкость | F100-F200 |
| Водонепроницаемость | W4-W6 |
| Марка бетона по EN 206-1 | C12/15 |
| Геометрический объем | 0,450 |
| Объем бетона | 0,46 |
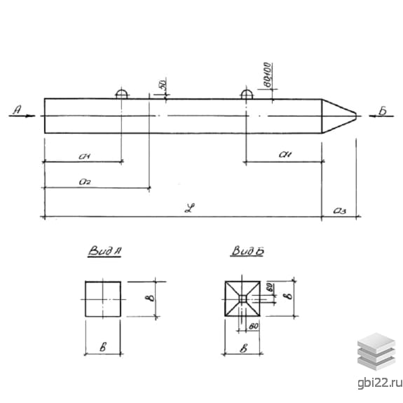
Свая общестроительная С 50-30-6,1 предназначена для создания фундаментов и на сегодняшний день является одним из самых популярных решений. Это оптимальный выбор для возведения основы зданий на "сложных" грунтах.
С – тип конструкции (свая);
50 – длина в дециметрах (5000 мм);
30 – сечение элемента в сантиметрах (300x300 мм);
6 – порядок армирования.
Длина: 5000 мм
Ширина: 300 мм
Высота: 300 мм
Вес: 1150 кг
Марка бетона: М200
Эти сваи могут использоваться для строительства как высотных, так и малоэтажных зданий. Они подходят для различных типов грунтов, включая скальные и мягкие почвы, а также для участков с вечной мерзлотой.
Сваи имеют удлиненную форму с заостренным концом, что облегчает их погружение в грунт. После достижения плотных слоев они надежно фиксируются, что предотвращает осыпание и обвалы грунта.
Изготавливаются из высокопрочного железобетона, что обеспечивает их долговечность и устойчивость к различным нагрузкам. Антикоррозионная обработка гарантирует длительный срок службы.
Сваи производятся по стандартам ГОСТ 19804-91 с использованием технологий вибропрессования или вибролитья, что обеспечивает их высокую прочность и морозостойкость (до 600 циклов замораживания-размораживания).
Сваи хранятся штабелями, каждый слой разделяется деревянными досками толщиной не менее 3 см. Транспортировка осуществляется специализированным транспортом, как автомобильным, так и железнодорожным.
| Стандарт | серия |
| Номер стандарта | 1.011.1-10 |
| Статус | не определен |
| Год выпущенного стандарта | 1989 |
| Название стандарта | Сваи забивные железобетонные. |
| Название | Длина, мм | Ширина, мм | Высота, мм | Вес, кг | Номер стандарта | Цена | |
|---|---|---|---|---|---|---|---|
| 9000 | 400 | 400 | 3650 | 1.011.1-10 |
26 270 руб. |
||
| 9000 | 400 | 400 | 3650 | 1.011.1-10 |
26 213 руб. |
||
| 9000 | 400 | 400 | 3650 | 1.011.1-10 |
26 351 руб. |
||
| 9000 | 400 | 400 | 3650 | 1.011.1-10 |
26 293 руб. |
||
| 9000 | 400 | 400 | 3650 | 1.011.1-10 |
24 738 руб. |
||
| 9000 | 400 | 400 | 3650 | 1.011.1-10 |
24 681 руб. |
||
| 9000 | 400 | 400 | 3650 | 1.011.1-10 |
24 750 руб. |
||
| 9000 | 400 | 400 | 3650 | 1.011.1-10 |
24 692 руб. |
||
| 9000 | 400 | 400 | 3650 | 1.011.1-10 |
23 414 руб. |
||
| 9000 | 400 | 400 | 3650 | 1.011.1-10 |
23 066 руб. |
||
| 9000 | 400 | 400 | 3650 | 1.011.1-10 |
23 368 руб. |
||
| 9000 | 400 | 400 | 3650 | 1.011.1-10 |
23 020 руб. |
||
| 9000 | 400 | 400 | 3650 | 1.011.1-10 |
23 414 руб. |
||
| 9000 | 400 | 400 | 3650 | 1.011.1-10 |
23 066 руб. |
||
| 9000 | 400 | 400 | 3650 | 1.011.1-10 |
23 368 руб. |
||
| 9000 | 400 | 400 | 3650 | 1.011.1-10 |
23 020 руб. |
||
| 9000 | 400 | 400 | 3650 | 1.011.1-10 |
35 647 руб. |
||
| 9000 | 400 | 400 | 3650 | 1.011.1-10 |
35 590 руб. |
||
| 9000 | 400 | 400 | 3650 | 1.011.1-10 |
36 177 руб. |
||
| 9000 | 400 | 400 | 3650 | 1.011.1-10 |
36 120 руб. |
||
| 9000 | 400 | 400 | 3650 | 1.011.1-10 |
32 053 руб. |
||
| 9000 | 400 | 400 | 3650 | 1.011.1-10 |
31 996 руб. |
||
| 9000 | 400 | 400 | 3650 | 1.011.1-10 |
32 422 руб. |
||
| 9000 | 400 | 400 | 3650 | 1.011.1-10 |
32 364 руб. |
||
| 9000 | 400 | 400 | 3650 | 1.011.1-10 |
29 957 руб. |
||
| 9000 | 400 | 400 | 3650 | 1.011.1-10 |
29 899 руб. |
||
| 9000 | 400 | 400 | 3650 | 1.011.1-10 |
30 187 руб. |
||
| 9000 | 400 | 400 | 3650 | 1.011.1-10 |
30 129 руб. |
||
| 9000 | 400 | 400 | 3650 | 1.011.1-10 |
28 010 руб. |
||
| 9000 | 400 | 400 | 3650 | 1.011.1-10 |
27 952 руб. |
||
| 9000 | 400 | 400 | 3650 | 1.011.1-10 |
28 160 руб. |
||
| 9000 | 400 | 400 | 3650 | 1.011.1-10 |
28 102 руб. |
||
| 9000 | 350 | 350 | 2800 | 1.011.1-10 |
21 786 руб. |
||
| 9000 | 350 | 350 | 2800 | 1.011.1-10 |
21 740 руб. |
||
| 9000 | 350 | 350 | 2800 | 1.011.1-10 |
21 855 руб. |
||
| 9000 | 350 | 350 | 2800 | 1.011.1-10 |
21 809 руб. |
||
| 9000 | 350 | 350 | 2800 | 1.011.1-10 |
20 265 руб. |
||
| 9000 | 350 | 350 | 2800 | 1.011.1-10 |
19 997 руб. |
||
| 9000 | 350 | 350 | 2800 | 1.011.1-10 |
20 265 руб. |
||
| 9000 | 350 | 350 | 2800 | 1.011.1-10 |
19 997 руб. |
||
| 9000 | 350 | 350 | 2800 | 1.011.1-10 |
18 929 руб. |
||
| 9000 | 350 | 350 | 2800 | 1.011.1-10 |
18 660 руб. |
||
| 9000 | 350 | 350 | 2800 | 1.011.1-10 |
18 895 руб. |
||
| 9000 | 350 | 350 | 2800 | 1.011.1-10 |
18 626 руб. |
||
| 9000 | 350 | 350 | 2800 | 1.011.1-10 |
18 929 руб. |
||
| 9000 | 350 | 350 | 2800 | 1.011.1-10 |
18 660 руб. |
||
| 9000 | 350 | 350 | 2800 | 1.011.1-10 |
18 895 руб. |
||
| 9000 | 350 | 350 | 2800 | 1.011.1-10 |
18 626 руб. |
||
| 9000 | 350 | 350 | 2800 | 1.011.1-10 |
27 580 руб. |
||
| 9000 | 350 | 350 | 2800 | 1.011.1-10 |
27 534 руб. |
| Название | Длина, мм | Ширина, мм | Высота, мм | Вес, кг | Номер стандарта | Цена | |
|---|---|---|---|---|---|---|---|
| 6000 | 150 | 150 | 340 | 1.011.1-10 |
3 721 руб. |
||
| 5000 | 150 | 150 | 280 | 1.011.1-10 |
3 051 руб. |
||
| 4500 | 150 | 150 | 250 | 1.011.1-10 |
2 727 руб. |
||
| 4000 | 150 | 150 | 220 | 1.011.1-10 |
2 438 руб. |
||
| 3000 | 150 | 150 | 160 | 1.011.1-10 |
1 872 руб. |
||
| 9000 | 300 | 300 | 2050 | 1.011.1-10 |
11 787 руб. |
||
| 9000 | 300 | 300 | 2050 | 1.011.1-10 |
11 880 руб. |
||
| 9000 | 300 | 300 | 2050 | 1.011.1-10 |
11 822 руб. |
||
| 9000 | 300 | 300 | 2050 | 1.011.1-10 |
11 891 руб. |
||
| 9000 | 300 | 300 | 2050 | 1.011.1-10 |
12 283 руб. |
||
| 9000 | 300 | 300 | 2050 | 1.011.1-10 |
12 732 руб. |
||
| 9000 | 300 | 300 | 2050 | 1.011.1-10 |
11 891 руб. |
||
| 9000 | 300 | 300 | 2050 | 1.011.1-10 |
12 283 руб. |
||
| 9000 | 300 | 300 | 2050 | 1.011.1-10 |
12 732 руб. |
||
| 8000 | 300 | 300 | 1830 | 1.011.1-10 |
10 233 руб. |
||
| 8000 | 300 | 300 | 1830 | 1.011.1-10 |
10 314 руб. |
||
| 8000 | 300 | 300 | 1830 | 1.011.1-10 |
10 371 руб. |
||
| 8000 | 300 | 300 | 1830 | 1.011.1-10 |
10 394 руб. |
||
| 8000 | 300 | 300 | 1830 | 1.011.1-10 |
10 705 руб. |
||
| 8000 | 300 | 300 | 1830 | 1.011.1-10 |
11 051 руб. |
||
| 8000 | 300 | 300 | 1830 | 1.011.1-10 |
10 394 руб. |
||
| 8000 | 300 | 300 | 1830 | 1.011.1-10 |
10 705 руб. |
||
| 8000 | 300 | 300 | 1830 | 1.011.1-10 |
11 051 руб. |
||
| 7000 | 300 | 300 | 1600 | 1.011.1-10 |
9 057 руб. |
||
| 7000 | 300 | 300 | 1600 | 1.011.1-10 |
9 127 руб. |
||
| 7000 | 300 | 300 | 1600 | 1.011.1-10 |
9 184 руб. |
||
| 7000 | 300 | 300 | 1600 | 1.011.1-10 |
8 977 руб. |
||
| 7000 | 300 | 300 | 1600 | 1.011.1-10 |
9 196 руб. |
||
| 7000 | 300 | 300 | 1600 | 1.011.1-10 |
9 772 руб. |
||
| 7000 | 300 | 300 | 1600 | 1.011.1-10 |
8 977 руб. |
||
| 7000 | 300 | 300 | 1600 | 1.011.1-10 |
9 196 руб. |
||
| 7000 | 300 | 300 | 1600 | 1.011.1-10 |
9 772 руб. |
||
| 6000 | 300 | 300 | 1380 | 1.011.1-10 |
7 849 руб. |
||
| 6000 | 300 | 300 | 1380 | 1.011.1-10 |
7 906 руб. |
||
| 6000 | 300 | 300 | 1380 | 1.011.1-10 |
7 745 руб. |
||
| 6000 | 300 | 300 | 1380 | 1.011.1-10 |
7 780 руб. |
||
| 6000 | 300 | 300 | 1380 | 1.011.1-10 |
7 964 руб. |
||
| 6000 | 300 | 300 | 1380 | 1.011.1-10 |
8 194 руб. |
||
| 6000 | 300 | 300 | 1380 | 1.011.1-10 |
7 780 руб. |
||
| 6000 | 300 | 300 | 1380 | 1.011.1-10 |
7 964 руб. |
||
| 6000 | 300 | 300 | 1380 | 1.011.1-10 |
8 194 руб. |
||
| 6000 | 250 | 250 | 950 | 1.011.1-10 |
5 467 руб. |
||
| 6000 | 250 | 250 | 950 | 1.011.1-10 |
5 433 руб. |
||
| 6000 | 250 | 250 | 950 | 1.011.1-10 |
5 491 руб. |
||
| 6000 | 250 | 250 | 950 | 1.011.1-10 |
5 629 руб. |
||
| 6000 | 250 | 250 | 950 | 1.011.1-10 |
5 813 руб. |
||
| 6000 | 250 | 250 | 950 | 1.011.1-10 |
5 813 руб. |
||
| 6000 | 250 | 250 | 950 | 1.011.1-10 |
5 629 руб. |
||
| 6000 | 250 | 250 | 950 | 1.011.1-10 |
5 813 руб. |
||
| 6000 | 250 | 250 | 950 | 1.011.1-10 |
5 813 руб. |
ТД "Еврастрой" предлагает купить Сваи С 50-30-6,1 по выгодной цене. Наша компания осуществляет доставку продукции по всей территории России и странам СНГ.
В каталоге представлено около 170 тыс. позиций.
По наличию и ценам Мы можем проконсультировать Вас по телефону +7 (343) 300-90-87 или можете отправить запрос на почтовый ящик gbi@gbi22.ru.
Оплатить продукцию можно в рассрочку, для обсуждения вопросов оплаты так же можно обратиться к нашим менеджерам.
Продажа ЖБИ изделий производится с заводов в таких городах как:
Наши менеджеры помогут Вам подобрать оптимальное решения для ваших задач, сориентируют по наличию и ценам, расскажут про оптимальные варианты доставки и оплаты. Звоните +7 (343) 300-90-87
