Производство, продажа и
поставка ЖБИ по России и СНГ
Навигация
Код товара:
9 471 руб.
цена с НДС*

альбом 2256Е

Краткие характеристики
Длина, мм
4180
Ширина, мм
600
Высота, мм
580
Вес, кг
1570

Все характеристики
Длина, мм
4180
Ширина, мм
600
Высота, мм
580
Вес, кг
1570
Количество в квадратом метре, шт
0,40
Нормы погрузки на авто
12
Нормы погрузки ЖД
36
Ссылка на стандарт
https://disk.yandex.ru/d/l8XvzSfFRSXaLg
Расход стали, кг
18,96
Расход стали на 1м3 бетона, кг
30,19
Класс прочности
В15
Марка бетона
М200
Морозостойкость
F100-F200
Водонепроницаемость
W4-W6
Марка бетона по EN 206-1
C12/15
Геометрический объем
1,455
Объем бетона
0,63

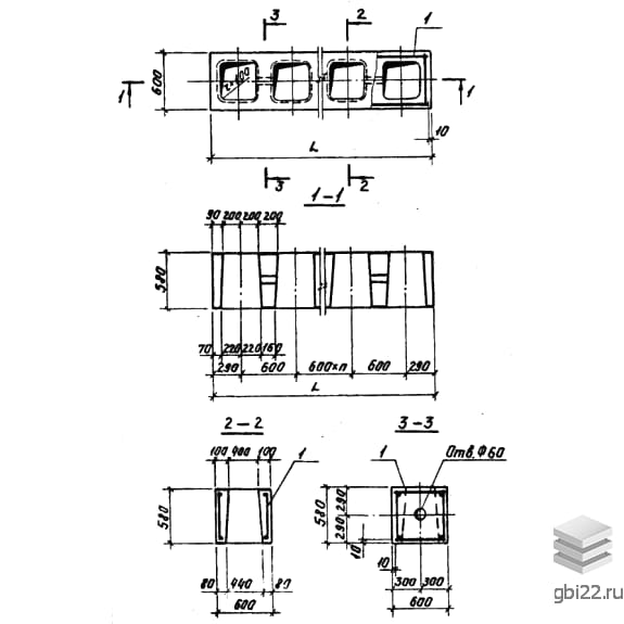
Фундаментные блоки УДБ 0,6-4,2: характеристики и применение

Унифицированные дырчатые блоки (УДБ) 0,6-4,2 – это железобетонные конструкции, предназначенные для возведения фундаментов под промышленное оборудование. Изделия имеют прямоугольную форму с системой вертикальных сквозных отверстий пирамидального типа. Габариты блоков стандартизированы: ширина (600 мм) и высота (580 мм) остаются неизменными, а длина всегда кратна модулю 600 мм.

Маркировка фундаментных блоков УДБ

Обозначение изделий соответствует Альбому 2256Е и включает следующие параметры:

  • УДБ – унифицированный дырчатый блок
  • 0,6 – ширина в метрах
  • 4,2 – длина в метрах

Дополнительные обозначения:

  • Буква "П" в маркировке указывает на устойчивость к агрессивным средам
  • Отсутствие индекса означает применение только в неагрессивных условиях

Основные характеристики

Технические параметры блоков УДБ 0,6-4,2:

  • Длина: 4180 мм
  • Ширина: 600 мм
  • Высота: 580 мм
  • Масса: 1570 кг
  • Объем бетона: 0,63 м?
  • Марка бетона: М200

Сфера применения

Основные направления использования:

  • Создание фундаментов под промышленное оборудование (станки, дробилки, мельницы)
  • Возведение сборно-монолитных и сборно-разборных оснований
  • Строительство ленточных фундаментов для групп машин
  • Возведение стен подвалов и подпорных конструкций

Технология производства

Изготовление осуществляется согласно:

  • ГОСТ 18886-73 – технологические требования
  • ГОСТ 13015.0-83 – технические стандарты

Производственные особенности:

  • Использование металлических форм с откидными бортами
  • Формирование отверстий с помощью жестко закрепленных пустотообразователей
  • Дополнительные монтажные отверстия в ребрах изделий
  • Применение бетона марки М200 и выше
  • Армирование пространственными каркасами из арматуры классов АI, АIII или проволоки Вр-1

Транспортировка и хранение

Рекомендации по складированию:

  • Хранение в штабелях высотой не более 4 рядов
  • Использование деревянных прокладок толщиной от 30 мм
  • Плотное прилегание блоков друг к другу
  • Надежная фиксация при перевозке
Стандарт
альбом
Номер стандарта
2256Е
Статус
не действует
Год выпущенного стандарта
1973
Название стандарта
Унифицированные дырчатые блоки УДБ шириной 600 мм.
Название Длина, ммШирина, ммВысота, ммВес, кгНомер стандарта Цена
598060058019802256Е
12 149 руб.
538060058017502256Е
10 823 руб.
478060058015702256Е
9 730 руб.
358060058011802256Е
7 401 руб.
29806005809802256Е
6 212 руб.
23806005808002256Е
5 121 руб.
17806005805802256Е
3 842 руб.
11806005803802256Е
2 658 руб.
5806005802002256Е
1 567 руб.
Полный каталог
Название Длина, ммШирина, ммВысота, ммВес, кгНомер стандарта Цена
598060058019802256Е
12 149 руб.
538060058017502256Е
10 823 руб.
478060058015702256Е
9 730 руб.
358060058011802256Е
7 401 руб.
29806005809802256Е
6 212 руб.
23806005808002256Е
5 121 руб.
17806005805802256Е
3 842 руб.
11806005803802256Е
2 658 руб.
5806005802002256Е
1 567 руб.

ТД "Еврастрой" предлагает купить Унифицированные дырчатые блоки УДБ 0,6-4,2 по выгодной цене. Наша компания осуществляет доставку продукции по всей территории России и странам СНГ.

В каталоге представлено около 170 тыс. позиций.

По наличию и ценам Мы можем проконсультировать Вас по телефону +7 (343) 300-90-87 или можете отправить запрос на почтовый ящик gbi@gbi22.ru.

Оплатить продукцию можно в рассрочку, для обсуждения вопросов оплаты так же можно обратиться к нашим менеджерам.

Продажа ЖБИ изделий производится с заводов в таких городах как:

  • Екатеринбург
  • Тюмень
  • Красноярск
  • Новосибирск
  • Иркутск
  • Ростов-на-дону
  • Нижний Новгород
  • Казань
  • Москва

Наши менеджеры помогут Вам подобрать оптимальное решения для ваших задач, сориентируют по наличию и ценам, расскажут про оптимальные варианты доставки и оплаты. Звоните +7 (343) 300-90-87

9 471 руб.
цена с НДС*
Наличие: нет
шт.
Перейти в корзину

Оформить заказ
Рассрочка
Рассказать друзьям: