Производство, продажа и
поставка ЖБИ по России и СНГ
Навигация
Код товара:
172 960 руб.
цена с НДС*
Цена за 1м3, руб
33 008 с НДС*

альбом ИЖ 26-79

Краткие характеристики
Длина, мм
17950
Ширина, мм
300
Высота, мм
1490
Вес, кг
13100

Все характеристики
Длина, мм
17950
Ширина, мм
300
Высота, мм
1490
Вес, кг
13100
Количество в квадратом метре, шт
0,19
Нормы погрузки на авто
СПЕЦАВТО
Нормы погрузки ЖД
СПЕЦВАГОН
Ссылка на стандарт
https://disk.yandex.ru/d/OElkWRw5bQ6slQ
Расход стали, кг
951
Расход стали на 1м3 бетона, кг
181,49
Класс прочности
В35
Марка бетона
М450
Морозостойкость
F300-F500
Водонепроницаемость
W12-W14
Марка бетона по EN 206-1
C30/37
Геометрический объем
8,024
Объем бетона
5,24

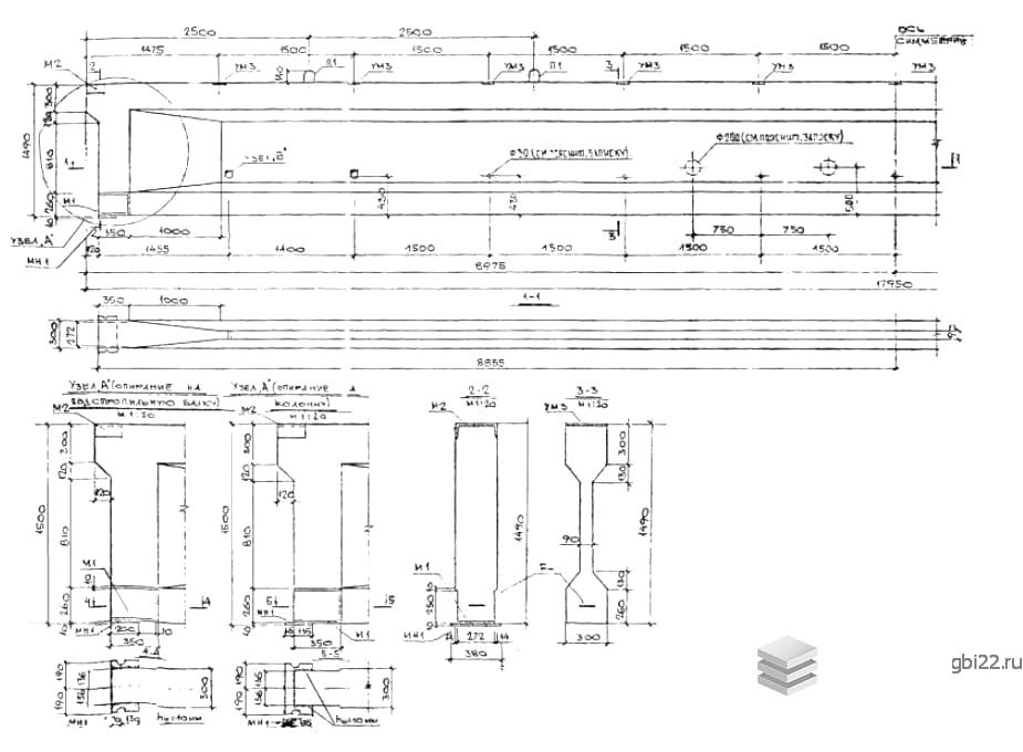
Фермы СБЭ 18-2 В2: характеристики и особенности

Маркировка изделий

Конструкции маркируются по Альбому ИЖ 26-79, где:

  • СБЭ – тип фермы (стропильная балка с элементами);
  • 18 – длина в дециметрах (18 м);
  • 2 – типоразмер серии;
  • В2 – указание на нормативную документацию.

Дополнительно в маркировке могут указываться:

  • Устойчивость к агрессивным средам;
  • Применение в сейсмических зонах;
  • Наличие закладных деталей.

Основные характеристики

Габариты и вес:

  • Длина: 17950 мм
  • Ширина: 300 мм
  • Высота: 1490 мм
  • Масса: 13100 кг
  • Класс бетона: В35-В350 (М450)

Конструктивные особенности

Фермы состоят из:

  • Верхнего и нижнего поясов;
  • Вертикальных стоек;
  • Наклонных раскосов.

Армирование выполняется:

  • Для пролётов свыше 8,96 м – предварительно напряжённой арматурой класса А-IV;
  • Антикоррозийная обработка стержней в верхнем поясе;
  • Высокопрочная проволока в нижнем поясе.

Область применения

Используются для:

  • Перекрытия пролётов в промышленных зданиях;
  • Создания несущих конструкций кровли;
  • Строительства мостов и эстакад;
  • Возведения складских комплексов.

Технология производства

Изготовление включает:

  • Формирование элементов на вибростолах;
  • Последовательное армирование;
  • Применение тяжёлого бетона с морозостойкими добавками.

Транспортировка и хранение

Требования:

  • Перевозка в вертикальном положении;
  • Использование эластичных прокладок;
  • Хранение в стеллажах-кассетах;
  • Деревянные подкладки толщиной от 40 мм.

Монтажные особенности

Учитываются:

  • Тип кровельного покрытия;
  • Ширина пролёта;
  • Способ опирания;
  • Точность установки.
Стандарт
альбом
Номер стандарта
ИЖ 26-79
Статус
не действует
Год выпущенного стандарта
1979
Название стандарта
Стропильные балки СБЗ-18-182, СБЗ-18-282.
Название Длина, ммШирина, ммВысота, ммВес, кгНомер стандарта Цена
119602808904500903-2-30.90
24 617 руб.
119602808904500903-2-30.90
24 235 руб.
119602808904500903-2-30.90
23 470 руб.
98502420600298003.501.1-146
411 311 руб.
98502420600298003.501.1-146
444 315 руб.
98502420600298003.501.1-146
410 126 руб.
98502420600298003.501.1-146
443 130 руб.
98502420600298003.501.1-146
411 311 руб.
98502420600298003.501.1-146
444 315 руб.
98502420600298003.501.1-146
410 126 руб.
98502420600298003.501.1-146
443 130 руб.
98502420600298003.501.1-146
410 126 руб.
98502420600298003.501.1-146
443 130 руб.
98502420600298003.501.1-146
411 311 руб.
98502420600298003.501.1-146
444 315 руб.
98502420600298003.501.1-146
410 126 руб.
98502420600298003.501.1-146
443 130 руб.
98502420600298003.501.1-146
410 126 руб.
98502420600298003.501.1-146
443 130 руб.
98502420600298003.501.1-146
410 126 руб.
98502420600298003.501.1-146
443 130 руб.
93002420600283003.501.1-146
372 281 руб.
93002420600283003.501.1-146
389 687 руб.
93002420600283003.501.1-146
371 155 руб.
93002420600283003.501.1-146
388 561 руб.
93002420600283003.501.1-146
372 281 руб.
93002420600283003.501.1-146
389 687 руб.
93002420600283003.501.1-146
371 155 руб.
93002420600283003.501.1-146
388 561 руб.
93002420600283003.501.1-146
371 155 руб.
93002420600283003.501.1-146
388 561 руб.
93002420600283003.501.1-146
372 281 руб.
93002420600283003.501.1-146
389 687 руб.
93002420600283003.501.1-146
371 155 руб.
93002420600283003.501.1-146
388 561 руб.
93002420600283003.501.1-146
371 155 руб.
93002420600283003.501.1-146
388 561 руб.
93002420600283003.501.1-146
371 155 руб.
93002420600283003.501.1-146
388 561 руб.
77002420550223003.501.1-146
278 119 руб.
77002420550223003.501.1-146
288 601 руб.
77002420550223003.501.1-146
277 232 руб.
77002420550223003.501.1-146
287 715 руб.
77002420550223003.501.1-146
278 119 руб.
77002420550223003.501.1-146
288 601 руб.
77002420550223003.501.1-146
277 232 руб.
77002420550223003.501.1-146
287 715 руб.
77002420550223003.501.1-146
277 232 руб.
77002420550223003.501.1-146
287 715 руб.
77002420550223003.501.1-146
278 119 руб.
Полный каталог
Название Длина, ммШирина, ммВысота, ммВес, кгНомер стандарта Цена
17950300149013100ИЖ 26-79
156 487 руб.

ТД "Еврастрой" предлагает купить Балки стропильные СБЭ 18-2 В2 по выгодной цене. Наша компания осуществляет доставку продукции по всей территории России и странам СНГ.

В каталоге представлено около 170 тыс. позиций.

По наличию и ценам Мы можем проконсультировать Вас по телефону +7 (343) 300-90-87 или можете отправить запрос на почтовый ящик gbi@gbi22.ru.

Оплатить продукцию можно в рассрочку, для обсуждения вопросов оплаты так же можно обратиться к нашим менеджерам.

Продажа ЖБИ изделий производится с заводов в таких городах как:

  • Екатеринбург
  • Тюмень
  • Красноярск
  • Новосибирск
  • Иркутск
  • Ростов-на-дону
  • Нижний Новгород
  • Казань
  • Москва

Наши менеджеры помогут Вам подобрать оптимальное решения для ваших задач, сориентируют по наличию и ценам, расскажут про оптимальные варианты доставки и оплаты. Звоните +7 (343) 300-90-87

172 960 руб.
цена с НДС*
Наличие: нет
шт.
Перейти в корзину

Оформить заказ
Рассрочка
Рассказать друзьям: