Производство, продажа и
поставка ЖБИ по России и СНГ
Навигация
Унифицированные дырчатые блоки УДБ 0,6-3,6
Код товара:
7 401 руб.
цена с НДС*

альбом 2256Е

Краткие характеристики
Длина, мм
3580
Ширина, мм
600
Высота, мм
580
Вес, кг
1180

Все характеристики
Длина, мм
3580
Ширина, мм
600
Высота, мм
580
Вес, кг
1180
Количество в квадратом метре, шт
0,47
Нормы погрузки на авто
16
Нормы погрузки ЖД
36
Ссылка на стандарт
https://disk.yandex.ru/d/l8XvzSfFRSXaLg
Расход стали, кг
16,7
Расход стали на 1м3 бетона, кг
35,38
Класс прочности
В15
Марка бетона
М200
Морозостойкость
F100-F200
Водонепроницаемость
W4-W6
Марка бетона по EN 206-1
C12/15
Геометрический объем
1,246
Объем бетона
0,47

Унифицированные дырчатые блоки УДБ 0,6-3,6

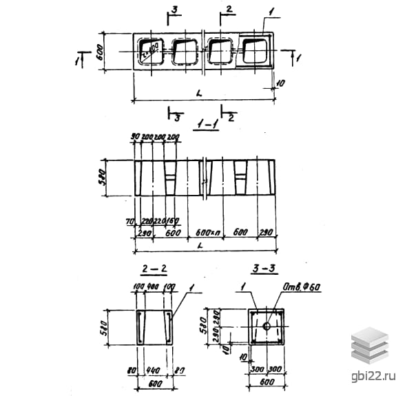
Фундаментные дырчатые блоки УДБ 0,6-3,6 — это железобетонные конструкции, предназначенные для возведения оснований под промышленное оборудование. Изделия имеют прямоугольную форму с системой вертикальных сквозных отверстий пирамидального типа. Габариты и шаг отверстий (600 мм) стандартизированы, а длина всегда кратна модулю 600 мм.

Маркировка блоков УДБ

Обозначение соответствует нормам Альбома 2256Е и включает:

  • УДБ 0,6-1,2
  • УДБ 0,6-1,8
  • УДБ 0,6-2,4
  • УДБ 0,6-3,0
  • УДБ 0,6-3,6
  • УДБ 0,6-4,2
  • УДБ 0,6-4,8
  • УДБ 0,6-6,0

Расшифровка маркировки

Пример: УДБ 0,6-3,6:

  • УДБ — унифицированный дырчатый блок;
  • 0,6 — ширина (м);
  • 3,6 — длина (м).

Буква «П» в маркировке указывает на стойкость к агрессивным средам.

Основные характеристики

  • Длина: 3580 мм
  • Ширина: 600 мм
  • Высота: 580 мм
  • Вес: 1180 кг
  • Марка бетона: М200

Применение

Блоки УДБ используются для:

  • Фундаментов под промышленное оборудование (станки, дробилки, мельницы);
  • Сборно-монолитных или ленточных оснований;
  • Строительства подвалов и подпорных стен.

Монтаж осуществляется вертикальной установкой блоков с заливкой бетона в отверстия.

Технология производства

Изготовление регламентировано ГОСТ 18886-73 и ГОСТ 13015.0-83:

  • Используются металлические формы с пустотообразователями;
  • Армирование — каркасами из арматуры классов АI, АIII или проволоки Вр-1;
  • Бетон: марка прочности М200, морозостойкость подбирается под климатическую зону.

Транспортировка и хранение

  • Хранение в штабелях (до 4 рядов) с деревянными прокладками (?30 мм);
  • Транспортировка с фиксацией от смещения.
Стандарт
альбом
Номер стандарта
2256Е
Статус
не действует
Год выпущенного стандарта
1973
Название стандарта
Унифицированные дырчатые блоки УДБ шириной 600 мм.
Название Длина, ммШирина, ммВысота, ммВес, кгНомер стандарта Цена
598060058019802256Е
12 149 руб.
538060058017502256Е
10 823 руб.
478060058015702256Е
9 730 руб.
418060058015702256Е
9 471 руб.
29806005809802256Е
6 212 руб.
23806005808002256Е
5 121 руб.
17806005805802256Е
3 842 руб.
11806005803802256Е
2 658 руб.
5806005802002256Е
1 567 руб.
Полный каталог
Название Длина, ммШирина, ммВысота, ммВес, кгНомер стандарта Цена
598060058019802256Е
12 149 руб.
538060058017502256Е
10 823 руб.
478060058015702256Е
9 730 руб.
418060058015702256Е
9 471 руб.
29806005809802256Е
6 212 руб.
23806005808002256Е
5 121 руб.
17806005805802256Е
3 842 руб.
11806005803802256Е
2 658 руб.
5806005802002256Е
1 567 руб.

ТД "Еврастрой" предлагает купить Унифицированные дырчатые блоки УДБ 0,6-3,6 по выгодной цене. Наша компания осуществляет доставку продукции по всей территории России и странам СНГ.

В каталоге представлено около 170 тыс. позиций.

По наличию и ценам Мы можем проконсультировать Вас по телефону +7 (343) 300-90-87 или можете отправить запрос на почтовый ящик gbi@gbi22.ru.

Оплатить продукцию можно в рассрочку, для обсуждения вопросов оплаты так же можно обратиться к нашим менеджерам.

Продажа ЖБИ изделий производится с заводов в таких городах как:

  • Екатеринбург
  • Тюмень
  • Красноярск
  • Новосибирск
  • Иркутск
  • Ростов-на-дону
  • Нижний Новгород
  • Казань
  • Москва

Наши менеджеры помогут Вам подобрать оптимальное решения для ваших задач, сориентируют по наличию и ценам, расскажут про оптимальные варианты доставки и оплаты. Звоните +7 (343) 300-90-87

7 401 руб.
цена с НДС*
Наличие: нет
шт.
Перейти в корзину

Оформить заказ
Рассрочка
Рассказать друзьям: