Производство, продажа и
поставка ЖБИ по России и СНГ
Навигация
Унифицированные дырчатые блоки УДБ 0,6-4,8
Код товара:
9 730 руб.
цена с НДС*

альбом 2256Е

Краткие характеристики
Длина, мм
4780
Ширина, мм
600
Высота, мм
580
Вес, кг
1570

Все характеристики
Длина, мм
4780
Ширина, мм
600
Высота, мм
580
Вес, кг
1570
Количество в квадратом метре, шт
0,35
Нормы погрузки на авто
12
Нормы погрузки ЖД
24
Ссылка на стандарт
https://disk.yandex.ru/d/l8XvzSfFRSXaLg
Расход стали, кг
21,2
Расход стали на 1м3 бетона, кг
33,76
Класс прочности
В15
Марка бетона
М200
Морозостойкость
F100-F200
Водонепроницаемость
W4-W6
Марка бетона по EN 206-1
C12/15
Геометрический объем
1,663
Объем бетона
0,63

Унифицированные дырчатые блоки УДБ 0,6-4,8

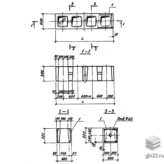
Фундаментные дырчатые блоки УДБ 0,6-4,8 — это железобетонные конструкции, предназначенные для возведения оснований под промышленное оборудование. Изделия имеют прямоугольную форму с системой вертикальных сквозных отверстий пирамидального типа. Габариты и шаг отверстий (600 мм) стандартизированы, а длина всегда кратна модулю 600 мм.

Маркировка блоков УДБ

Обозначение соответствует нормам Альбома 2256Е и включает:

  • УДБ 0,6-1,2
  • УДБ 0,6-1,8
  • УДБ 0,6-2,4
  • УДБ 0,6-3,0
  • УДБ 0,6-3,6
  • УДБ 0,6-4,2
  • УДБ 0,6-4,8
  • УДБ 0,6-6,0

Основные характеристики

Расшифровка маркировки УДБ 0,6-4,8:

  • УДБ — унифицированные дырчатые блоки.
  • 0,6 — ширина в метрах.
  • 4,8 — длина в метрах.

Буква «П» в маркировке указывает на стойкость к агрессивным средам. Отсутствие символа означает применение только в нейтральных условиях.

Технические параметры

  • Длина: 4780 мм
  • Ширина: 600 мм
  • Высота: 580 мм
  • Вес: 1570 кг
  • Объем бетона: 0,63 м?
  • Марка бетона: М200

Применение

Блоки используются для:

  • Фундаментов под промышленное оборудование (станки, дробилки, мельницы).
  • Сборно-монолитных или ленточных оснований.
  • Строительства подвалов и подпорных стен.

Монтаж осуществляется вертикальной установкой блоков с последующим заполнением отверстий бетонной смесью.

Технология производства

Изготовление регламентировано ГОСТ 18886-73 и ГОСТ 13015.0-83:

  • Используются металлические формы с пустотообразователями.
  • Армирование — каркасами из арматуры классов АI, АIII или проволоки Вр-1.
  • Дополнительные отверстия предназначены для монтажа.

Хранение и транспортировка

  • Штабелирование не выше 4 рядов.
  • Деревянные прокладки толщиной от 30 мм.
  • Фиксация от смещения при перевозке.
Стандарт
альбом
Номер стандарта
2256Е
Статус
не действует
Год выпущенного стандарта
1973
Название стандарта
Унифицированные дырчатые блоки УДБ шириной 600 мм.
Название Длина, ммШирина, ммВысота, ммВес, кгНомер стандарта Цена
598060058019802256Е
12 149 руб.
538060058017502256Е
10 823 руб.
418060058015702256Е
9 471 руб.
358060058011802256Е
7 401 руб.
29806005809802256Е
6 212 руб.
23806005808002256Е
5 121 руб.
17806005805802256Е
3 842 руб.
11806005803802256Е
2 658 руб.
5806005802002256Е
1 567 руб.
Полный каталог
Название Длина, ммШирина, ммВысота, ммВес, кгНомер стандарта Цена
598060058019802256Е
12 149 руб.
538060058017502256Е
10 823 руб.
418060058015702256Е
9 471 руб.
358060058011802256Е
7 401 руб.
29806005809802256Е
6 212 руб.
23806005808002256Е
5 121 руб.
17806005805802256Е
3 842 руб.
11806005803802256Е
2 658 руб.
5806005802002256Е
1 567 руб.

ТД "Еврастрой" предлагает купить Унифицированные дырчатые блоки УДБ 0,6-4,8 по выгодной цене. Наша компания осуществляет доставку продукции по всей территории России и странам СНГ.

В каталоге представлено около 170 тыс. позиций.

По наличию и ценам Мы можем проконсультировать Вас по телефону +7 (343) 300-90-87 или можете отправить запрос на почтовый ящик gbi@gbi22.ru.

Оплатить продукцию можно в рассрочку, для обсуждения вопросов оплаты так же можно обратиться к нашим менеджерам.

Продажа ЖБИ изделий производится с заводов в таких городах как:

  • Екатеринбург
  • Тюмень
  • Красноярск
  • Новосибирск
  • Иркутск
  • Ростов-на-дону
  • Нижний Новгород
  • Казань
  • Москва

Наши менеджеры помогут Вам подобрать оптимальное решения для ваших задач, сориентируют по наличию и ценам, расскажут про оптимальные варианты доставки и оплаты. Звоните +7 (343) 300-90-87

9 730 руб.
цена с НДС*
Наличие: нет
шт.
Перейти в корзину

Оформить заказ
Рассрочка
Рассказать друзьям: