В вашей корзине ещё нет товаров.
|
|||||||||
| Количество в квадратом метре, шт | 0,46 | ||||||||
| Нормы погрузки на авто | 10 | ||||||||
| Нормы погрузки ЖД | 34 | ||||||||
| Ссылка на стандарт | https://disk.yandex.ru/d/VxfiB43cbnSA2Q | ||||||||
| Расход стали, кг | 70,48 |
| Расход стали на 1м3 бетона, кг | 88,10 |
| Класс прочности | В25 |
| Марка бетона | М350 |
| Морозостойкость | F200-F300 |
| Водонепроницаемость | W8-W10 |
| Марка бетона по EN 206-1 | C20/25 |
| Геометрический объем | 1,047 |
| Объем бетона | 0,80 |
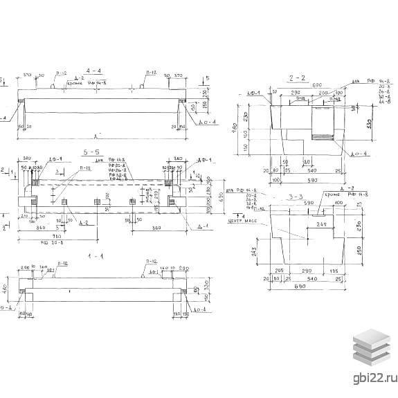
Фасадный ригель РФ 32-8 имеет стандартизированную маркировку, где:
Конструкция представляет собой Z-образную балку с асимметричными полками:
Используется в каркасном строительстве для:
Изделие соответствует требованиям Альбома РС 2374-98 и проходит обязательные испытания на прочность.
| Стандарт | альбом |
| Номер стандарта | РС 2374-98 |
| Статус | не определен |
| Год выпущенного стандарта | 1998 |
| Название стандарта | Ригели фасадные легкого каркаса для пролетов 1,8 - 7,2 м (согласно технологии АО "Моспромжелезобетон"). |
| Название | Длина, мм | Ширина, мм | Высота, мм | Вес, кг | Номер стандарта | Цена | |
|---|---|---|---|---|---|---|---|
| 6780 | 690 | 480 | 4900 | РС 2374-98 |
55 683 руб. |
||
| 6160 | 690 | 480 | 4100 | РС 2374-98 |
44 288 руб. |
||
| 5560 | 690 | 480 | 3700 | РС 2374-98 |
37 778 руб. |
||
| 4960 | 690 | 480 | 3300 | РС 2374-98 |
32 937 руб. |
||
| 4360 | 690 | 480 | 2800 | РС 2374-98 |
25 567 руб. |
||
| 3760 | 690 | 480 | 2400 | РС 2374-98 |
21 273 руб. |
||
| 2560 | 690 | 480 | 1500 | РС 2374-98 |
13 600 руб. |
||
| 1960 | 690 | 480 | 1200 | РС 2374-98 |
11 229 руб. |
||
| 1360 | 690 | 480 | 700 | РС 2374-98 |
7 833 руб. |
| Название | Длина, мм | Ширина, мм | Высота, мм | Вес, кг | Номер стандарта | Цена | |
|---|---|---|---|---|---|---|---|
| 6780 | 690 | 480 | 4900 | РС 2374-98 |
55 683 руб. |
||
| 6160 | 690 | 480 | 4100 | РС 2374-98 |
44 288 руб. |
||
| 5560 | 690 | 480 | 3700 | РС 2374-98 |
37 778 руб. |
||
| 4960 | 690 | 480 | 3300 | РС 2374-98 |
32 937 руб. |
||
| 4360 | 690 | 480 | 2800 | РС 2374-98 |
25 567 руб. |
||
| 3760 | 690 | 480 | 2400 | РС 2374-98 |
21 273 руб. |
||
| 2560 | 690 | 480 | 1500 | РС 2374-98 |
13 600 руб. |
||
| 1960 | 690 | 480 | 1200 | РС 2374-98 |
11 229 руб. |
||
| 1360 | 690 | 480 | 700 | РС 2374-98 |
7 833 руб. |
ТД "Еврастрой" предлагает купить Ригели фасадные РФ 32-8 по выгодной цене. Наша компания осуществляет доставку продукции по всей территории России и странам СНГ.
В каталоге представлено около 170 тыс. позиций.
По наличию и ценам Мы можем проконсультировать Вас по телефону +7 (343) 300-90-87 или можете отправить запрос на почтовый ящик gbi@gbi22.ru.
Оплатить продукцию можно в рассрочку, для обсуждения вопросов оплаты так же можно обратиться к нашим менеджерам.
Продажа ЖБИ изделий производится с заводов в таких городах как:
Наши менеджеры помогут Вам подобрать оптимальное решения для ваших задач, сориентируют по наличию и ценам, расскажут про оптимальные варианты доставки и оплаты. Звоните +7 (343) 300-90-87
