Производство, продажа и
поставка ЖБИ по России и СНГ
Навигация
Код товара:
37 778 руб.
цена с НДС*
Цена за 1м3, руб
25 526 с НДС*

альбом РС 2374-98

Краткие характеристики
Длина, мм
5560
Ширина, мм
690
Высота, мм
480
Вес, кг
3700

Все характеристики
Длина, мм
5560
Ширина, мм
690
Высота, мм
480
Вес, кг
3700
Количество в квадратом метре, шт
0,26
Нормы погрузки на авто
5
Нормы погрузки ЖД
18
Ссылка на стандарт
https://disk.yandex.ru/d/VxfiB43cbnSA2Q
Расход стали, кг
175,03
Расход стали на 1м3 бетона, кг
118,26
Класс прочности
В25
Марка бетона
М350
Морозостойкость
F200-F300
Водонепроницаемость
W8-W10
Марка бетона по EN 206-1
C20/25
Геометрический объем
1,841
Объем бетона
1,48

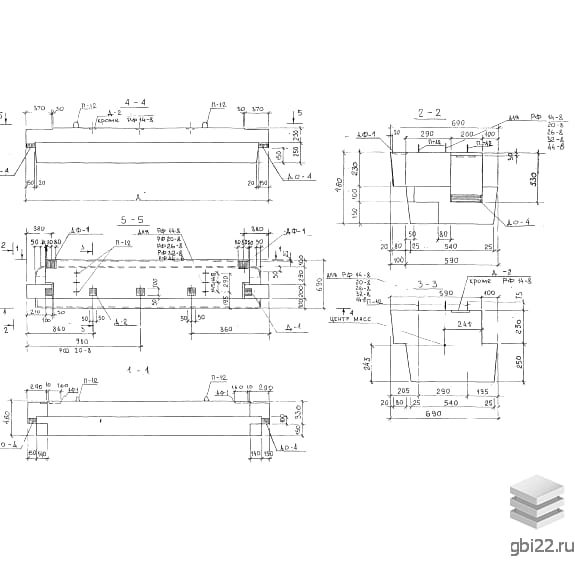
Ригель фасадный РФ 56-8: характеристики и применение

Маркировка и расшифровка

РФ 56-8 – это стандартное обозначение фасадного ригеля, где:

  • РФ – ригель фасадный;
  • 56 – длина в дециметрах (5,6 м);
  • 8 – допустимая нагрузка (8 т/м).

На торце изделия указываются: масса, дата производства, логотип производителя и штамп ОТК.

Конструктивные особенности

Ригель фасадный РФ 56-8 – ключевой компонент каркасов высотных зданий. Его Z-образное сечение включает две асимметричные полки:

  • Внутренняя полка – фиксирует плиты перекрытий;
  • Наружная полка – предназначена для крепления стеновых панелей.

Технические параметры

Основные характеристики:

  • Длина: 5560 мм;
  • Ширина: 690 мм;
  • Высота: 480 мм;
  • Масса: 3700 кг;
  • Класс бетона: B25 (М350);
  • Водонепроницаемость: W8;
  • Морозостойкость: F300.

Область применения

Используется для:

  • Соединения колонн в каркасных конструкциях;
  • Опоры плитных перекрытий и стеновых панелей;
  • Создания жестких узлов в зданиях с пролетами 1,8–7,2 м.

Преимущества

  • Высокая несущая способность (до 8 т/м);
  • Устойчивость к трещинообразованию;
  • Огнестойкость и климатическая стойкость;
  • Армирование сварными каркасами.

Монтаж и транспортировка

Крепится к колоннам через закладные детали. Требует бережного обращения:

  • Перевозка – только в горизонтальном положении;
  • Хранение – в штабелях до 2,5 м высотой с деревянными прокладками;
  • Подъем – с использованием строповочных петель.
Стандарт
альбом
Номер стандарта
РС 2374-98
Статус
не определен
Год выпущенного стандарта
1998
Название стандарта
Ригели фасадные легкого каркаса для пролетов 1,8 - 7,2 м (согласно технологии АО "Моспромжелезобетон").
Название Длина, ммШирина, ммВысота, ммВес, кгНомер стандарта Цена
67806904804900РС 2374-98
55 683 руб.
61606904804100РС 2374-98
44 288 руб.
49606904803300РС 2374-98
32 937 руб.
43606904802800РС 2374-98
25 567 руб.
37606904802400РС 2374-98
21 273 руб.
31606904802000РС 2374-98
17 641 руб.
25606904801500РС 2374-98
13 600 руб.
19606904801200РС 2374-98
11 229 руб.
1360690480700РС 2374-98
7 833 руб.
Полный каталог
Название Длина, ммШирина, ммВысота, ммВес, кгНомер стандарта Цена
67806904804900РС 2374-98
55 683 руб.
61606904804100РС 2374-98
44 288 руб.
49606904803300РС 2374-98
32 937 руб.
43606904802800РС 2374-98
25 567 руб.
37606904802400РС 2374-98
21 273 руб.
31606904802000РС 2374-98
17 641 руб.
25606904801500РС 2374-98
13 600 руб.
19606904801200РС 2374-98
11 229 руб.
1360690480700РС 2374-98
7 833 руб.

ТД "Еврастрой" предлагает купить Ригели фасадные РФ 56-8 по выгодной цене. Наша компания осуществляет доставку продукции по всей территории России и странам СНГ.

В каталоге представлено около 170 тыс. позиций.

По наличию и ценам Мы можем проконсультировать Вас по телефону +7 (343) 300-90-87 или можете отправить запрос на почтовый ящик gbi@gbi22.ru.

Оплатить продукцию можно в рассрочку, для обсуждения вопросов оплаты так же можно обратиться к нашим менеджерам.

Продажа ЖБИ изделий производится с заводов в таких городах как:

  • Екатеринбург
  • Тюмень
  • Красноярск
  • Новосибирск
  • Иркутск
  • Ростов-на-дону
  • Нижний Новгород
  • Казань
  • Москва

Наши менеджеры помогут Вам подобрать оптимальное решения для ваших задач, сориентируют по наличию и ценам, расскажут про оптимальные варианты доставки и оплаты. Звоните +7 (343) 300-90-87

37 778 руб.
цена с НДС*
Наличие: нет
шт.
Перейти в корзину

Оформить заказ
Рассрочка
Рассказать друзьям: