В вашей корзине ещё нет товаров.
| Цена за 1м3, руб | 18 022 с НДС* |
|
|||||||||
| Количество в квадратом метре, шт | 0,28 | ||||||||
| Нормы погрузки на авто | 7 | ||||||||
| Нормы погрузки ЖД | 25 | ||||||||
| Ссылка на стандарт | https://disk.yandex.ru/d/W7uZ7ChlQOR89A | ||||||||
| Расход стали, кг | 57,79 |
| Расход стали на 1м3 бетона, кг | 53,99 |
| Класс прочности | В22,5 |
| Марка бетона | М300 |
| Морозостойкость | F150-F300 |
| Водонепроницаемость | W6-W8 |
| Марка бетона по EN 206-1 | C18/22 |
| Геометрический объем | 1,080 |
| Объем бетона | 1,07 |
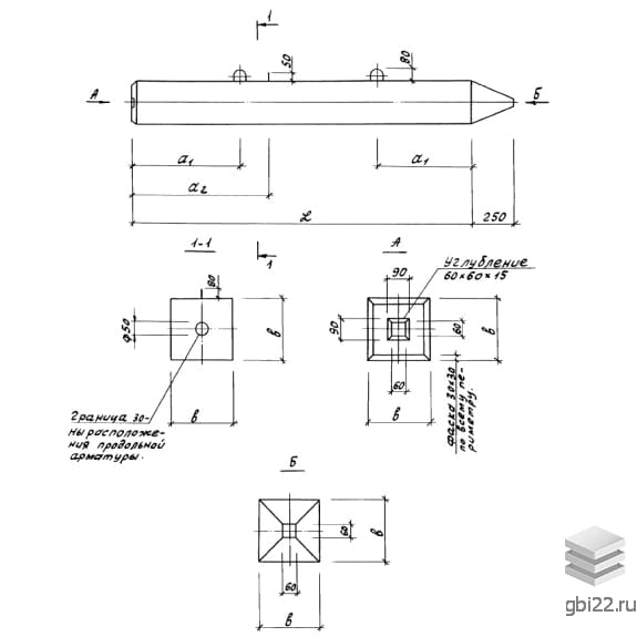
Свая квадратного сечения СЦ 12-30 (1.011-6) – это надежное железобетонное изделие прямоугольной формы с острием на конце. В конструкции присутствует штырь и подъемные петли. Эти элементы применяются в строительстве общественных и производственных зданий, а также сельскохозяйственных сооружений. Их использование разрешено в большинстве грунтовых условий, за исключением скальных и вечномерзлых. Сейсмичность в районах применения не должна превышать шести баллов.
Каждое готовое железобетонное изделие имеет свою маркировку, что упрощает выбор нужных элементов на складе. Рассмотрим, как расшифровывается маркировка СЦ 12-30 (1.011-6):
1. Свая;
2. Центральное армирование;
3. 12 – длина в метрах;
4. 30 – сечение в сантиметрах.
Изготовление железобетонных свай СЦ 12-30 (1.011-6) и контроль их качества проводятся в соответствии с Серией 1.011-6. Продукция производится из тяжелого бетона марки не ниже М300, с добавлением специальных присадок для обеспечения водонепроницаемости и морозоустойчивости. Армирование осуществляется продольной арматурой класса A-IV, проволокой класса Bp-II по ГОСТ 8480-63 и семипроволочными прядями класса П-7. Сетка и спираль в верхней части изделия выполнены из проволоки класса B-I по ГОСТ 6727-53.
В средней части конструкции предусмотрены две подъемные петли для облегчения монтажа. Фиксирующий штырь устанавливается после формовки, а натяжение арматуры выполняется механическим способом. На производстве уделяется особое внимание контролю качества, каждая партия проходит проверочные испытания на соответствие проектным параметрам, а также на наличие дефектов на поверхности.
Сваи квадратного сечения СЦ 12-30 (1.011-6) следует хранить на специализированных складах, укладывая на ровную поверхность в штабеля высотой не более 2,5 метров с деревянными прокладками между изделиями. Все маркировочные надписи должны быть четко видны. Для транспортировки используются автомобильный или железнодорожный транспорт, оснащенный крепежными механизмами для предотвращения смещения конструкций. Погрузочно-разгрузочные работы выполняются с использованием строповочных петель, перемещение волоком и сбрасывание запрещены.
Длина: 12000 мм
Ширина: 300 мм
Высота: 300 мм
Вес: 2676 кг
Марка бетона: М300
| Стандарт | серия |
| Номер стандарта | 1.011-6 |
| Статус | не действует |
| Год выпущенного стандарта | 1975 |
| Название стандарта | Сваи забивные железобетонные. |
| Название | Длина, мм | Ширина, мм | Высота, мм | Вес, кг | Номер стандарта | Цена | |
|---|---|---|---|---|---|---|---|
| 9000 | 300 | 300 | 2050 | 19804-2012 |
15 023 руб. |
||
| 8000 | 300 | 300 | 1830 | 19804-2012 |
10 955 руб. |
||
| 7000 | 300 | 300 | 1600 | 19804-2012 |
9 687 руб. |
||
| 6000 | 300 | 300 | 1380 | 19804-2012 |
7 997 руб. |
||
| 6000 | 250 | 250 | 950 | 19804-2012 |
5 594 руб. |
||
| 5000 | 300 | 300 | 1150 | 19804-2012 |
6 578 руб. |
||
| 5000 | 250 | 250 | 800 | 19804-2012 |
4 620 руб. |
||
| 4000 | 300 | 300 | 930 | 19804-2012 |
5 060 руб. |
||
| 3000 | 300 | 300 | 700 | 19804-2012 |
3 904 руб. |
||
| 11000 | 300 | 300 | 2453 | 19804-2012 |
15 382 руб. |
||
| 9000 | 300 | 300 | 2050 | 19804-2012 |
15 023 руб. |
||
| 8000 | 300 | 300 | 1830 | 19804-2012 |
10 955 руб. |
||
| 7000 | 300 | 300 | 1600 | 19804-2012 |
9 687 руб. |
||
| 6000 | 300 | 300 | 1380 | 19804-2012 |
7 997 руб. |
||
| 6000 | 250 | 250 | 950 | 19804-2012 |
5 594 руб. |
||
| 5000 | 300 | 300 | 1150 | 19804-2012 |
6 578 руб. |
||
| 4000 | 300 | 300 | 930 | 19804-2012 |
5 060 руб. |
||
| 3000 | 300 | 300 | 700 | 19804-2012 |
3 904 руб. |
||
| 11000 | 300 | 300 | 2453 | 19804-2012 |
15 382 руб. |
||
| 9000 | 300 | 300 | 2050 | 19804-2012 |
15 023 руб. |
||
| 8000 | 300 | 300 | 1830 | 19804-2012 |
10 955 руб. |
||
| 7000 | 300 | 300 | 1600 | 19804-2012 |
9 687 руб. |
||
| 6000 | 300 | 300 | 1380 | 19804-2012 |
7 997 руб. |
||
| 6000 | 250 | 250 | 950 | 19804-2012 |
5 594 руб. |
||
| 5000 | 300 | 300 | 1150 | 19804-2012 |
6 578 руб. |
||
| 5000 | 250 | 250 | 800 | 19804-2012 |
4 620 руб. |
||
| 4000 | 300 | 300 | 930 | 19804-2012 |
5 060 руб. |
||
| 3000 | 300 | 300 | 700 | 19804-2012 |
3 904 руб. |
||
| 11000 | 300 | 300 | 2453 | 19804-2012 |
16 441 руб. |
||
| 9000 | 300 | 300 | 2050 | 1.011-6 |
11 807 руб. |
||
| 8000 | 300 | 300 | 1830 | 1.011-6 |
10 333 руб. |
||
| 7000 | 300 | 300 | 1600 | 1.011-6 |
9 141 руб. |
||
| 6000 | 300 | 300 | 1380 | 1.011-6 |
7 755 руб. |
||
| 6000 | 250 | 250 | 950 | 1.011-6 |
5 288 руб. |
||
| 5500 | 300 | 300 | 1280 | 1.011-6 |
7 247 руб. |
||
| 5500 | 250 | 250 | 880 | 1.011-6 |
4 931 руб. |
||
| 5000 | 300 | 300 | 1150 | 1.011-6 |
6 505 руб. |
||
| 5000 | 250 | 250 | 800 | 1.011-6 |
4 434 руб. |
||
| 4500 | 300 | 300 | 1050 | 1.011-6 |
5 754 руб. |
||
| 4500 | 250 | 250 | 730 | 1.011-6 |
3 941 руб. |
||
| 4000 | 300 | 300 | 930 | 1.011-6 |
5 086 руб. |
||
| 3500 | 300 | 300 | 830 | 1.011-6 |
4 596 руб. |
||
| 3000 | 300 | 300 | 700 | 1.011-6 |
3 965 руб. |
||
| 12000 | 300 | 300 | 2676 | 1.011-6 |
16 259 руб. |
||
| 11000 | 300 | 300 | 2453 | 1.011-6 |
14 593 руб. |
||
| 10000 | 300 | 300 | 2230 | 1.011-6 |
13 158 руб. |
||
| 9000 | 300 | 300 | 2050 | 1.011-6 |
11 679 руб. |
||
| 8000 | 300 | 300 | 1830 | 1.011-6 |
10 121 руб. |
||
| 7000 | 300 | 300 | 1600 | 1.011-6 |
8 957 руб. |
||
| 6000 | 300 | 300 | 1380 | 1.011-6 |
7 810 руб. |
| Название | Длина, мм | Ширина, мм | Высота, мм | Вес, кг | Номер стандарта | Цена | |
|---|---|---|---|---|---|---|---|
| 9000 | 300 | 300 | 2050 | 1.011-6 |
11 807 руб. |
||
| 8000 | 300 | 300 | 1830 | 1.011-6 |
10 333 руб. |
||
| 7000 | 300 | 300 | 1600 | 1.011-6 |
9 141 руб. |
||
| 6000 | 300 | 300 | 1380 | 1.011-6 |
7 755 руб. |
||
| 6000 | 250 | 250 | 950 | 1.011-6 |
5 288 руб. |
||
| 5500 | 300 | 300 | 1280 | 1.011-6 |
7 247 руб. |
||
| 5500 | 250 | 250 | 880 | 1.011-6 |
4 931 руб. |
||
| 5000 | 300 | 300 | 1150 | 1.011-6 |
6 505 руб. |
||
| 5000 | 250 | 250 | 800 | 1.011-6 |
4 434 руб. |
||
| 4500 | 300 | 300 | 1050 | 1.011-6 |
5 754 руб. |
||
| 4500 | 250 | 250 | 730 | 1.011-6 |
3 941 руб. |
||
| 4000 | 300 | 300 | 930 | 1.011-6 |
5 086 руб. |
||
| 3500 | 300 | 300 | 830 | 1.011-6 |
4 596 руб. |
||
| 3000 | 300 | 300 | 700 | 1.011-6 |
3 965 руб. |
||
| 12000 | 300 | 300 | 2676 | 1.011-6 |
16 259 руб. |
||
| 11000 | 300 | 300 | 2453 | 1.011-6 |
14 593 руб. |
||
| 10000 | 300 | 300 | 2230 | 1.011-6 |
13 158 руб. |
||
| 9000 | 300 | 300 | 2050 | 1.011-6 |
11 679 руб. |
||
| 8000 | 300 | 300 | 1830 | 1.011-6 |
10 121 руб. |
||
| 7000 | 300 | 300 | 1600 | 1.011-6 |
8 957 руб. |
||
| 6000 | 300 | 300 | 1380 | 1.011-6 |
7 810 руб. |
||
| 6000 | 250 | 250 | 950 | 1.011-6 |
5 387 руб. |
||
| 5500 | 300 | 300 | 1280 | 1.011-6 |
7 095 руб. |
||
| 5500 | 250 | 250 | 880 | 1.011-6 |
5 022 руб. |
||
| 5000 | 300 | 300 | 1150 | 1.011-6 |
6 458 руб. |
||
| 5000 | 250 | 250 | 800 | 1.011-6 |
4 633 руб. |
||
| 4500 | 300 | 300 | 1050 | 1.011-6 |
5 720 руб. |
||
| 4500 | 250 | 250 | 730 | 1.011-6 |
4 134 руб. |
||
| 4000 | 300 | 300 | 930 | 1.011-6 |
5 130 руб. |
||
| 3500 | 300 | 300 | 830 | 1.011-6 |
4 539 руб. |
||
| 3000 | 300 | 300 | 700 | 1.011-6 |
3 915 руб. |
||
| 12000 | 300 | 300 | 2676 | 1.011-6 |
16 768 руб. |
||
| 11000 | 300 | 300 | 2453 | 1.011-6 |
14 396 руб. |
||
| 10000 | 300 | 300 | 2230 | 1.011-6 |
13 181 руб. |
||
| 9000 | 300 | 300 | 2050 | 1.011-6 |
12 623 руб. |
||
| 8000 | 300 | 300 | 1830 | 1.011-6 |
10 955 руб. |
||
| 7000 | 300 | 300 | 1600 | 1.011-6 |
9 687 руб. |
||
| 6000 | 300 | 300 | 1380 | 1.011-6 |
7 997 руб. |
||
| 6000 | 250 | 250 | 950 | 1.011-6 |
5 594 руб. |
||
| 5500 | 300 | 300 | 1280 | 1.011-6 |
7 455 руб. |
||
| 5500 | 250 | 250 | 880 | 1.011-6 |
5 213 руб. |
||
| 5000 | 300 | 300 | 1150 | 1.011-6 |
6 578 руб. |
||
| 5000 | 250 | 250 | 800 | 1.011-6 |
4 620 руб. |
||
| 4500 | 300 | 300 | 1050 | 1.011-6 |
5 811 руб. |
||
| 4500 | 250 | 250 | 730 | 1.011-6 |
4 109 руб. |
||
| 4000 | 300 | 300 | 930 | 1.011-6 |
5 060 руб. |
||
| 3500 | 300 | 300 | 830 | 1.011-6 |
4 552 руб. |
||
| 3000 | 300 | 300 | 700 | 1.011-6 |
3 904 руб. |
||
| 11000 | 300 | 300 | 2453 | 1.011-6 |
16 441 руб. |
||
| 10000 | 300 | 300 | 2230 | 1.011-6 |
14 433 руб. |
ТД "Еврастрой" предлагает купить Сваи СЦ 12-30 по выгодной цене. Наша компания осуществляет доставку продукции по всей территории России и странам СНГ.
В каталоге представлено около 170 тыс. позиций.
По наличию и ценам Мы можем проконсультировать Вас по телефону +7 (343) 300-90-87 или можете отправить запрос на почтовый ящик gbi@gbi22.ru.
Оплатить продукцию можно в рассрочку, для обсуждения вопросов оплаты так же можно обратиться к нашим менеджерам.
Продажа ЖБИ изделий производится с заводов в таких городах как:
Наши менеджеры помогут Вам подобрать оптимальное решения для ваших задач, сориентируют по наличию и ценам, расскажут про оптимальные варианты доставки и оплаты. Звоните +7 (343) 300-90-87
