В вашей корзине ещё нет товаров.
| Цена за 1м3, руб | 15 665 с НДС* |
|
|||||||||
| Количество в квадратом метре, шт | 0,28 | ||||||||
| Нормы погрузки на авто | 7 | ||||||||
| Нормы погрузки ЖД | 25 | ||||||||
| Ссылка на стандарт | https://disk.yandex.ru/d/W7uZ7ChlQOR89A | ||||||||
| Расход стали, кг | 35,89 |
| Расход стали на 1м3 бетона, кг | 33,53 |
| Класс прочности | В22,5 |
| Марка бетона | М300 |
| Морозостойкость | F150-F300 |
| Водонепроницаемость | W6-W8 |
| Марка бетона по EN 206-1 | C18/22 |
| Геометрический объем | 1,080 |
| Объем бетона | 1,07 |
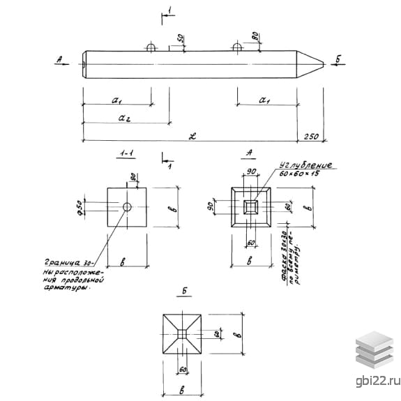
Свая квадратного сечения СЦп 12-30 (1.011-6) представляет собой прочное железобетонное изделие прямоугольной формы с острием на конце. В теле элемента предусмотрены штырь и подъемные петли. Эти конструкции применяются при возведении общественных зданий, производственных объектов и сельскохозяйственных сооружений. Их использование разрешено практически во всех грунтовых условиях, за исключением скальных и вечномерзлых грунтов. Сейсмичность районов, где возможно применение данных свай, не должна превышать шести баллов.
Каждое готовое железобетонное изделие получает свою маркировочную надпись, что помогает быстро ориентироваться в ассортименте на складе и ускоряет выбор необходимых изделий для будущего строительства. Рассмотрим расшифровку маркировки СЦп 12-30 (1.011-6):
1. Свая;
2. Центральное армирование;
3. Арматура из высокопрочной проволоки;
4. 12 – длина, указывается в метрах;
5. 30 – сечение, указывается в сантиметрах.
Длина: 12000 мм
Ширина: 300 мм
Высота: 300 мм
Вес: 2676 кг
Марка бетона: М300
Изготовление железобетонных свай СЦп 12-30 (1.011-6) и проверка их качества осуществляется в соответствии с Серией 1.011-6. Продукция производится из тяжелого бетона марки не ниже М300, с добавлением специальных присадок для обеспечения отличной водонепроницаемости и морозоустойчивости. Высокая прочность изделий достигается за счет армирования продольной арматуры, расположенной в центре сечения свай. В качестве арматуры используется сталь класса A-IV и проволока класса Bp-II по ГОСТ 8480-63, а также семипроволочные пряди класса П-7. Сетка и спираль в верхней части элемента выполнены из проволоки класса B-I по ГОСТ 6727-53.
В средней части конструкции предусмотрены две подъемные петли, что облегчает монтаж. В теле сваи установлен фиксирующий штырь, который устанавливается после завершения формовки. Натяжение арматуры осуществляется механическим способом. На производстве уделяется особое внимание контролю качества, каждая партия проходит проверочные испытания на соответствие габаритным параметрам проектным чертежам, указанным в серии. Поверхность должна быть ровной и без трещин.
Сваи квадратного сечения СЦп 12-30 (1.011-6) следует хранить на специализированных складах, укладывая на ровную поверхность в штабеля высотой не более 2,5 метров с использованием деревянных прокладок между изделиями. Все маркировочные надписи должны быть хорошо видны. Для транспортировки используются автомобильный или железнодорожный транспорт, который должен быть оснащен специальными крепежными механизмами для предотвращения смещения конструкций во время перевозки. Погрузочно-разгрузочные работы выполняются с помощью строповочных петель. Продукцию нельзя перемещать волоком или сбрасывать, необходимо соблюдать осторожность и технику безопасности. Подъездной путь должен быть хорошо подготовлен.
| Стандарт | серия |
| Номер стандарта | 1.011-6 |
| Статус | не действует |
| Год выпущенного стандарта | 1975 |
| Название стандарта | Сваи забивные железобетонные. |
| Название | Длина, мм | Ширина, мм | Высота, мм | Вес, кг | Номер стандарта | Цена | |
|---|---|---|---|---|---|---|---|
| 9000 | 300 | 300 | 2050 | 19804-2012 |
15 023 руб. |
||
| 8000 | 300 | 300 | 1830 | 19804-2012 |
10 955 руб. |
||
| 7000 | 300 | 300 | 1600 | 19804-2012 |
9 687 руб. |
||
| 6000 | 300 | 300 | 1380 | 19804-2012 |
7 997 руб. |
||
| 6000 | 250 | 250 | 950 | 19804-2012 |
5 594 руб. |
||
| 5000 | 300 | 300 | 1150 | 19804-2012 |
6 578 руб. |
||
| 5000 | 250 | 250 | 800 | 19804-2012 |
4 620 руб. |
||
| 4000 | 300 | 300 | 930 | 19804-2012 |
5 060 руб. |
||
| 3000 | 300 | 300 | 700 | 19804-2012 |
3 904 руб. |
||
| 11000 | 300 | 300 | 2453 | 19804-2012 |
15 382 руб. |
||
| 9000 | 300 | 300 | 2050 | 19804-2012 |
15 023 руб. |
||
| 8000 | 300 | 300 | 1830 | 19804-2012 |
10 955 руб. |
||
| 7000 | 300 | 300 | 1600 | 19804-2012 |
9 687 руб. |
||
| 6000 | 300 | 300 | 1380 | 19804-2012 |
7 997 руб. |
||
| 6000 | 250 | 250 | 950 | 19804-2012 |
5 594 руб. |
||
| 5000 | 300 | 300 | 1150 | 19804-2012 |
6 578 руб. |
||
| 4000 | 300 | 300 | 930 | 19804-2012 |
5 060 руб. |
||
| 3000 | 300 | 300 | 700 | 19804-2012 |
3 904 руб. |
||
| 11000 | 300 | 300 | 2453 | 19804-2012 |
15 382 руб. |
||
| 9000 | 300 | 300 | 2050 | 19804-2012 |
15 023 руб. |
||
| 8000 | 300 | 300 | 1830 | 19804-2012 |
10 955 руб. |
||
| 7000 | 300 | 300 | 1600 | 19804-2012 |
9 687 руб. |
||
| 6000 | 300 | 300 | 1380 | 19804-2012 |
7 997 руб. |
||
| 6000 | 250 | 250 | 950 | 19804-2012 |
5 594 руб. |
||
| 5000 | 300 | 300 | 1150 | 19804-2012 |
6 578 руб. |
||
| 5000 | 250 | 250 | 800 | 19804-2012 |
4 620 руб. |
||
| 4000 | 300 | 300 | 930 | 19804-2012 |
5 060 руб. |
||
| 3000 | 300 | 300 | 700 | 19804-2012 |
3 904 руб. |
||
| 11000 | 300 | 300 | 2453 | 19804-2012 |
16 441 руб. |
||
| 9000 | 300 | 300 | 2050 | 1.011-6 |
11 807 руб. |
||
| 8000 | 300 | 300 | 1830 | 1.011-6 |
10 333 руб. |
||
| 7000 | 300 | 300 | 1600 | 1.011-6 |
9 141 руб. |
||
| 6000 | 300 | 300 | 1380 | 1.011-6 |
7 755 руб. |
||
| 6000 | 250 | 250 | 950 | 1.011-6 |
5 288 руб. |
||
| 5500 | 300 | 300 | 1280 | 1.011-6 |
7 247 руб. |
||
| 5500 | 250 | 250 | 880 | 1.011-6 |
4 931 руб. |
||
| 5000 | 300 | 300 | 1150 | 1.011-6 |
6 505 руб. |
||
| 5000 | 250 | 250 | 800 | 1.011-6 |
4 434 руб. |
||
| 4500 | 300 | 300 | 1050 | 1.011-6 |
5 754 руб. |
||
| 4500 | 250 | 250 | 730 | 1.011-6 |
3 941 руб. |
||
| 4000 | 300 | 300 | 930 | 1.011-6 |
5 086 руб. |
||
| 3500 | 300 | 300 | 830 | 1.011-6 |
4 596 руб. |
||
| 3000 | 300 | 300 | 700 | 1.011-6 |
3 965 руб. |
||
| 12000 | 300 | 300 | 2676 | 1.011-6 |
16 259 руб. |
||
| 11000 | 300 | 300 | 2453 | 1.011-6 |
14 593 руб. |
||
| 10000 | 300 | 300 | 2230 | 1.011-6 |
13 158 руб. |
||
| 9000 | 300 | 300 | 2050 | 1.011-6 |
11 679 руб. |
||
| 8000 | 300 | 300 | 1830 | 1.011-6 |
10 121 руб. |
||
| 7000 | 300 | 300 | 1600 | 1.011-6 |
8 957 руб. |
||
| 6000 | 300 | 300 | 1380 | 1.011-6 |
7 810 руб. |
| Название | Длина, мм | Ширина, мм | Высота, мм | Вес, кг | Номер стандарта | Цена | |
|---|---|---|---|---|---|---|---|
| 9000 | 300 | 300 | 2050 | 1.011-6 |
11 807 руб. |
||
| 8000 | 300 | 300 | 1830 | 1.011-6 |
10 333 руб. |
||
| 7000 | 300 | 300 | 1600 | 1.011-6 |
9 141 руб. |
||
| 6000 | 300 | 300 | 1380 | 1.011-6 |
7 755 руб. |
||
| 6000 | 250 | 250 | 950 | 1.011-6 |
5 288 руб. |
||
| 5500 | 300 | 300 | 1280 | 1.011-6 |
7 247 руб. |
||
| 5500 | 250 | 250 | 880 | 1.011-6 |
4 931 руб. |
||
| 5000 | 300 | 300 | 1150 | 1.011-6 |
6 505 руб. |
||
| 5000 | 250 | 250 | 800 | 1.011-6 |
4 434 руб. |
||
| 4500 | 300 | 300 | 1050 | 1.011-6 |
5 754 руб. |
||
| 4500 | 250 | 250 | 730 | 1.011-6 |
3 941 руб. |
||
| 4000 | 300 | 300 | 930 | 1.011-6 |
5 086 руб. |
||
| 3500 | 300 | 300 | 830 | 1.011-6 |
4 596 руб. |
||
| 3000 | 300 | 300 | 700 | 1.011-6 |
3 965 руб. |
||
| 12000 | 300 | 300 | 2676 | 1.011-6 |
16 259 руб. |
||
| 11000 | 300 | 300 | 2453 | 1.011-6 |
14 593 руб. |
||
| 10000 | 300 | 300 | 2230 | 1.011-6 |
13 158 руб. |
||
| 9000 | 300 | 300 | 2050 | 1.011-6 |
11 679 руб. |
||
| 8000 | 300 | 300 | 1830 | 1.011-6 |
10 121 руб. |
||
| 7000 | 300 | 300 | 1600 | 1.011-6 |
8 957 руб. |
||
| 6000 | 300 | 300 | 1380 | 1.011-6 |
7 810 руб. |
||
| 6000 | 250 | 250 | 950 | 1.011-6 |
5 387 руб. |
||
| 5500 | 300 | 300 | 1280 | 1.011-6 |
7 095 руб. |
||
| 5500 | 250 | 250 | 880 | 1.011-6 |
5 022 руб. |
||
| 5000 | 300 | 300 | 1150 | 1.011-6 |
6 458 руб. |
||
| 5000 | 250 | 250 | 800 | 1.011-6 |
4 633 руб. |
||
| 4500 | 300 | 300 | 1050 | 1.011-6 |
5 720 руб. |
||
| 4500 | 250 | 250 | 730 | 1.011-6 |
4 134 руб. |
||
| 4000 | 300 | 300 | 930 | 1.011-6 |
5 130 руб. |
||
| 3500 | 300 | 300 | 830 | 1.011-6 |
4 539 руб. |
||
| 3000 | 300 | 300 | 700 | 1.011-6 |
3 915 руб. |
||
| 11000 | 300 | 300 | 2453 | 1.011-6 |
14 396 руб. |
||
| 10000 | 300 | 300 | 2230 | 1.011-6 |
13 181 руб. |
||
| 9000 | 300 | 300 | 2050 | 1.011-6 |
12 623 руб. |
||
| 8000 | 300 | 300 | 1830 | 1.011-6 |
10 955 руб. |
||
| 7000 | 300 | 300 | 1600 | 1.011-6 |
9 687 руб. |
||
| 6000 | 300 | 300 | 1380 | 1.011-6 |
7 997 руб. |
||
| 6000 | 250 | 250 | 950 | 1.011-6 |
5 594 руб. |
||
| 5500 | 300 | 300 | 1280 | 1.011-6 |
7 455 руб. |
||
| 5500 | 250 | 250 | 880 | 1.011-6 |
5 213 руб. |
||
| 5000 | 300 | 300 | 1150 | 1.011-6 |
6 578 руб. |
||
| 5000 | 250 | 250 | 800 | 1.011-6 |
4 620 руб. |
||
| 4500 | 300 | 300 | 1050 | 1.011-6 |
5 811 руб. |
||
| 4500 | 250 | 250 | 730 | 1.011-6 |
4 109 руб. |
||
| 4000 | 300 | 300 | 930 | 1.011-6 |
5 060 руб. |
||
| 3500 | 300 | 300 | 830 | 1.011-6 |
4 552 руб. |
||
| 3000 | 300 | 300 | 700 | 1.011-6 |
3 904 руб. |
||
| 12000 | 300 | 300 | 2676 | 1.011-6 |
19 291 руб. |
||
| 11000 | 300 | 300 | 2453 | 1.011-6 |
16 441 руб. |
||
| 10000 | 300 | 300 | 2230 | 1.011-6 |
14 433 руб. |
ТД "Еврастрой" предлагает купить Сваи СЦп 12-30 по выгодной цене. Наша компания осуществляет доставку продукции по всей территории России и странам СНГ.
В каталоге представлено около 170 тыс. позиций.
По наличию и ценам Мы можем проконсультировать Вас по телефону +7 (343) 300-90-87 или можете отправить запрос на почтовый ящик gbi@gbi22.ru.
Оплатить продукцию можно в рассрочку, для обсуждения вопросов оплаты так же можно обратиться к нашим менеджерам.
Продажа ЖБИ изделий производится с заводов в таких городах как:
Наши менеджеры помогут Вам подобрать оптимальное решения для ваших задач, сориентируют по наличию и ценам, расскажут про оптимальные варианты доставки и оплаты. Звоните +7 (343) 300-90-87
