В вашей корзине ещё нет товаров.
|
|||||||||
| Количество в квадратом метре, шт | 0,04 | ||||||||
| Нормы погрузки на авто | СПЕЦАВТО | ||||||||
| Нормы погрузки ЖД | СПЕЦВАГОН | ||||||||
| Ссылка на стандарт | https://disk.yandex.ru/d/9QVW0dyCFvwHUA | ||||||||
| Геометрический объем | 13,905 |
| Объем бетона | 6,88 |
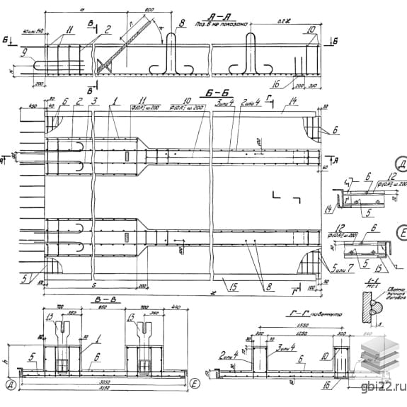
Условное обозначение 2ВЭО 95-5 расшифровывается следующим образом:
2ВЭ - сдвоенный вертикальный элемент
О - монтаж в воду отдельными элементами
95 - длина в дециметрах (9500 мм)
5 - высота сечения в дециметрах (500 мм)
Конструкция представляет собой высокопрочный железобетонный элемент прямоугольной формы с тавровым сечением. Оснащена арматурными выпусками для надежного соединения с сопрягаемыми строительными элементами.
Производится в двух вариантах:
- С одним ребром (одиночные)
- С двумя ребрами (сдвоенные)
Предназначены для строительства:
- Грузовых и пассажирских причалов
- Набережных уголкового профиля
- Гидротехнических сооружений высотой 4-15 метров
Длина: 9000 мм
Ширина: 3090 мм
Высота: 500 мм
Масса: 17200 кг
Класс бетона:
Изготавливаются из тяжелого гидротехнического бетона с обязательным контролем качества на всех этапах. Армирование выполняется пространственными каркасами из плоских сеток и отдельных стержней.
Конструкции 1ВЭО 125-8 АIIIв рассчитаны на температурный режим до -40°C. Морозостойкость и водонепроницаемость бетона определяются согласно СНиП II-28-73.
Требуется использование специальных прокладок для предотвращения повреждений. Запрещены ударные нагрузки при погрузочно-разгрузочных работах.
| Стандарт | серия |
| Номер стандарта | 3.505.1-15 |
| Статус | не действует |
| Год выпущенного стандарта | 1980 |
| Название стандарта | Причальные набережные высотой от 4 до 15 м. |
| Название | Длина, мм | Ширина, мм | Высота, мм | Вес, кг | Номер стандарта | Цена | |
|---|---|---|---|---|---|---|---|
| 9500 | 3090 | 700 | 23800 | 3.505.1-15 |
по запросу |
||
| 9500 | 3090 | 700 | 22800 | 3.505.1-15 |
по запросу |
||
| 9500 | 3090 | 700 | 21500 | 3.505.1-15 |
по запросу |
||
| 9500 | 3090 | 700 | 23800 | 3.505.1-15 |
по запросу |
||
| 9500 | 3090 | 700 | 22800 | 3.505.1-15 |
по запросу |
||
| 9500 | 3090 | 700 | 19500 | 3.505.1-15 |
по запросу |
||
| 9500 | 3090 | 600 | 20500 | 3.505.1-15 |
по запросу |
||
| 9500 | 3090 | 600 | 19800 | 3.505.1-15 |
по запросу |
||
| 9500 | 3090 | 600 | 18800 | 3.505.1-15 |
по запросу |
||
| 9500 | 3090 | 600 | 20500 | 3.505.1-15 |
по запросу |
||
| 9500 | 3090 | 600 | 19800 | 3.505.1-15 |
по запросу |
||
| 9500 | 3090 | 600 | 18800 | 3.505.1-15 |
по запросу |
||
| 9000 | 3090 | 500 | 19100 | 3.505.1-15 |
по запросу |
||
| 9000 | 3090 | 500 | 18100 | 3.505.1-15 |
по запросу |
||
| 9000 | 3090 | 500 | 17200 | 3.505.1-15 |
по запросу |
||
| 9000 | 3090 | 500 | 19100 | 3.505.1-15 |
по запросу |
||
| 9000 | 3090 | 500 | 18100 | 3.505.1-15 |
по запросу |
||
| 9000 | 3090 | 700 | 22800 | 3.505.1-15 |
по запросу |
||
| 9000 | 3090 | 700 | 21800 | 3.505.1-15 |
по запросу |
||
| 9000 | 3090 | 700 | 20500 | 3.505.1-15 |
по запросу |
||
| 9000 | 3090 | 700 | 22800 | 3.505.1-15 |
по запросу |
||
| 9000 | 3090 | 700 | 21800 | 3.505.1-15 |
по запросу |
||
| 9000 | 3090 | 700 | 20500 | 3.505.1-15 |
по запросу |
||
| 9000 | 3090 | 600 | 19500 | 3.505.1-15 |
по запросу |
||
| 9000 | 3090 | 600 | 18800 | 3.505.1-15 |
по запросу |
||
| 9000 | 3090 | 600 | 17800 | 3.505.1-15 |
по запросу |
||
| 9000 | 3090 | 600 | 19500 | 3.505.1-15 |
по запросу |
||
| 9000 | 3090 | 600 | 18800 | 3.505.1-15 |
по запросу |
||
| 9000 | 3090 | 600 | 17800 | 3.505.1-15 |
по запросу |
||
| 9000 | 3090 | 500 | 18100 | 3.505.1-15 |
по запросу |
||
| 9000 | 3090 | 500 | 17000 | 3.505.1-15 |
по запросу |
||
| 9000 | 3090 | 500 | 16300 | 3.505.1-15 |
по запросу |
||
| 9000 | 3090 | 500 | 18100 | 3.505.1-15 |
по запросу |
||
| 9000 | 3090 | 500 | 17000 | 3.505.1-15 |
по запросу |
||
| 9000 | 3090 | 500 | 16300 | 3.505.1-15 |
по запросу |
||
| 8500 | 3090 | 700 | 21800 | 3.505.1-15 |
по запросу |
||
| 8500 | 3090 | 700 | 20800 | 3.505.1-15 |
по запросу |
||
| 8500 | 3090 | 700 | 19500 | 3.505.1-15 |
по запросу |
||
| 8500 | 3090 | 700 | 21800 | 3.505.1-15 |
по запросу |
||
| 8500 | 3090 | 700 | 19500 | 3.505.1-15 |
по запросу |
||
| 8500 | 3090 | 700 | 20800 | 3.505.1-15 |
по запросу |
||
| 8500 | 3090 | 600 | 18800 | 3.505.1-15 |
по запросу |
||
| 8500 | 3090 | 600 | 17800 | 3.505.1-15 |
по запросу |
||
| 8500 | 3090 | 600 | 17000 | 3.505.1-15 |
по запросу |
||
| 8500 | 3090 | 600 | 18800 | 3.505.1-15 |
по запросу |
||
| 8500 | 3090 | 600 | 17800 | 3.505.1-15 |
по запросу |
||
| 8500 | 3090 | 600 | 17000 | 3.505.1-15 |
по запросу |
||
| 8500 | 3090 | 500 | 17000 | 3.505.1-15 |
по запросу |
||
| 8500 | 3090 | 500 | 16000 | 3.505.1-15 |
по запросу |
||
| 8500 | 3090 | 500 | 15300 | 3.505.1-15 |
по запросу |
| Название | Длина, мм | Ширина, мм | Высота, мм | Вес, кг | Номер стандарта | Цена | |
|---|---|---|---|---|---|---|---|
| 8500 | 3090 | 500 | 17000 | 3.505.1-15 |
по запросу |
||
| 8500 | 3090 | 500 | 16000 | 3.505.1-15 |
по запросу |
||
| 8500 | 3090 | 500 | 15300 | 3.505.1-15 |
по запросу |
||
| 8500 | 3090 | 500 | 17300 | 3.505.1-15 |
по запросу |
||
| 8500 | 3090 | 500 | 16300 | 3.505.1-15 |
по запросу |
||
| 8500 | 3090 | 500 | 15500 | 3.505.1-15 |
по запросу |
||
| 8000 | 3090 | 500 | 16000 | 3.505.1-15 |
по запросу |
||
| 8000 | 3090 | 500 | 15300 | 3.505.1-15 |
по запросу |
||
| 8000 | 3090 | 500 | 14500 | 3.505.1-15 |
по запросу |
||
| 8000 | 3090 | 500 | 16300 | 3.505.1-15 |
по запросу |
||
| 8000 | 3090 | 500 | 15300 | 3.505.1-15 |
по запросу |
||
| 8000 | 3090 | 500 | 14800 | 3.505.1-15 |
по запросу |
||
| 7500 | 3090 | 500 | 15000 | 3.505.1-15 |
по запросу |
||
| 7500 | 3090 | 500 | 14300 | 3.505.1-15 |
по запросу |
||
| 7500 | 3090 | 500 | 13800 | 3.505.1-15 |
по запросу |
||
| 7500 | 3090 | 500 | 15500 | 3.505.1-15 |
по запросу |
||
| 7500 | 3090 | 500 | 13800 | 3.505.1-15 |
по запросу |
||
| 7500 | 3090 | 500 | 14500 | 3.505.1-15 |
по запросу |
||
| 7500 | 3090 | 400 | 12300 | 3.505.1-15 |
по запросу |
||
| 7500 | 3090 | 400 | 12800 | 3.505.1-15 |
по запросу |
||
| 7500 | 3090 | 400 | 12800 | 3.505.1-15 |
по запросу |
||
| 7500 | 3090 | 400 | 12300 | 3.505.1-15 |
по запросу |
||
| 7000 | 3090 | 500 | 14300 | 3.505.1-15 |
по запросу |
||
| 7000 | 3090 | 500 | 13500 | 3.505.1-15 |
по запросу |
||
| 7000 | 3090 | 500 | 12800 | 3.505.1-15 |
по запросу |
||
| 7000 | 3090 | 500 | 14800 | 3.505.1-15 |
по запросу |
||
| 7000 | 3090 | 500 | 13800 | 3.505.1-15 |
по запросу |
||
| 7000 | 3090 | 500 | 13000 | 3.505.1-15 |
по запросу |
||
| 7000 | 3090 | 400 | 11500 | 3.505.1-15 |
по запросу |
||
| 7000 | 3090 | 400 | 12000 | 3.505.1-15 |
по запросу |
||
| 7000 | 3090 | 400 | 12000 | 3.505.1-15 |
по запросу |
||
| 7000 | 3090 | 400 | 11500 | 3.505.1-15 |
по запросу |
||
| 6500 | 3090 | 500 | 12000 | 3.505.1-15 |
по запросу |
||
| 6500 | 3090 | 500 | 12800 | 3.505.1-15 |
по запросу |
||
| 6500 | 3090 | 500 | 13500 | 3.505.1-15 |
по запросу |
||
| 6500 | 3090 | 500 | 13800 | 3.505.1-15 |
по запросу |
||
| 6500 | 3090 | 500 | 12800 | 3.505.1-15 |
по запросу |
||
| 6500 | 3090 | 500 | 12300 | 3.505.1-15 |
по запросу |
||
| 6500 | 3090 | 400 | 10800 | 3.505.1-15 |
по запросу |
||
| 6500 | 3090 | 400 | 11300 | 3.505.1-15 |
по запросу |
||
| 6500 | 3090 | 400 | 11300 | 3.505.1-15 |
по запросу |
||
| 6500 | 3090 | 400 | 10800 | 3.505.1-15 |
по запросу |
||
| 6000 | 3090 | 500 | 11300 | 3.505.1-15 |
по запросу |
||
| 6000 | 3090 | 500 | 11800 | 3.505.1-15 |
по запросу |
||
| 6000 | 3090 | 500 | 12500 | 3.505.1-15 |
по запросу |
||
| 6000 | 3090 | 500 | 13000 | 3.505.1-15 |
по запросу |
||
| 6000 | 3090 | 500 | 12000 | 3.505.1-15 |
по запросу |
||
| 6000 | 3090 | 500 | 11300 | 3.505.1-15 |
по запросу |
||
| 6000 | 3090 | 400 | 10000 | 3.505.1-15 |
по запросу |
||
| 6000 | 3090 | 400 | 10500 | 3.505.1-15 |
по запросу |
ТД "Еврастрой" предлагает купить Вертикальный элемент 2ВЭО 95-5 по выгодной цене. Наша компания осуществляет доставку продукции по всей территории России и странам СНГ.
В каталоге представлено около 170 тыс. позиций.
По наличию и ценам Мы можем проконсультировать Вас по телефону +7 (343) 300-90-87 или можете отправить запрос на почтовый ящик gbi@gbi22.ru.
Оплатить продукцию можно в рассрочку, для обсуждения вопросов оплаты так же можно обратиться к нашим менеджерам.
Продажа ЖБИ изделий производится с заводов в таких городах как:
Наши менеджеры помогут Вам подобрать оптимальное решения для ваших задач, сориентируют по наличию и ценам, расскажут про оптимальные варианты доставки и оплаты. Звоните +7 (343) 300-90-87
